
Comentariul autorului:
AMPLASAMENT
Amplasamentul ales pentru proiectul de diplomă se situează pe strada Ion Mihalache nr. 51-53 în oraşul Râmnicu Sărat, judeţul Buzău.
OBIECTIVE
Ca prim obiectiv, proiectul își propune evitarea stării de degradare ireversibile a fostului penitenciar având în vedere că se impune o intervenție urgentă din moment ce clădirea declarată monument istoric prezintă avarii vizibile. Acest lucru ar presupune lucrări de consolidare și restaurare a corpului principal și dezafectări ale construcțiilor anexe, parazitare.
Un alt obiectiv conex este cel al transformării spațiului concentraționar într-un loc de reflecție cu privire la dimensiunea întâmplărilor petrecute acolo, a traumei, și a impactului regimului comunist în societate. Intervenția presupune și integrarea de noi funcțiuni pe situl adiacent, care să contribuie la o dezvoltare economică, socială și culturală a orașului, și să aducă un plus valoare acestuia. Într-un final scopul întregului demers aste acela de a păstra vie memoria unui loc şi a unor evenimente tragice pentru a evita pe viitor repetarea acestora sub o formă sau alta.
PRINCIPII DE CONFORMARE
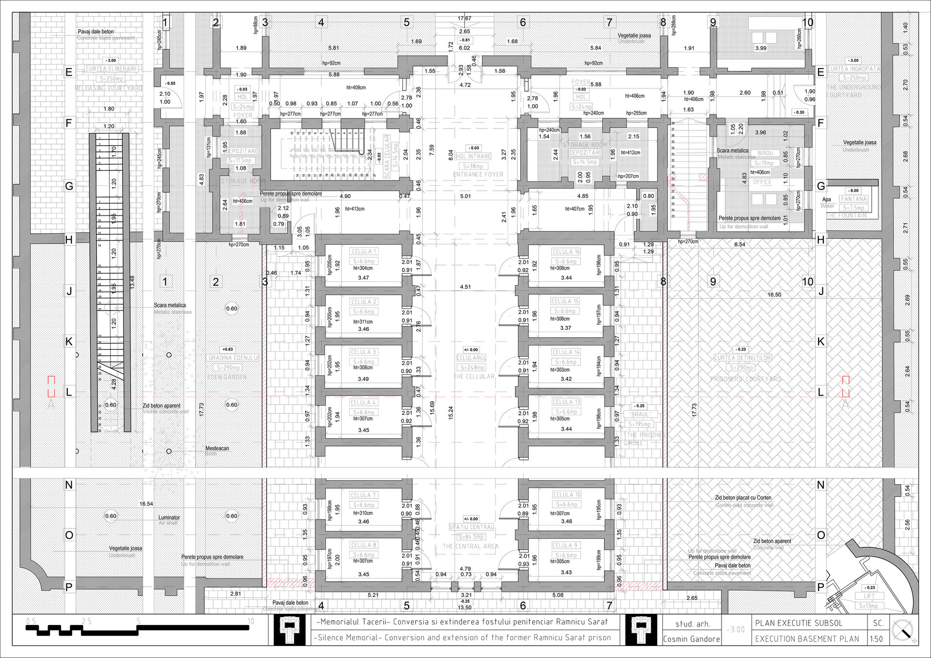
Având în vedere locul și memoria pe care o evocă proiectul de arhitectură, modalitatea de intervenție va căuta să emane o anumită discreție, în acord cu numele de „Memorialul tăcerii”. Inclusiv strada la care se deschide latura lungă a terenului, numită strada Modestiei, invită parcă la un anumit fel de a conforma arhitectura. În primul rând, intervenția pe un monument istoric impune o grijă sporită față de acesta, motiv pentru care o miză a proiectului este aceea de a păstra cât mai mult din atmosfera închisorii.Sunt necesare lucrări de reparare a acoperișului, și consolidare a unor ziduri care prezintă fisuri, însă locurile care păstrează memoria încă intactă vor fi păstrate ca atare.
Arhitectura propusă este in bună măsură una a absenței, a excavației, de aceea spațiile noi sunt spații subterane ce comunica cu o parte din subsolul penitenciarului. Coborârea în subteran a vizitatorului are semnificațîi multiple, iar percepția arhitecturii de acest fel este mai degrabă una senzorială. În aceste spații lumina joacă un rol esențial, fiind cea care îi ghidează pașii și indicându-i întotdeauna o direcție. Spațiile subterane se dilată sau se contractă de-alungul parcursului, devenind din ce în ce mai tensionate. Această tensiune este anulată de ieșirea în "luminiș" locul unde cerul și lumina se revarsă printr-un gol cirular în terenul adiacent. Acest loc reprezintă întâlnirea dintre două lumi, și este locul care leagă terenul penitenciarului cu cel al noilor funcțiuni. Pe terenul adiacent totul devine o "incintă într-o altă incintă", așa cum în cazul închisorii întotdeauna se puneau noi limite între interior și lumea de afară. Esența extinderii o reprezintă așa numita "grădina reconcilierii", delimitată de mai multe straturi și limite. Deși pare închisă ermetic, ea comunică printr-un pasaj subteran cu biblioteca și arhiva, caracterul lor fiind unul mai degrabă introvertit, semi-îngropat. De cealaltă parte există cafeneaua, cu un caracter extroverit ce își deschide parterul înalt către piațeta dinspre oraș. Chiar și aici însă atmosfera se păstrează solemnă, cu toate că distanță față de memorial a crescut considerabil. Vizual însă el este tot acolo, putând fi observat din turnul care se ridică din subteran ce aduce aminte de vechile turnuri de gardă ale paznicilor.