
Comentariul autorului:
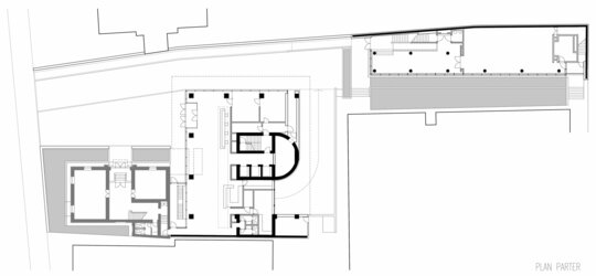
In 1906, Primăria Bucureştiului elibera autorizația pentru construirea unei clădiri cu destinația de locuință în Calea Dorobanților nr. 92-96 (în prezent nr. 32), ”proprietatea d-nei Aréthy general C. Palladi”. După mai bine de un secol, intenția construirii în acest loc unei clădiri de birouri a avut ca punct de plecare decizia păstrării corpului principal al locuinței, ca element de patrimoniu minor, dar semnificativ, al Bucureștiului din perioada domniei regelui Carol I.
Dincolo de program, proiectul îşi întemeiază logica pe două elemente particulare ale vecinătății imediate a Căii Dorobanților. Primul este cel al suprapunerii unor morfologii urbane diferite: pe de o parte, un strat vechi - cu parcele dezvoltate în adâncime, cu clădiri rezidențiale cu parter și un etaj, construite în regim discontinuu - reprezentat de succesiunea a trei imobile istorice, între care şi vila de la nr. 32 (casa general Palladi); pe de altă parte, un strat modern - cu clădiri cu înălțimi mult mai mari, construite pe aliniamentul stradal - reprezentat de două imobile postbelice de locuințe colective. Al doilea se referă la prezența pe partea opusă a strazii a casei Maria Lahovary; dimensiunile generoase ale parcelei și organizarea curții de onoare, cu imobilul principal retras și încadrat de 2 mici edicule, induc acestui spațiu, accentuat axial, un caracter monumental.
Impreună, aceste două elemente au condus la definirea principiului intervenției, care privește orașul în termenii continuității istorice și spațiale: menținerea casei Palladi și construirea pe o poziție retrasă a unui volum mai înalt, care se conexează cu stratul vechi – prin prezența în prim plan a celor trei vile și a spațiilor lor plantate -, dar și cu cel modern - prin regimul de înălțime echivalent -, creând către Calea Dorobanți un front alveolar și discontinuu. In același timp, retragerea și frontalitatea noii clădiri permit delimitarea unui spațiu public deschis către stradă, care răspunde curții reședinței Lahovary de pe frontul opus.
Opțiunea păstrării vilei, dimensiunile restrânse ale terenului și constrângerile funcționale au impus o apropiere la limită a volumului nou de cel existent, iar expresia arhitecturală a rezultat în mod direct din această tensiune a proximității: un volum compact și omogen, excavat în zona de contact cu vila Palladi pentru a permite degajarea spațială și protecția ei vizuală; sau, într-o perspectivă empatică, o ”urmă” a coliziunii dintre volumul noii clădiri și spațiul virtual al vechii proprietăți care pătrunde adânc și în interior, pe înălțimea mai multor nivele. Pentru a fi cât mai evident, decupajul trebuia făcut într-un plin, dar cum poate să fie ”plină” o suprafață preponderent vitrată, cvasi-inevitabilă pentru o clădire de birouri? Din această contradicție a rezultat decizia privind natura închiderii unui volum aparent opac, dar în realitate transparent: o textură densă, similară unei țesături, realizată dintr-o alternață de sticlă clară, serigrafiată alb, și de sticlă fumurie, colorată în masă; o suprafață abstractă și neutră care lasă să se citească interiorul cât mai puțin posibil, singura zonă total transparentă din exterior fiind cea a decupajului vertical și a continuării lui pe orizontală prin parterul retras.
Corpul principal are trei nivele subterane de parcaje, un parter - situat în directă continuitate cu curtea - unde se află recepția generală și o mică inserție comercială și 8 etaje destinate birourilor. Primul etaj adăpostește o parte a spațiilor Institutului Goethe din București, conexate cu clădirea veche, unde se află birourile direcției. Recuperarea fostei vile a constituit o dimensiune importantă a operațiunii, atât ca substanță istorică - cu puține elemente originare în interior, dar cu fațade relativ bine păstrate -, cât și ca semnificație dată de caracterul ei reprezentațional, altădată rezidențial, astăzi instituțional.
Un pavilion amplasat în partea din spate a terenului întregește spațiile Institutului Goethe, ca o prezenţă discretă disimulată într-un spațiu plantat care, prin caracterul liber al vegetației, evocă atmosfera vechilor parcele bucureștene.