
Comentariul autorului:
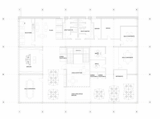
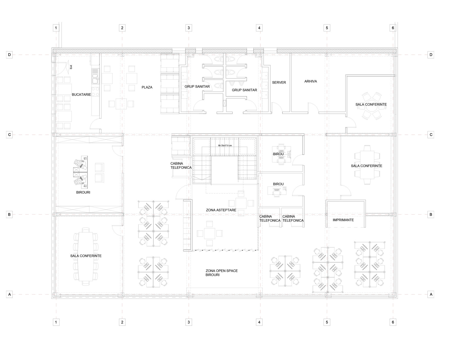
Birourile Atlas Copco din București se desfasoară pe etajul unei construcții metalice, în suprafață de 450 metri pătrați. Cromatica aleasă face parte din manualul firmei, și anume alb- gri–albastru-negru.
Conform necesităților firmei s-a realizat un concept și un fit-out care să îndeplinească toate condițiile de lucru. Accesul se face printr-o scară metalică, care se degajă într-un spațiu mai amplu ce a devenit o zonă de așteptare. Acest spațiu este marcat prin diferența de nivel față de spațiul de birouri și printr-o altă cromatică puțin mai deschisă. Aparent spațiu comunică cu zona de open-space a birourilor printr-o închidere usoară din sticlă. La nivel de finisaj, dinamica reiese prin panourile 3d din gips.
În zona de birouri și plaza, regăsim un limbaj similar celui din zona de așteptare, mai precis corpurile de iluminat din aluminiu cu LED, panourile 3d, mobilierul care se prezintă ca un accent în spațiul respectiv.
Sălile de conferința vin în completarea spațiilor descrise mai sus, astfel încât, conceptul s-a respectat unitar în toate spațiile amenajate.