
Comentariul autorului:
Situat într-o casă veche cu istorie din centrul Câmpulungului, proiectul încearcă să găsească un echilibru între elementele vechi originale ale casei de început de secol și elemente actuale moderne – astfel punând în principal accentul pe combinația de materiale, texturi și geometrii (lemn masiv, cărămidă aparentă alături de marmură, beton, confecții metalice aurii) și mai ales cum lumina îmbracă aceste forme și materiale creând atmosfera întregului spațiu. Un fundal monocrom sobru – negru gri, este cel mai potrivit pentru acest joc de forme și lumini.
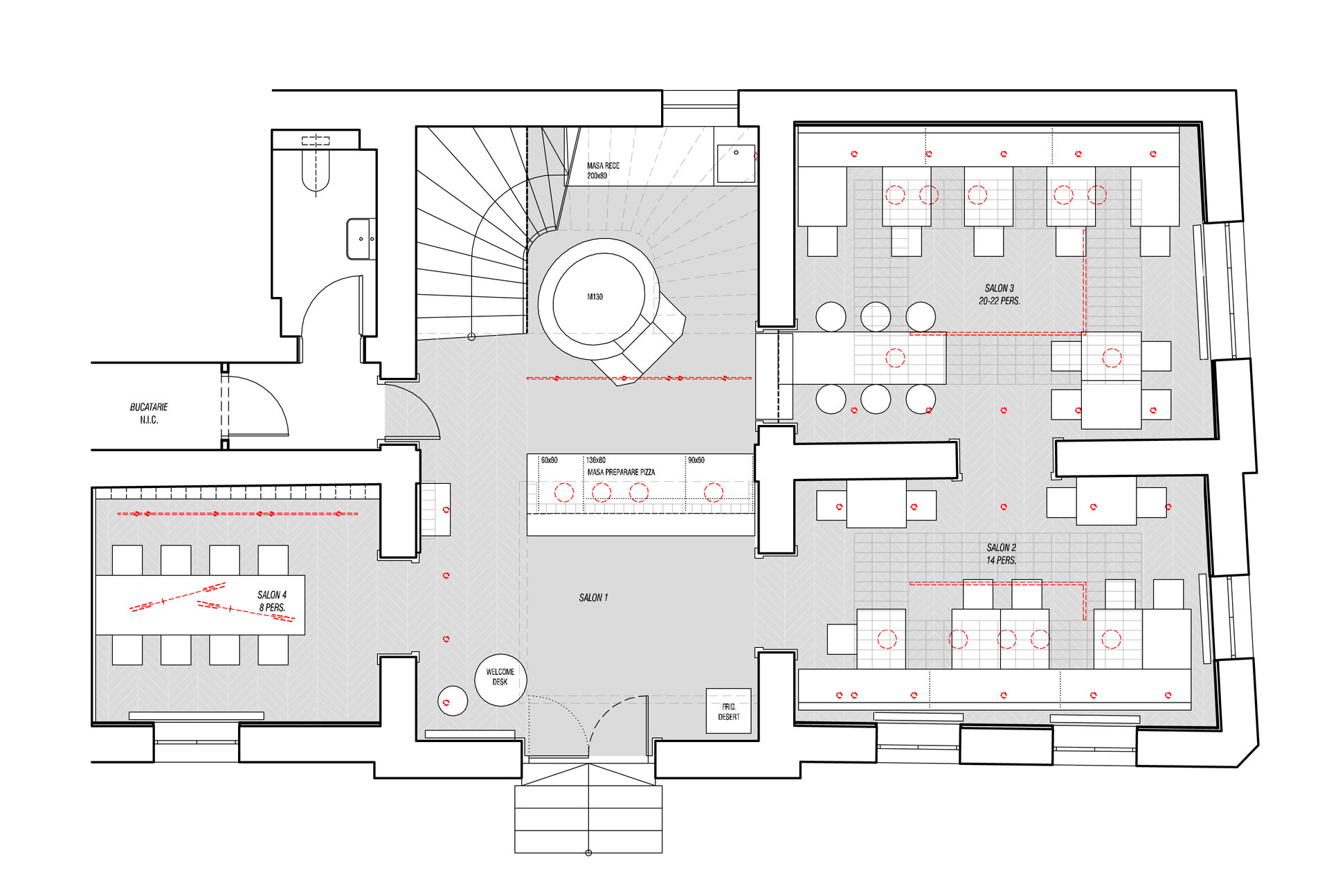
Concentrat in jurul preparării pizzei tradiționale napoletane, piesa de atracție a restaurantului este cuptorul autentic și masa de preparare a pizzerului, poziționate central în camera principală de intrare – celelalte camere de servire sunt orientate către cuptor, astfel ca toți clienții să ia parte și să se poată bucura de actul și măiestria preparării unei pizze adevărate.