
Comentariul autorului:
Baia Mare cu o bogată istorie în meșteșuguri și tradiții, un loc cu inițiative artistico-culturale, are nevoie de o redescoperire și afirmare a moștenirii culturale, ale cărei practici încep să se piardă. Orașul posedă un centru istoric, activ doar în perimetrul pieței centrale (Piața Libertății) unde majoritatea clădirilor de patrimoniu sunt inactive și degradate. Situat în Piața Păcii nr.2 Baia Mare (Nord-Vestul României), în centrul istoric al orașului, tangent la piața centrală, Institutul Patrimoniului Meșteșugăresc Baia Mare are ca obiectiv principal, recuperarea, transmiterea și reinterpretarea tradițiilor prin meșteșug, în designul contemporan. Activitatea principală a Institutului o reprezintă atelierele meșteșugărești, care au și partea educațională de transmitere a meșteșugurilor, iar împreună, cele două componente realizează o manufacturiere la scară mică, care să poată fi expusă și vândută în galeriile de expunere și vânzare ale institutului. Astfel, potențialul colectiv de cooperare este transformat în manufacturiere de lux, activând pe partea culturală, socială și economică prin producție, educație, expunere și vânzare.
Pentru că domină locuirea, dimensiunea spațiului public este redusă și lipsește și mixajul funcțional. Din dorința de conservare a spațiului liber și de rezolvarea situațiilor deficitare existente, Institutul vine cu o funcțiune care activează Piața Păcii pentru că în momentul actual este un spațiu residual cu parcare. Se urmărește creșterea calității fondului construit prin înlocuirea unei situații neadecvate centrului istoric. Este o revitalizare duală a unor spații și practici meșteșugărești. Proiectul nu e profitabil prin venituri ulterioare, ci prin aducerea unei valori colective întregii societăți fiind o strategie pe termen lung ce unifică multiple direcții de dezvoltare, având ca scop final creșterea consumului cultural, consolidarea societății și a turismului.
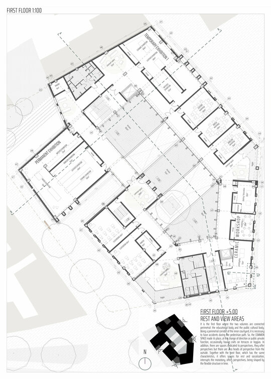
Ca și elemente caracteristice ale locului am identificat: INTRAREA DIN GANG, CURTEA INTERIOARĂ, TEXTURA ACOPERIȘURILOR, DENSITATEA și TRASEUL, pe care le-am folosit în dezvoltarea proiectului. Din studiul istoric am descoperit că aleea adiacentă sitului, a reprezentat un traseu istoric care acum este închis. Din direcția Pieței Libertății am deschis un traseu nou care ajunge în Aleea Armoniei extinsă, pentru că clădirea se retrage față de locuirea alăturată. Pornind de la parcela poligonală neregulată, specifică centrului istoric, volumul respectă tipologia curții interioare, incintă străbătută de traseul public. În funcție de orientarea cardinală, vechiul parcelar, vecini și deschiderea pe trei fronturi la Piața Păcii, volumetria se conturează. Frontul vine în continuarea celui existent în Nord și preia cornișa clădirii interbelice monument, păstrând ritmul accentelor verticale prezente. Capetele de perspectivă sunt marcate de mici accente verticale, iar colțul central pieței, de un turn. Fațadele exprimă structura interioară și accentuează ritmurile verticale caracteristice zonei, păstrându-se raportul plin gol. Se acordă o importanță deosebită parcurgerii pietonale, care lasă liber fiecare colț al clădirii pentru a putea fi traversat, iar funcțiunile publice sunt distribuite la parter pentru a activa și a putea funcționa individual de Institut. Spațiul public este clar delimitat de cel privat, atât la interior cât și la exterior, dar clădirea are continuitate și legături între cele două, fiind o structură flexibilă.