
Comentariul autorului:
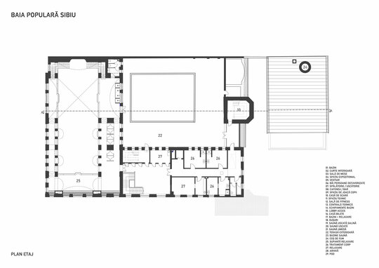
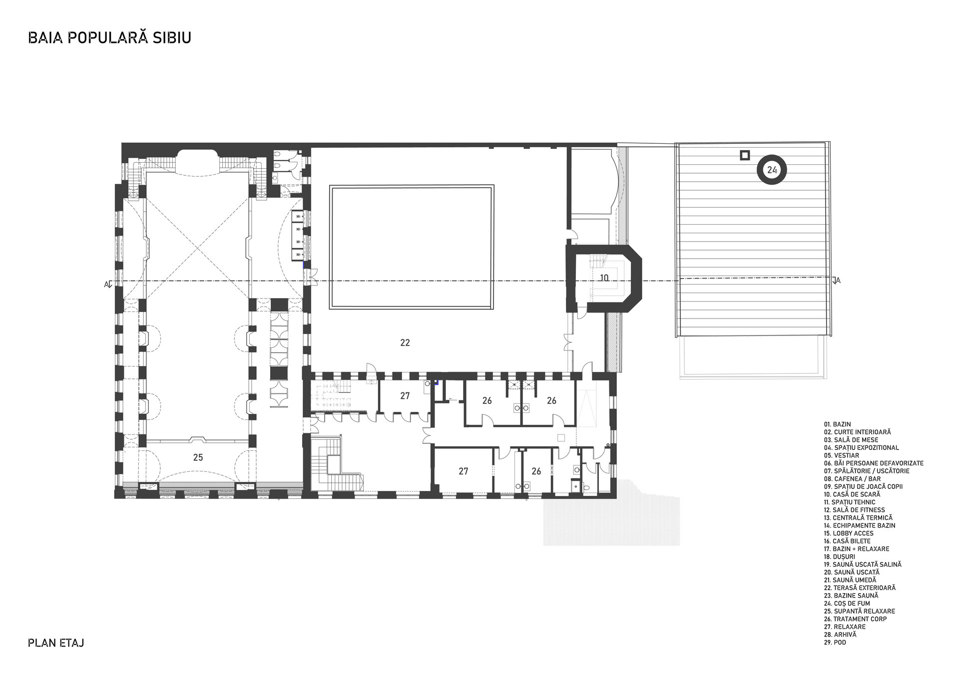
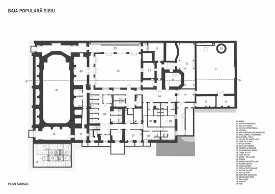
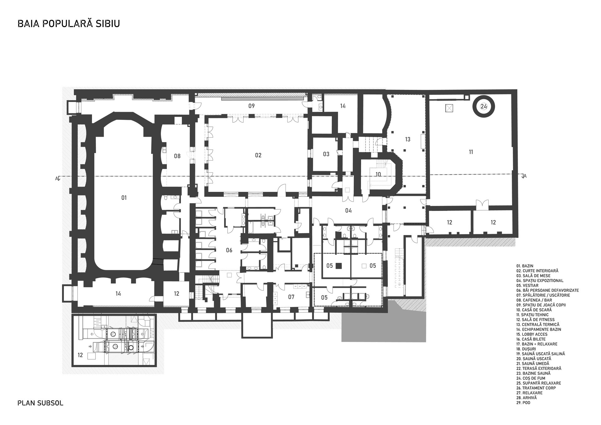
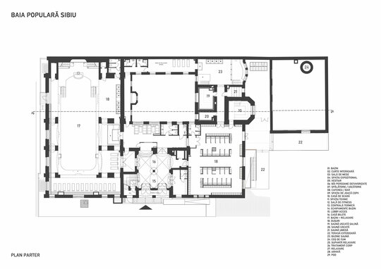
Baia Populară Sibiu edificată în 1904, inițial ca parte integrată a unui ansamblu de clădiri, cu funcțiunea de sanatoriu dotată cu baie și saune, a avut acces dinspre Parcul „Astra”. Azi este doar partea de piscină în utilitate publică, iar intrarea se face dinspre str. Șaguna, prin traversarea unui gang modest. Operă a arhitectului Karl Hocheder, clădirea este un melanj de neobaroc și Jugendstil de sfârșit de secol XIX și început de secol XX, fiind și cel mai reprezentativ exemplu al Jugendstil-ului din oraș. Amplasată într-o curte interioară, Baia Populară este retrasă în interiorul cvartalului, ascunsă de frontul stradal al clădirilor perimetrale. Intrarea în ansamblu se face printr-o arcadă geminată dublă, evidențiată de cele două frontoane ale lucarnelor de deasupra. Spațiul interior emblematic al băii populare este cel al bazinului principal, cu dimensiuni de 21x9x3m. Cu o planimetrie și o secțiune de tip bazilical, sala înglobează bazinul ca piesă centrală, cele două nave laterale, cu funcțiuni de relaxare și pregătire pentru natație, și tribuna înălțată peste arcadele laterale, de asemenea, cu funcțiuni recreaționale. Supanta beneficiază de belvedere spre zona centrală cu piscina. Decorațiile cu motive nautice și marine, cât și fântâna centrată pe axul bazinului, îmbogățesc ornamental și simbolic spațiul. De la etaj se poate accesa noua terasă exterioară desfășurată în jurul curții interioare de tip atrium și amplasate la nivelul cotei planului subsol. Frontonul fațadei principale este reprodus și transpus ca piesă de impozanță a acestui atrium. La subsol, exceptând spațiile tehnice și de serviciu, există o sală de fitness, amplasată într-un corp separat de cel principal. Acest spațiu de tip hală industrială înglobează și coșul de fum al fostei centrale termice. Coșul de factură stilistică industrială, împreună cu turnul de apă într-un stil neobaroc – transformat în casă de scară și platformă de belvedere pentru vizitatori - reprezintă cele două volume orientate vertical, în acest ansamblu predominant orizonal. Restaurarea a vizat întregul ansamblu, atât spațiile interioare și cele exterioare, fațadele, învelitoarea și șarpanta, cât și propunerea unor noi piese de mobilier și tâmplării apropiate celor originale. O altă intervenție semnificativă este cea structurală, considerabile fiind înlocuirea scărilor metalice din turnul casă de scară și învelitoarea cu structura aferentă a sălii de fitness. De asemenea, toate instalațiile existente au fost schimbate cu instalații noi, aducându-se completări pentru a fi îndeplinite necesitățile și standardele actuale. Prin noul circuit au fost puse în valoare spațiile istorice reprezentative. Astfel au fost regrupate zone de vestiare, și eliberate spațiile din jurul piscinei. Prin reorganizarea spațiilor anexe (administrația și C.T.) a fost posibilă reintroducerea în circuit public, inclusiv a corpului industrial a centralei termice de la începutul secolului XIX.