
Comentariul autorului:
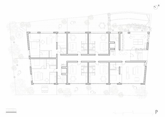
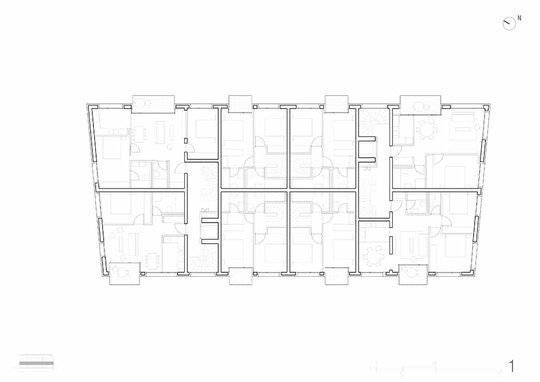
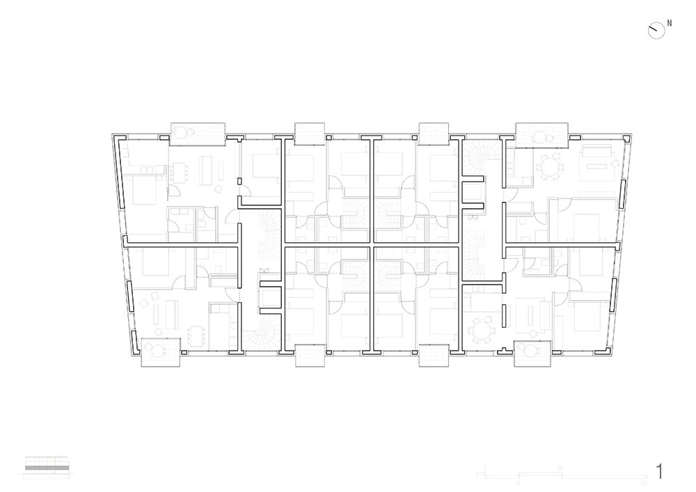
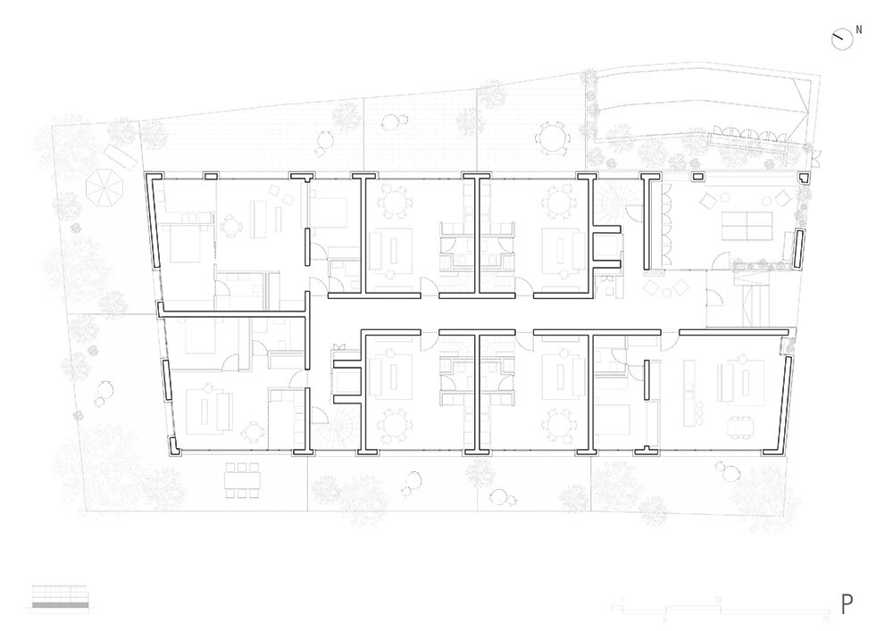
Dragoș Vodă 17 este un ansamblu de locuințe colective amplasat în contextul unei străzi bucureștene cu parcele înguste și lungi. Imobilul se dezvoltă în adâncime iar fațadele laterale se eliberează lăsând loc grădinilor private pe ambele laturi.
Retragerile succesive, glisările orizontale de la etajele superioare și individualizarea lor prin tencuieli trase cu texturi diferite, decupajele logiilor și balcoanele metalice care ies ca niște „sertare” din planul fațadei, toate adaugă o notă prietenoasă și aduc volumul la scara vecinătății.
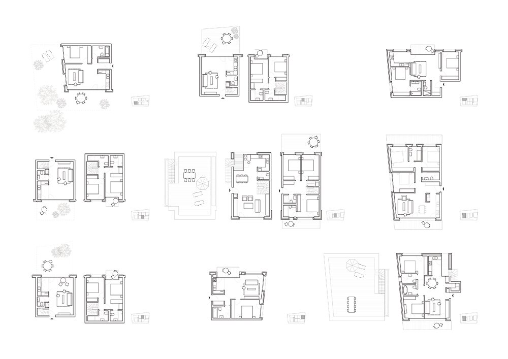
La interior, împărțirea se face în 13 tipuri de unități de locuit din totalul de 17. Dubla orientare a majorității apartamentelor, prin dispunerea traversantă sau pe colț, vitrajele generoase și diversitatea spațiilor exterioare îmbogățesc experiența locuirii. Dincolo de spațiile exterioare private, spre stradă este prevăzut un spațiu dedicat comunității pentru activități în aer liber: parcare de biciclete/trotinete, loc de joacă sau de socializare.