
Comentariul autorului:
Apartamentul MM este rezultatul unor eforturi susținute și a pasiunii comune pentru detalii a celor implicați, dar și grație unei bune comunicări cu beneficiarii, o familie cu doi copii ce aveau să se instaleze în apartamentul situat într-un mobil nou construit în zona centrală a orașului.
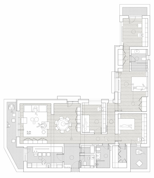
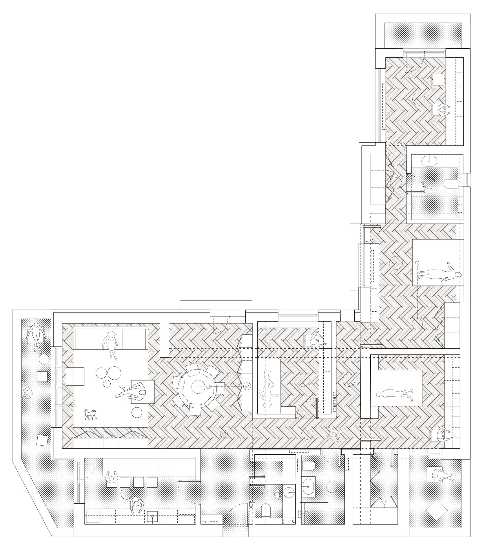
Spațiul de 150 mp a rezultat din unirea a două apartamente mai mici, și avea să răspundă unui cumul de funcțiuni necesare locuirii contemporane, a cărei versatiltate s-a anunțat odată cu lucrul de la distanță.
Provocarea principală a proiectului a fost aceea de convertire a unui defect de proiectare, în elementul ordonator al spațiului imaginat. Prezența grinzilor masive care traversează spațiile haotic și aleatoriu față de închiderile pereților, a dus la nașterea unui element central al proiectului, plafonul - element arhitectural care subordonează / ordonează spațiul. Astfel, partea de sus a noii lumi, plafonul și grinzile, a fost conturată cu o tencuială texturată specială dintr-un registru al sobrietății industriale, pe când la nivelul solului și parietal a fost utilizat din abundență lemnul.
Între cele două registre s-a instalat, pe fondul luminos și calm al pereților albi, un mobilier discret pus în scenă de corpuri de iluminat care mizează pe minimalism. În mod voit, mobilierul este de dimensiuni reduse pentru a nu încărca inutil spațiul.
Separarea discretă și rafinată între materiale, între tencuială, lemn, piatră, ajută la conviețuirea bine echilibrată a contrastelor, ce marchează și unifică totodată întreg spațiul.