
Comentariul autorului:
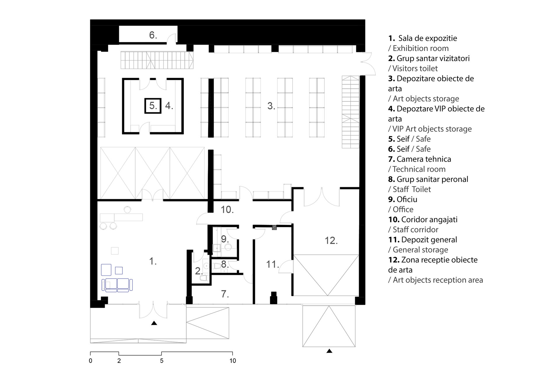
ARTSAFE - primul depozit de artă din România. Cum se transformă un Combinat într-un incubator pentru artă și design. COMBINÁT, combinate, s. n. Mare complex productiv care reunește mai multe întreprinderi industriale și în care uneori produsele uneia din întreprinderi servesc celorlalte ca materie primă, semifabricată sau auxiliară. DEPÓZIT, depozite, s. n. 1. Loc, clădire în care se păstrează materiale de construcție, mărfuri etc., magazie. 2. Ceea ce se depune spre păstrare; (în special) bani sau hârtii de valoare Crearea și amenajarea primului depozit profesional de artă din România a venit ca o consecință a maturizării uneia din cele mai tinere ramuri ale sectorului cultural românesc - piața de artă. Nevoia de a crea un spațiu dedicat păstrării și depozitării artei a coagulat privatul și publicul – artiștii, galeriștii, muzeele, colecționarii, au creat această oportunitate de a prelua un spațiu și de a-l amenaja pentru a putea depozita obiecte de colecție. Spațiul propus se află în cadrul unui complex legendar pentru sectorul cultural bucureștean, Combinatul Fondului Plastic. Istoria acestuia este legată de Uniunea Artiștilor Plastici și începe în 1965, când „se trece în folosinţă gratuită veşnică un teren de 17.040 mp de pe str. Băiculeşti nr. 29, sector 1”. Pe acest teren se ridică o fabrică, un complex de clădiri multifuncţionale unde se puteau executa lucrări după prototipurile artiştilor, acoperind cca. 18 tehnologii diverse (ceramică, sticlă, textile, metal, lemn etc.). Micile ateliere au fost atunci înlocuite de o întreprindere unică în Bucureşti. Spațiul are un aspect industrial, fiind parte dintr-o clădire parțial renovată , cu o înălțime principală de peste 7 m. Activitatea principală - depozitarea operelor de artă și a obiectelor de colecție - a impus respectarea normativelor tehnice de conservare, lucru care a dictat modul de organizare al spațiilor: depozitare, conservare pe termen lung, spații tehnice și expoziționale. Intervenția a constat în: organizarea funcțională, stabilirea ierarhiei spațiilor, a modului în care vor fi introduse operele, pregătirea acestora , introducerea în zona de depozitare, protejarea împotriva UV și menținerea în condiții stabile de umiditate, temperatură și lumină. Un aspect important a reprezentat flexibilitatea în timp a spațiului, pentru a putea primi opere de diferite dimensiuni, precum și capacitatea maximă de stocare. în spațiul principal al expoziției am păstrat un perete din cărămidă aparentă original, ca mărturie a istoriei locului; restul pereților, care prezentau porțiuni foarte degradate, au fost refăcuți și vopsiți într-o culoare neutră, ce amplifică proporția spațiului și pe care se proiectează exponatele. Tavanul original a fost vopsit negru pentru a se dizolva în geometria spațiului. Fațada a fost refăcută, păstrând forma și proporția inițială. Din exterior o bandă luminoasă ne invită în spațiul expoziției.