
Comentariul autorului:
Amenajarea propriului birou de arhitectură reprezintă o mare provocare, mai ales că acesta reprezintă întotdeauna o carte de vizită în abordarea oricărui început de colaborare.
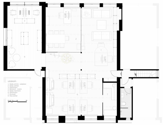
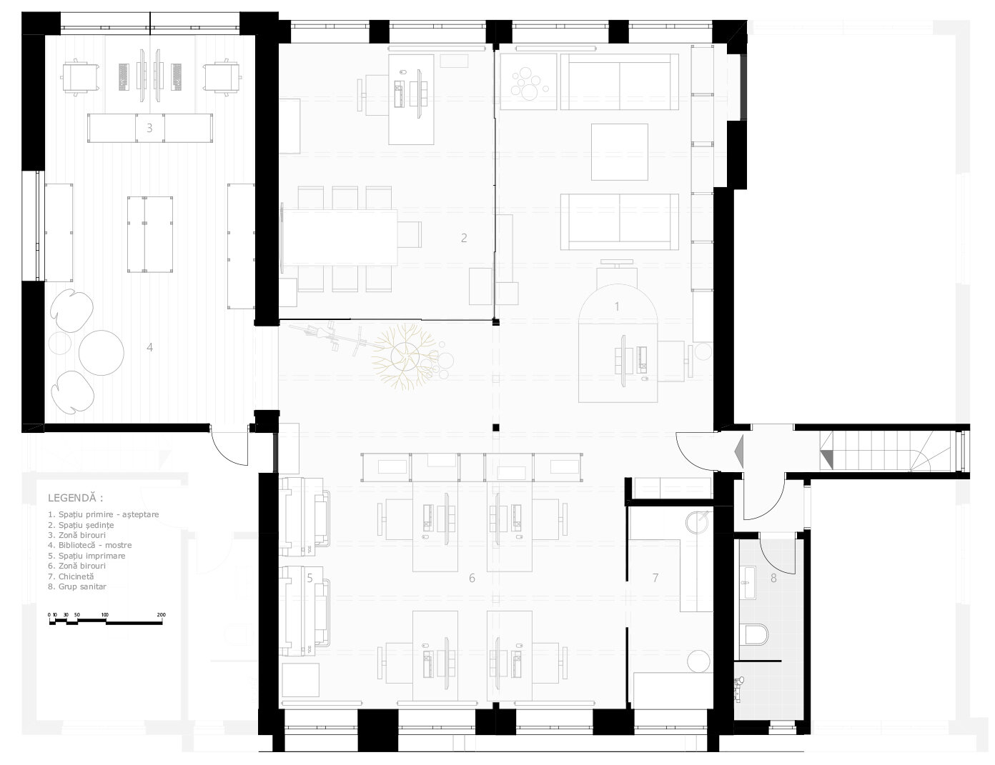
Spațiul a fost amenajat la etajul al doilea dintr-un imobil existent, supraetajat pe structura ușoară de lemn lamelar, rămasă aparentă, care dă și atmosfera generală prin căldură texturii acestuia.
Pe lângă lemn, se subordonează alte materiale - pardoseală de rășină epoxidică albă, pereții de microtopping, plase metalice perforate rigide, dar și tapet decorativ. Partițiile zonelor au fost realizate prin uși de sticlă ce despart zona de discuții de restul biroului, și prin mobilier, care separă zona de lucru de intrare.
Atmosfera dorită a fost una caldă, îmbietoare la reflexie, și creatoare de inspirație în rândul arhitecților din echipa. Elementele folosite sunt pe deopotrivă noi - în special finisajele, și echipamentele IT de ultima generație, dar și vintage, unele piese de mobilier și decorațiuni.
S-a dorit ca toate zonele să fie în același spațiu, atmosfera generală să fie una relaxată, iar cadrul de lucru să îmbine și celelalte pasiuni ale proprietarilor, muzica, fotografia, pictura, si pasiunea pentru artă în general.