
Comentariul autorului:
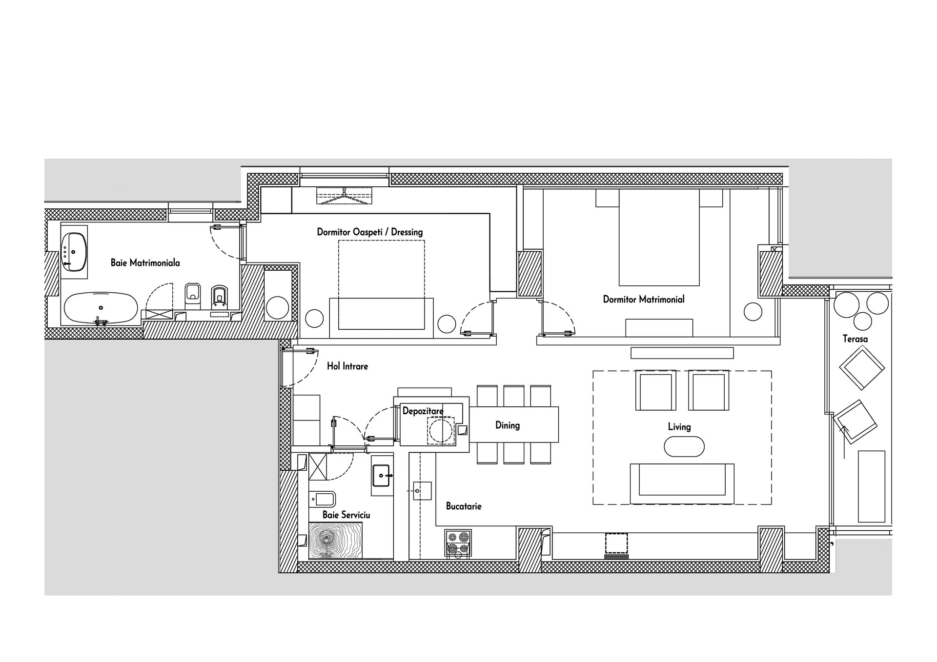
Această amenajare a pornit de la dorința unui cuplu de simplificare a vieții și de a se muta în oraș, de la o casă premiată la Bienala de Arhitectură, aflată într-o suburbie a Bucureștiului - un fel de downshifting și esențializare a cotidianului. Singurul obiect cu care au venit în brief-ul către noi a fost un tablou de Gili Mocanu. Am păstrat în minte acest element, precum și parcul Verdi către care se deschide locuința cu tot interiorul său.
Astfel am încercat să construim un interior care să se înfășoare în jurul tabloului, oferind un context neutru și un interior funcțional, epurat de elemente ce fac parte dintr-o viață ce avea să fie abandonată către o nouă perioadă de esențializare a priorităților. Finisajele au fost construite în jurul cromaticii din lucrarea de artă și obiectele de design au fost alese pentru a crea o identitate a interiorului.