
Comentariul autorului:
O poveste nu are granițe. Ea începe adesea cu o imagine, se continuă prin cuvinte, prinde formă în desen și se animă prin mișcare. În lumea contemporană, poveștile traversează medii și circulă între carte, film, animație și joc video, reinventându-se permanent. În acest context, apare necesitatea unui spațiu care să adune la un loc aceste fragmente și să le ofere un cadru arhitectural coerent, care facilitează transpunerea poveștilor de la o formă la alta.
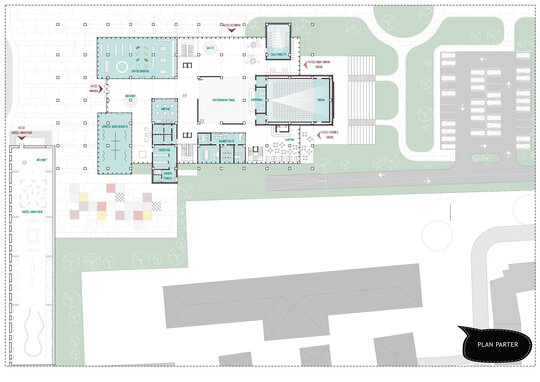
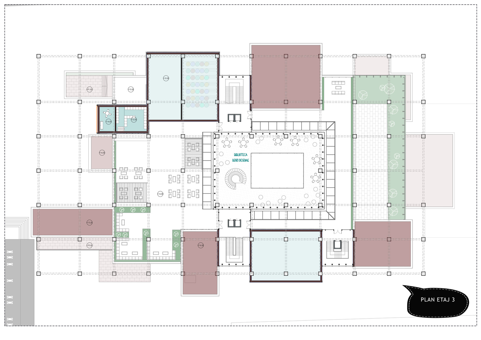
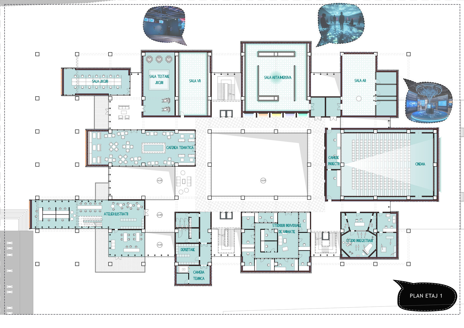
“Fabrica de povești” este un centru pentru industrii creative, ce integrează animația, benzile desenate și jocurile video. Alegerea acestor trei direcții nu este întâmplătoare: ele reprezintă etapele prin care o narațiune poate migra dintr-un mediu în altul, menținându-și esența dar îmbrăcând forme noi. Clădirea devine, astfel, o metaforă a poveștii contemporane, care se multiplică și se transformă.
Conceptul proiectului urmărește ideea de „poveste în poveste”: fiecare volum reprezintă un mic univers, cu propria sa identitate, dar împreună, prin conexiunea oferită de țesătura structurală a stâlpilor și grinzilor, construiesc povestea întregii clădiri. Această abordare conferă clădirii modularitate și flexibilitate, permițându-i să evolueze și să se transforme odată cu poveștile pe care le adăpostește.