
Comentariul autorului:
Proiectul grădiniței din comuna Apahida, situată în zona Dealurilor Clujului, urmărește integrarea specificului local urbanistic, arhitectural și cultural într-un ansamblu educațional modern și funcțional. Studiul specificului local a scos în evidență tipologia construcțiilor tradiționale dispuse longitudinal pe parcelă, cu locuința principală la stradă și anexele în prelungire, acoperișuri cu pante mari, fronton triunghiular sau teșit, sarpantă din lemn și învelitoare din țiglă ceramică, uneori cu șindrilă sau sită. Fațadele sunt structurate pe registre orizontale – soclu, târnaț și acoperiș – și sunt decorate cu ancadramente la ferestre și colțuri.
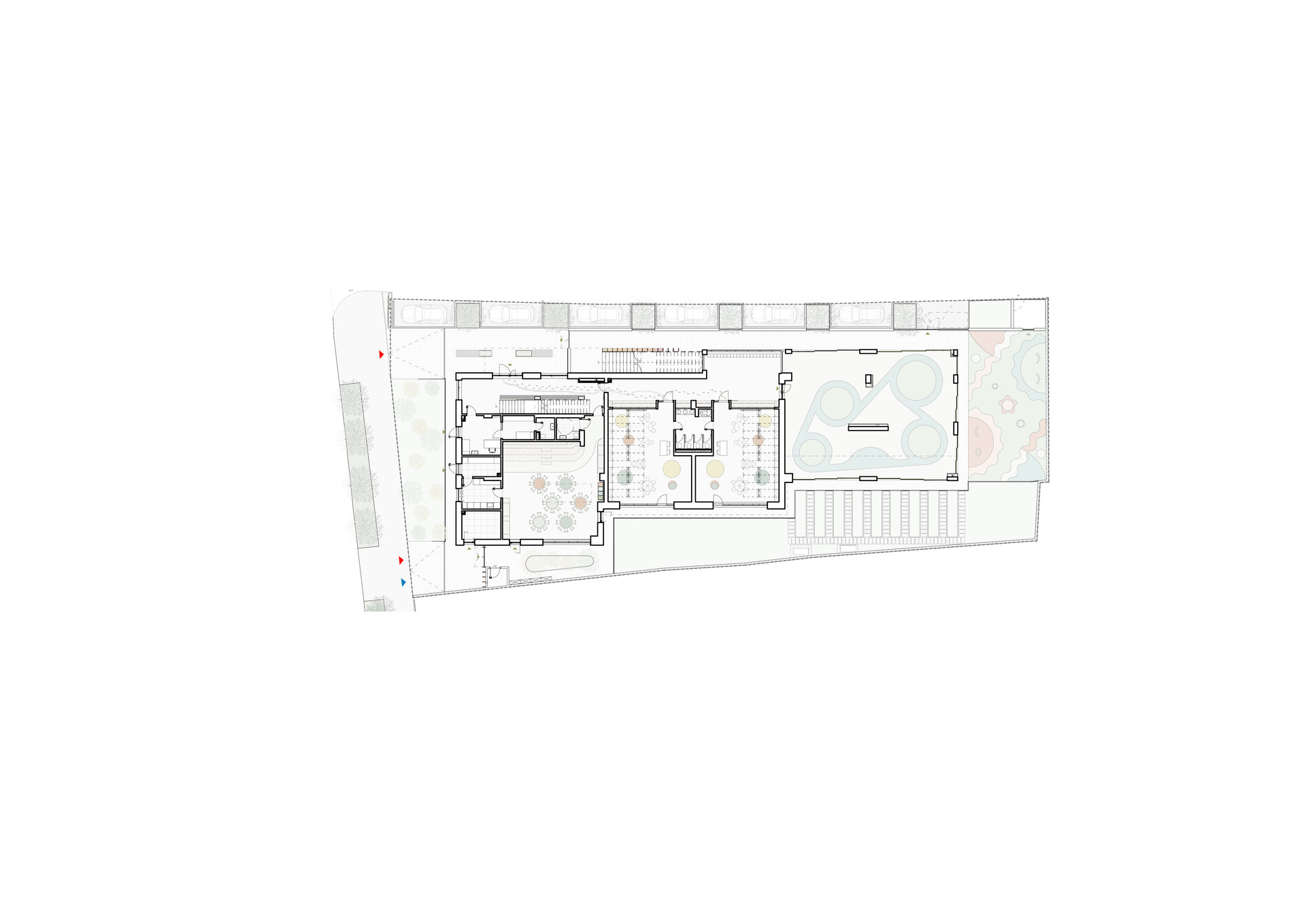
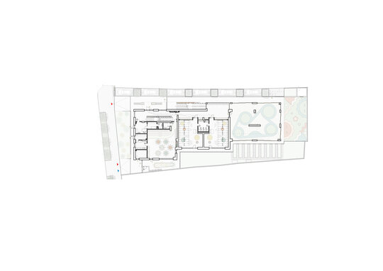
Volumetria clădirii respectă reglementările urbanistice și topografia terenului, proporția față de vecinătăți, orientarea stradală și cardinală, precum și retragerile. Formele tradiționale sunt reinterpretate modern: sarpanta în două ape și compartimentarea volumetrică inspirată de gospodăriile rurale clujene. Volumul principal a fost divizat în trei subvolume orizontale, diferențiate prin console și tratamente ale fațadelor. Cel administrativ, situat spre stradă, este marcat printr-o consolă generoasă și un tratament mai sobru, în timp ce cele două volume dedicate grupelor de copii au fațade colorate și detalii atractive.
Spațiul exterior este amenajat atât pentru activitățile educative, cât și ca element comunitar. Unul dintre volumele copiilor este ridicat de sol, creând un spațiu acoperit pentru joacă ce comunică cu zona neacoperită. Acesta poate fi delimitat prin panouri glisante, funcționând simultan sau individual. Curtea include grădină de legume, teren de sport și spații de joacă, iar zonele adiacente străzilor au fost amenajate cu spații verzi și locuri de parcare.
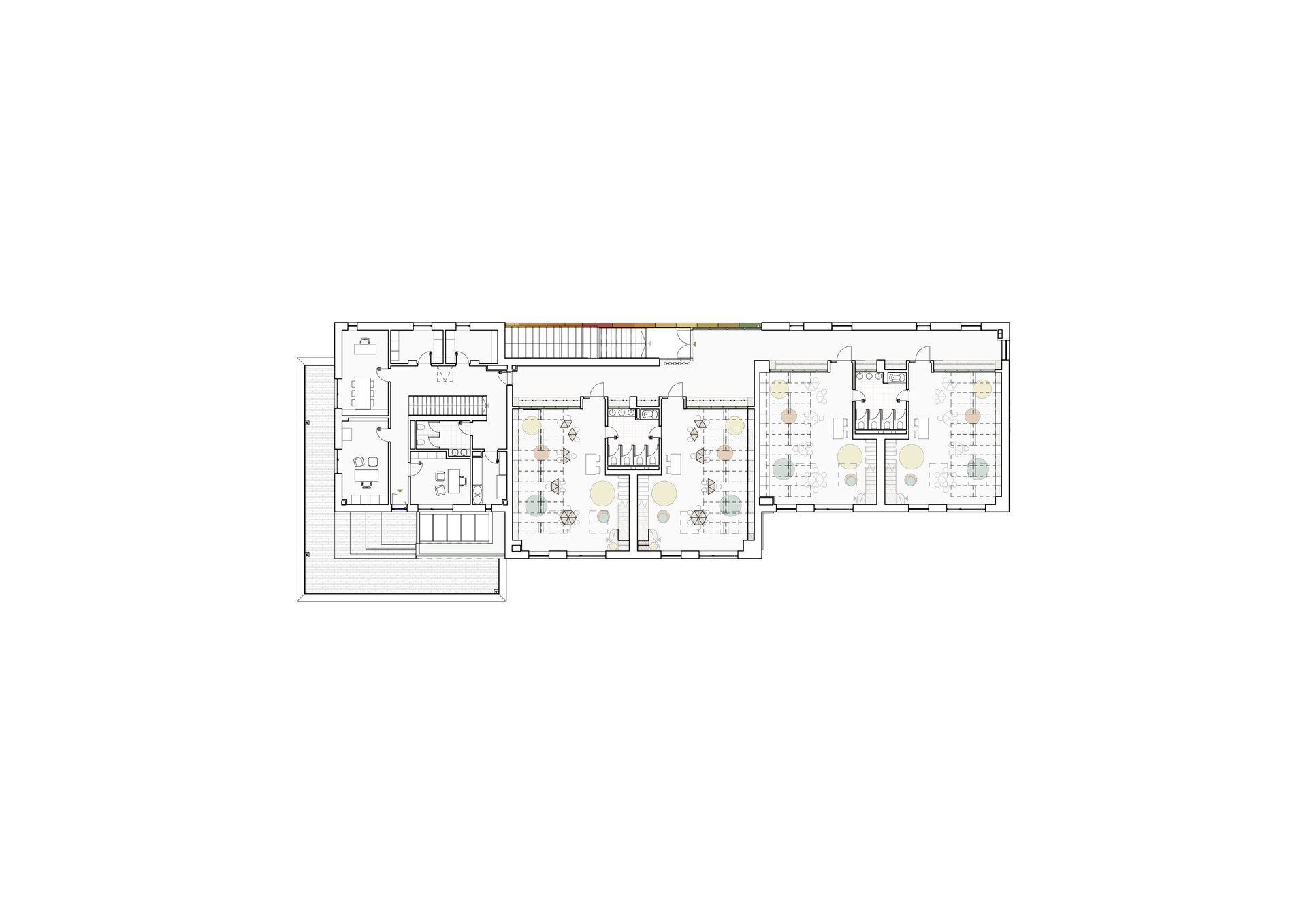
La parter, accesul principal se face printr-un hol-filtru, care conduce către grupe sau cabinetul medical. Sala de mese, multifunctională, poate fi utilizată și pentru evenimente și serbări, având mobilier modular, stivuibil, și zone de gradene. Două grupe dispun de acces la grup sanitar și lockere individuale. Etajul include patru grupe și spații administrative, cu acces la grupuri sanitare și lockere. Fiecare grupă dispune de spații în cadrul șarpantei, pentru supravegherea copiilor, accesibile prin scări interioare.
Fațadele reinterpretate modern respectă elementele tradiționale: sarpanta, timpanul și registrele orizontale. Placarea cu fibrocement în nuanțe atractive pentru copii, ferestrele cu ancadramente colorate și decorațiunile sub formă de animale, precum și elementele verticale colorate de la scara exterioară, creează un mediu prietenos și stimulativ. Spațiile interioare folosesc un paletar de verde și portocaliu ca accente și nuanțe neutre generale, în combinație cu lemn natural, pentru un ambient cald și confortabil. Toate finisajele respectă normele sanitare, fiind antimicrobiene și antiderapante.
Coridoarele includ vestiare individuale pentru copii, dulapuri pentru depozitarea obiectelor, pași direcționali pe pardoseală și instalații educative interactive. Sălile de grupă sunt organizate ca orașe în miniatură, cu mobilier modular, paturi rabatabile integrate în mobilier, table interactive, corpuri de bibliotecă și perne modulare. Sala de mese este flexibilă, cu mobilier stivuibil și gradene, echipată cu laminator superior pentru iluminare uniformă. Întregul concept urmărește crearea unei identități unice a spațiilor, în acord cu funcțiunea, aspectul exterior, activitățile și contextul local, stimulând dezvoltarea cognitivă, socială și emoțională a copiilor.