
Comentariul autorului:
Proiectul „Stațiunea de cercetări Marine și Fluviale Sfântu Gheorghe” este conceput ca o intervenție arhitecturală care pune în dialog tradiția și modernitatea, natura și cercetarea, specificul local și nevoile actuale ale unei instituții științifice. Pornind de la identitatea locului, proiectul își propune să devină nu doar un centru de cercetare funcțional și eficient, ci și un reper arhitectural ce reflectă valorile comunității și ale peisajului unic din Delta Dunării.
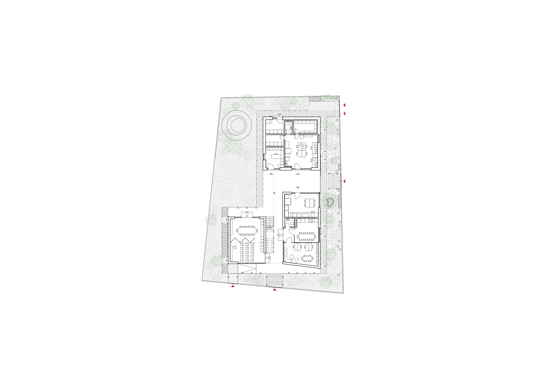
Un element esențial al conceptului este reinterpretarea unor motive tradiționale specifice arhitecturii locale, precum timpanul și decorațiile discrete, dar mai ales prispa, spațiu de tranziție între exterior și interior, între privat și public. Această prispa este transformată aici într-o cursivă, un element linear care leagă funcțiunile și care devine nu doar un coridor de acces, ci și o zonă de întâlnire și de relaționare. Prin cursivă se accesează atât camerele de cazare, cât și laboratoarele de cercetare, iar în același timp ea structurează întreg ansamblul, oferindu-i coerență și deschidere.
Permeabilitatea este un principiu de bază al proiectului. La nivelul parterului au fost create două treceri principale care străbat clădirea și care pun în legătură directă strada cu curtea interioară din spate. În acest fel, stațiunea nu rămâne un spațiu izolat, ci devine un loc deschis, legat organic de țesutul urban al localității Sfântu Gheorghe. Prin aceste conexiuni se creează un dialog între spațiul public și cel intim al ansamblului. În timp ce strada reprezintă zona dinamică, de acces și circulație, curtea din spate se transformă într-un loc de relaxare, odihnă și socializare. Aici utilizatorii – cercetători, studenți sau vizitatori – sunt invitați să petreacă timp împreună, să interacționeze și să dezvolte legături, completând astfel dimensiunea științifică a proiectului cu una umană și comunitară.
Integrarea în contextul construit și natural a fost o preocupare constantă. În vecinătatea imediată există deja o clădire aparținând stațiunii, realizată cu acoperiș de stuf, ceea ce a generat dorința de a continua utilizarea materialelor locale pentru a păstra coerența vizuală și identitară a ansamblului. Lemnul, stuful și piatra naturală sunt materialele dominante, acestea fiind nu doar expresii ale tradiției constructive, ci și soluții sustenabile, adaptate mediului și condițiilor climatice ale Deltei Dunării. Continuarea acestui limbaj material nu reprezintă o simplă imitație, ci o reinterpretare contemporană, prin care se respectă memoria locului și se oferă în același timp o expresie arhitecturală actuală și funcțională.
Vegetatia are, de asemenea, un rol central în proiect. Ea nu este tratată doar ca element decorativ, ci ca parte integrantă a arhitecturii și a spațiului de viață. Arborii și plantele locale contribuie la reglarea microclimatului, oferă umbră, protecție și creează un cadru prietenos și relaxant. În plus, pentru a sublinia legătura strânsă cu natura și pentru a încuraja biodiversitatea, au fost prevăzute case pentru păsări în curte, un detaliu simplu, dar cu valoare simbolică și ecologică.
Funcțiunea principală a stațiunii este cea de cercetare, însă programul este completat de spații de cazare pentru cercetători și vizitatori. Aceste camere sunt accesibile direct de pe cursivă și au fost gândite astfel încât să ofere un confort sporit și o flexibilitate funcțională. Fiecare spațiu include atât o zonă de lucru, cât și una de odihnă, iar pentru a maximiza suprafața utilă, a fost valorificată sarpanta clădirii. Subpanta acoperișului devine astfel un spațiu suplimentar, integrat, care permite o mai bună organizare pe verticală. Luminatoarele introduse în sarpantă au un rol esențial: ele aduc lumină naturală abundentă în camerele de cazare, îmbunătățind calitatea mediului interior și creând o atmosferă luminoasă, caldă și primitoare. Prin această soluție, spațiile de cazare nu mai sunt simple locuri de dormit, ci adevărate micro-universuri de lucru și odihnă, care stimulează creativitatea și dialogul între utilizatori.
Laboratoarele de cercetare, spațiile de cazare, zonele administrative și spațiile comune sunt unite într-un ansamblu coerent, unde funcționalitatea se îmbină cu o arhitectură sensibilă la specificul locului. Proiectul nu propune doar o infrastructură pentru cercetare, ci și un mod de viață și de interacțiune. Prin organizarea spațiilor, prin utilizarea materialelor locale, prin introducerea vegetației și a detaliilor inspirate din natură, stațiunea devine un loc viu, adaptabil, care reflectă echilibrul dintre știință și natură, dintre tradiție și contemporaneitate.
Astfel, „Stațiunea de cercetări Marine și Fluviale Sfântu Gheorghe” nu este doar o clădire, ci un peisaj arhitectural în sine: un ansamblu sustenabil, coerent și profund legat de identitatea locului, care integrează armonios activitatea de cercetare cu specificul cultural și natural al Deltei Dunării. Este o arhitectură care vorbește despre continuitate, deschidere și dialog – între oameni, între spații și între timpuri.