
Comentariul autorului:
Proiectul începe de la conștientizarea destinului orașului Brăila atât la nivel social, economic și cultural, cât și la nivel urbanistic și arhitectural, fiind observată o decădere a clarității și expresivității pe care țesutul urban o putea reda la finalul secolului al XIX-lea ca fundal pentru actorii orașului. În momentul prezent, din centrul istoric al orașului se desprind fragmente ale mărturiilor istorice, identificate ca ''terrains vagues''.
Proiectul abordeaza ideea de a identifica aceste disoluții ce întrerup legătura cu mărturiile istorice ale Brăilei și de a acționa asupra lor prin ''acupunctură urbană''. Muzeul de Istorie “Carol I”, punct de atracție încă din momentul sistematizării urbane de la jumătatea secolului al XIX-lea, ce bordează Piața Traian și se desfășoară pe Calea Galați reprezintă punctul incipient de redesenare a orașului.
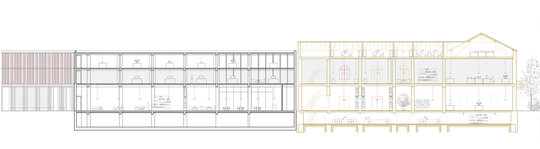
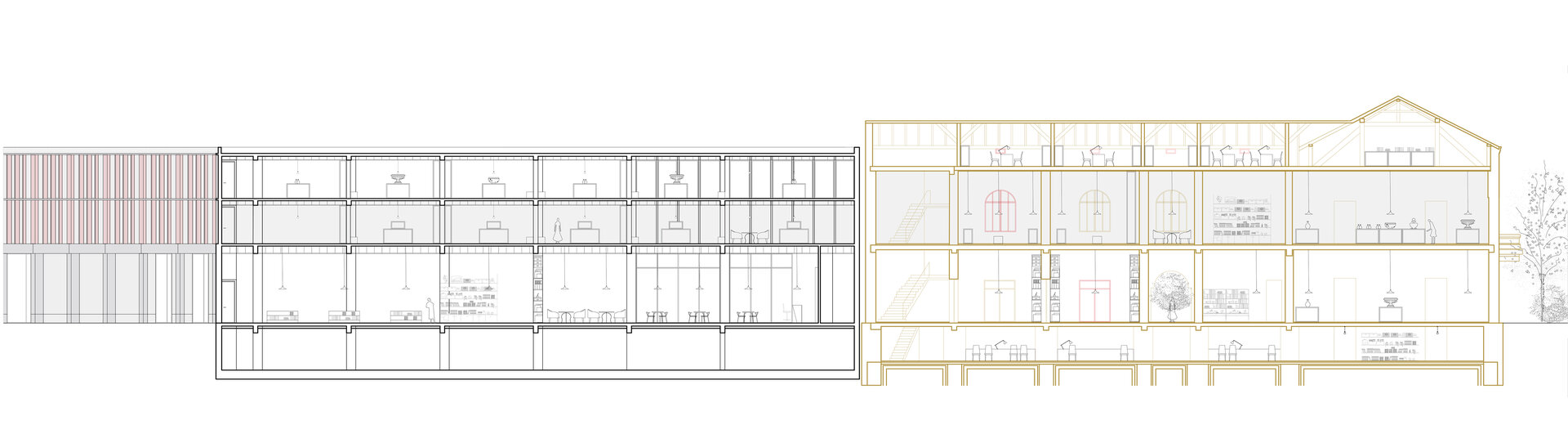
Conceptul propune înlăturarea transformărilor ce NEAGĂ trama urbană radială și regulată, acum întreruptă, simetria orașului regăsită și în muzeu, astăzi îngrădită și impactul unui catalizator urban, astăzi aflat în umbră. Astfel, în fragmentul urban ales își fac loc extinderea și reconfigurarea muzeului printr-un spațiu ce prioritizează coerența și continuitatea urbană a centrului istoric, dar și a elementului monument, completând frontul stradal, creând o legătură funcțională, spațială și vizuală cu orașul, muzeul și comunitatea.
Principiile volumetrice de bază care stau la baza proiectului sunt: luarea în considerare a celor două elemente direcționale ale muzeului existent, frontul de pe Calea Galați și corpul nodului vertical, extinse prin două spine, alături de păstrarea și prioritizarea elementului natural, grădina, legătura între nou și vechi, urmate de completarea spinelor cu elemente care pot întregi imaginea noului muzeu printr-un miez creat între acestea și o necesitate de completare a calcanului existent. Adăugate acestor principii, intervine ideea potențialei simetrii preluate din cadrul muzeului existent și principiul pieței de primire a elementului public, creat prin retragerea de la aliniament.
Elementele menționate capătă fiecare o identitate:
Spina din Calea Galați – element care va contribui la traseul muzeal circular și va păstra ideea spațiilor muzeale celulare din cadrul muzeului existent;
Spina din continuitatea celulei scării muzeului – element particular de legătură ce prelungește perspectiva monumentală de pe scara monumentală spre muzeul nou;
Miezul – element particular care funcționează ca spațiu amplu de primire și care poate deveni un atrium deschis sau închis datorită pereților amovibili, având o structură radială aplicată pe un spațiu neregulat, ce amintește de principiul radial regăsit în planimetria orașului, cu o secțiune conică cu luminator, ce extinde spațiul ambiental și de loisir spre interior;
Grădina - care funcționează ca o extindere a parcursului muzeal, care, chiar dacă scindează cele două parcele, marchează memoria acestora printr-o diferență la nivelul pavimentului și a densității vegetației.
Restul funcțional - subordonat ca geometrie, dar completează funcțional și planimetric inserția.
Imaginea exterioară a inserției respectă principiile ritmice, de repetiție a golului și plinului, reinterpretând registrele orizontale și verticale ale muzeului prin diferențe de finisaje, culori și accente.
Prin această abordare, extinderea muzeului nu este doar o adăugire funcțională, ci devine un catalizator urban capabil să reactiveze viața culturală și socială a centrului istoric, oferind un exemplu de reconectare a patrimoniului cu prezentul și de regenerare a țesutului urban fragmentat.