
Comentariul autorului:
Ansamblul Fabricii de Bere Bragadiru, situat între Calea Rahovei și Bulevardul George Coșbuc, reprezintă un reper valoros al patrimoniului industrial bucureștean. Amplasamentul este marcat de diferențe de nivel de până la 7–8 metri, aspect care a influențat organizarea inițială a complexului. Încă de la începuturi, fabrica a fost gândită ca o incintă închisă, cu limite clare și o logică internă ce integra hale de producție, spații de depozitare și clădiri administrative. Această structură specifică ansamblurilor industriale a permis separarea clară a fluxurilor și a conferit coerență volumetrică sitului.
De-a lungul timpului, demolările și intervențiile necontrolate au afectat continuitatea ansamblului. Excavările au generat curți scufundate, cu diferențe de nivel semnificative, iar clădirile au fost expuse degradărilor. Corpul principal de pe frontul Bulevardului George Coșbuc, realizat din zidărie de cărămidă, se află într-o stare avansată de deteriorare: acoperișuri afectate, fațade fisurate și zidărie fragilizată. Cu toate acestea, structura robustă și valoarea arhitecturală a clădirii îi conferă un potențial ridicat de conversie și reutilizare.
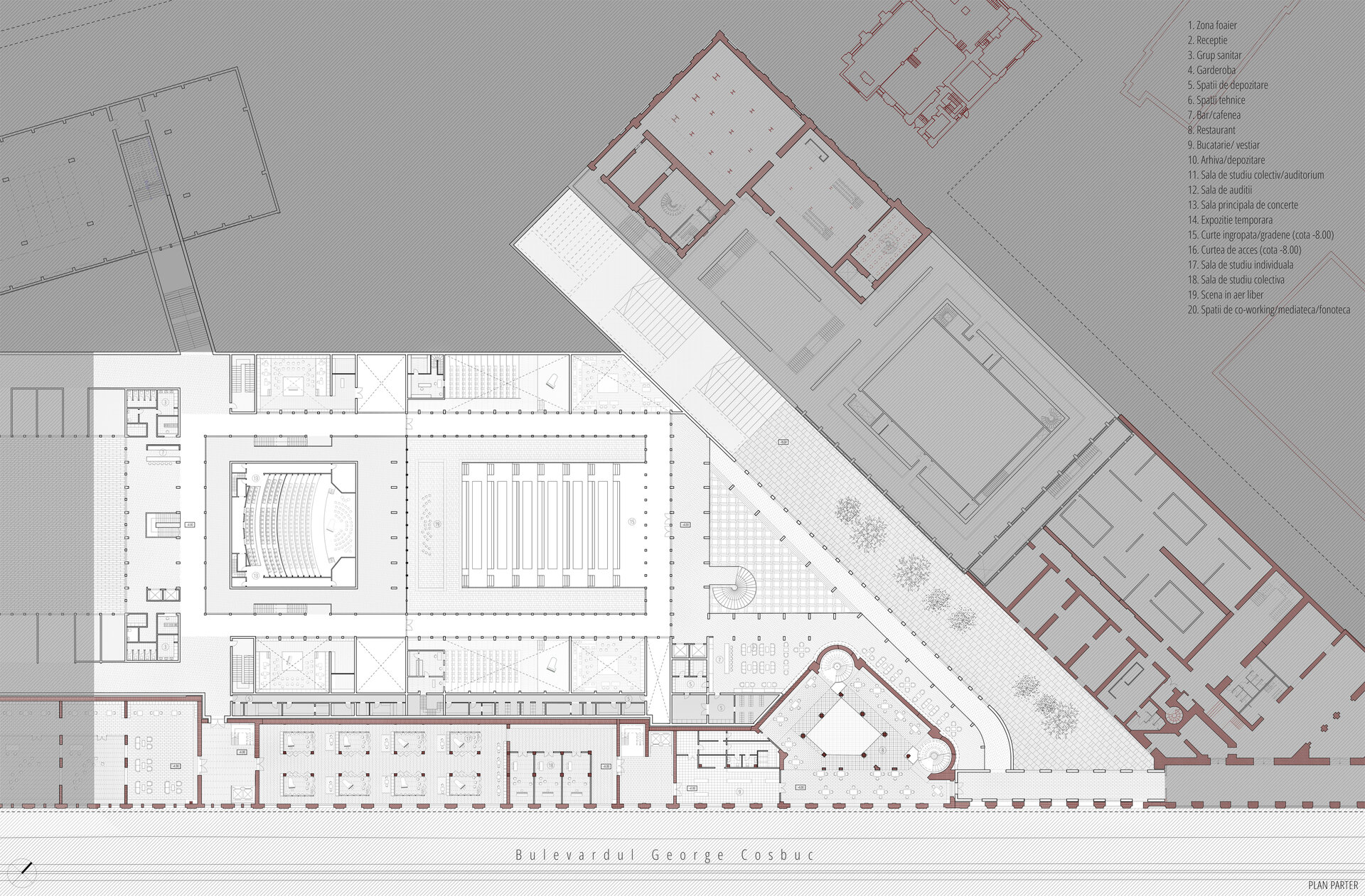
Proiectul propune transformarea ansamblului într-o școală de muzică. Noua funcțiune răspunde nevoilor culturale și educaționale actuale și se corelează cu structura de incintă a sitului, care devine astfel un cadru pentru un program educațional și cultural. Școala include săli de studiu individual și colectiv, spații de repetiție, un muzeu al muzicii și o sală principală de concerte.
Extensia se dezvoltă în mare parte în subsol, valorificând topografia terenului. Nucleul noii intervenții este sala principală de concerte, singurul volum care iese deasupra cotei terenului, marcând vizual și simbolic importanța funcțiunii.
În jurul sălii și al zonei de gradene se dezvoltă o circulație perimetrală, structurată ca un portic continuu care organizează și leagă întregul ansamblu. Acest element arhitectural interpretează la scară contemporană ideea de incintă: delimitează, structurează și articulează spațiile, creând o coerență funcțională între sala centrală și restul programului. Platformele de circulație suspendate nu ating volumul sălii, păstrându-i autonomia și accentuând statutul de obiect central.
Spațiile subterane includ săli de studiu, săli de repetiție, spații de expoziție și foaiere, organizate concentric în jurul sălii mari. Această structură clară susține atât logica funcțională a școlii, cât și caracterul de incintă reinterpretată. Circulația perimetrală nu doar organizează spațiile interioare, ci creează și o legătură directă între interior și exterior, asigurând continuitatea fluxurilor și vizibilitatea spațiilor.
La baza gradenelor se pot desfășura concerte în aer liber, extinzând astfel activitatea școlii dincolo de limitele sălii principale. Gradenele servesc atât ca loc de ședere pentru publicul acestor evenimente, cât și ca spațiu informal de relaxare, datorită zonelor verzi integrate. Aceste spații verzi transformă gradenelor într-un loc accesibil de petrecere a timpului în aer liber, menținând caracterul deschis și comunitar al ansamblului.
Clădirea de pe frontul bulevardului a fost păstrată și convertită pentru a găzdui funcțiuni complementare: săli de studiu, spații administrative și un muzeu al muzicii, spatii de coworking, restaurant, cafenele. Intervenția a urmărit conservarea vizibilă a structurii originale, integrarea noilor compartimentări într-o manieră reversibilă și păstrarea caracterului structural istoric.
Întregul proiect se bazează pe ideea de incintă reinterpretată. Dacă ansamblul industrial delimita odinioară un spațiu de producție controlat, noua școală de muzică definește o incintă culturală deschisă, menținând însă claritatea și coerența organizării.
Sala de concerte devine reperul dominant, în jurul căruia se articulează restul funcțiunilor. Clădirea istorică păstrează legătura cu trecutul și cu orașul, iar extensia subterană adaugă un strat contemporan, adaptat cerințelor actuale. Cele două componente formează o unitate coerentă, unde dialogul dintre patrimoniul existent și arhitectura nouă este guvernat de aceeași logică a incintei.
Proiectul demonstrează cum un sit industrial degradat poate fi recuperat printr-o conversie arhitecturală atentă, capabilă să valorifice structura existentă și să integreze o extensie contemporană. Fabrica de Bere Bragadiru devine astfel o școală de muzică, iar vechea incintă industrială se transformă într-o incintă culturală. Noul ansamblu îmbină memoria istorică cu funcțiunile educaționale și culturale actuale, oferind Bucureștiului un spațiu relevant, deschis și activ.