
Comentariul autorului:
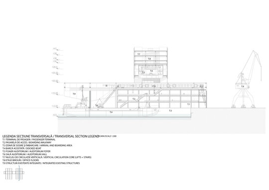
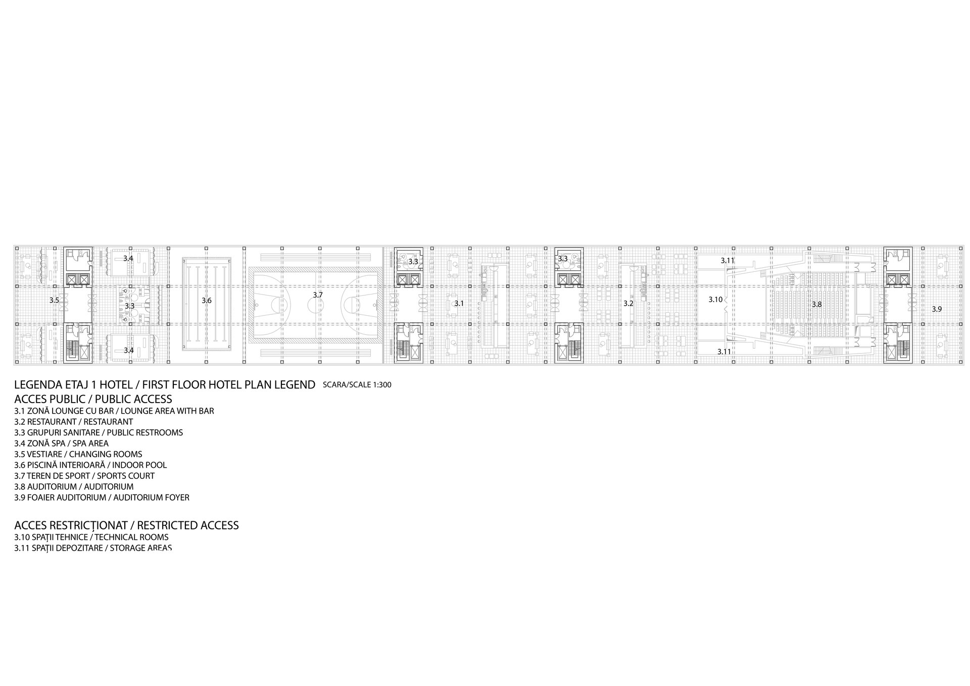
Proiectul propune reconversia zonei portuare Luka Cargo din Belgrad într-un ansamblu urban cu funcțiuni mixte, adaptat contextului contemporan și potențialului strategic al orașului. În perspectiva găzduirii Expo 2027, Belgradul are oportunitatea de a-și reactiva teritoriile industriale și de a le transforma în centre de interes cultural, turistic și economic. Intervenția valorifică structurile industriale existente din fosta zonă cargo, păstrate și reinterpretate în cheie brutalistă, reflectând caracterul puternic și autentic al sitului. În interiorul acestor structuri se integrează un terminal pentru bărci turistice, cu deschidere directă către Dunăre și către rețeaua fluvială regională. Deasupra acestor baze industriale se propune o intervenție contemporană masivă , o bară amplasată pe patru noduri structurale majore, care pare să „călărească” volumul existent. Această structură adăpostește funcțiunile principale ale ansamblului: hotelul urban, centrul de convenții și o serie de spații culturale și expoziționale. Compoziția rezultatului devine un nod urban activ, un simbol al regenerării și al deschiderii Belgradului către dialog internațional, sustenabilitate și turism de calitate.