
Comentariul autorului:
CASA CIOCOLATEI este un proiect conceput ca un spațiu interactiv și educațional, dedicat FABRICII BUCURIA și istoriei ciocolatei. Proiectul urmărește să creeze un mediu atractiv, în care vizitatorii pot descoperi universul dulciurilor prin experiențe senzoriale, activități educaționale și creative, precum și tururi organizate în fabrică pentru a înțelege procesul de producție.
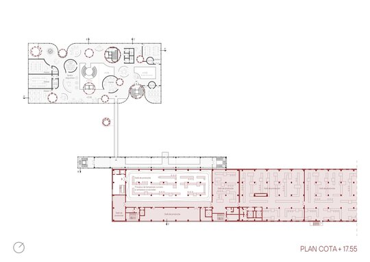
Proiectul este important pentru a împărtăși istoria fabricii Bucuria, tradiția sa și procesul de fabricare a ciocolatei, oferind vizitatorilor o legătură cu spațiile de producție. Pentru a atrage publicul, Casa Ciocolatei include diferite tipuri de spații și activități precum tururi ghidate în fabrică, care explică istoria și procesul de fabricație a ciocolatei, ateliere interactive, unde vizitatorii vor putea participa la procesul de creare a dulciurilor, bucătării demonstrative, expoziții tematice despre istoria ciocolatei, dar și despre istoria Fabricii Bucuria, zonă de conferințe și workshopuri, precum și spații de degustare și vânzare.
Din punct de vedere volumetric, Casa Ciocolatei este un ansamblu arhitectural deschis, integrat în contextul urban, cu acces principal de la Strada Mihai Viteazul, marcat de o bară suspendată care adăpostește atelierele de ciocolată. Volumetria clădirii este organizată în formă de „U”, deschisă spre parc, accentuată de o rampă largă care conectează spațiile interioare cu exteriorul. Un element distinctiv al proiectului este fațada dublă atașată de corpul de producție a Fabricii Bucuria, oferind posibilitatea explorării procesului de producție fie de la distanță, fie prin acces direct în fabrică. În plus, un accent vertical a fost introdus atât ca punct de acces rapid din parcarea subterană în parc, cât și ca turn de belvedere, oferind o perspectivă favorabilă spre lacul Albișoara și contribuind la compoziția arhitecturală.
Proiectul aduce mai aproape spațiile de producție de comunitate și de oraș, transformând zona din jurul Fabricii Bucuria, care este încadrată ca zonă de revitalizare, într-un loc accesibil și atractiv, aflat aproape de centrul Chișinăului. Prin muzeul dedicat ciocolatei, activitățile interactive și parcul activ propus, proiectul devine un punct de interes în oraș și oferă oamenilor o experiență completă strâns legată de Fabrica Bucuria.