
Comentariul autorului:
Biroul nostru are o abordare integrată, luând în considerare interacțiunea dintre arhitectură, urbanism și design interior.
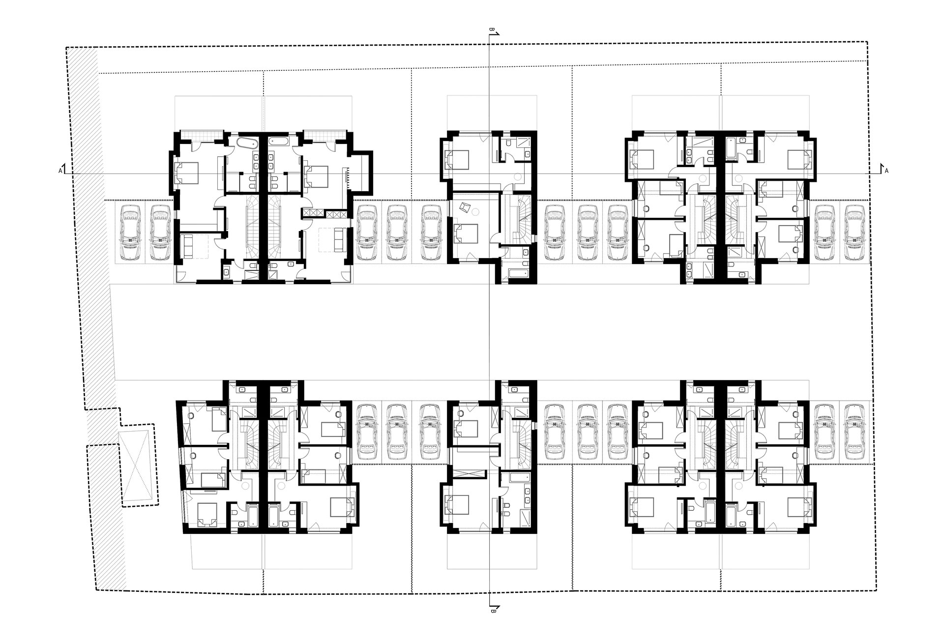
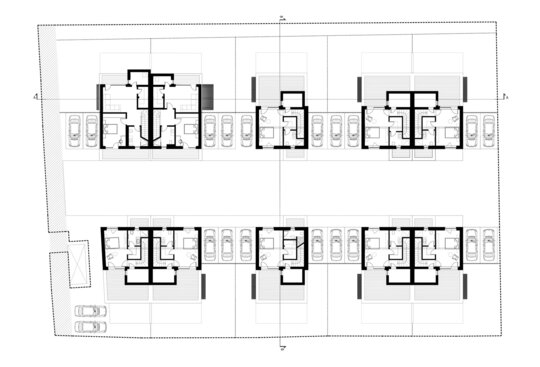
Collection 10 este unul dintre proiectele la care au fost parcurse toate cele 3 etape majore ale proiectării. Inițial beneficiarul își dorea sa construiască un bloc însă am reușit să îl convingem de importanta relației cu vecinătățile.
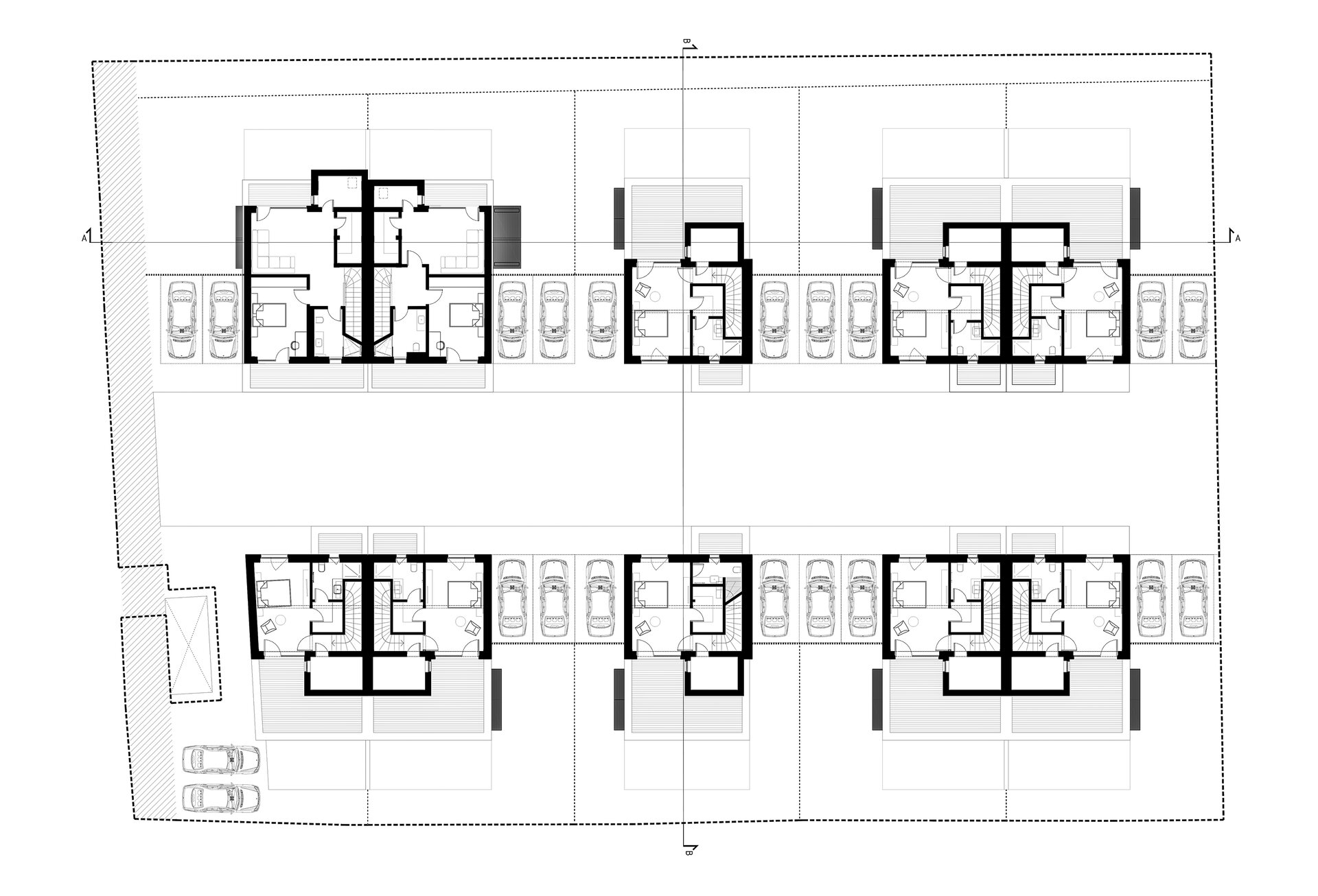
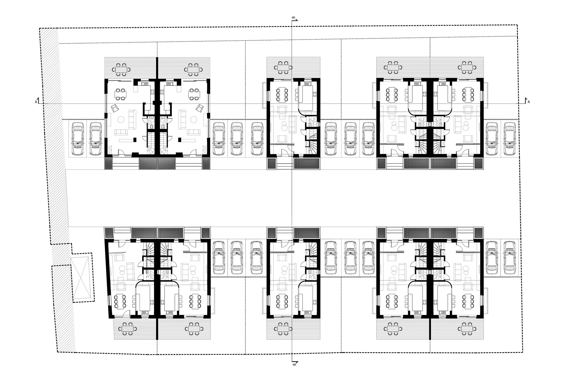
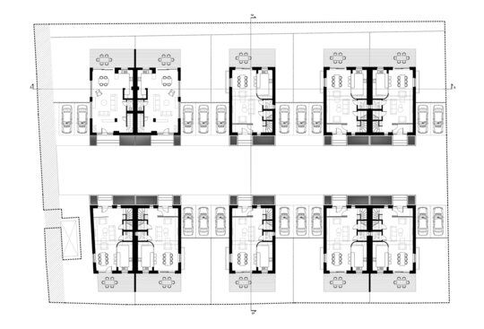
Așa au apărut cele 6 case a căror amprentă la sol nu depășește 85 mp lăsând astfel loc pentru grădină. Suprafața caselor se desfășoară pe verticală având parterul ocupat de bucătărie, loc de luat masa și living urmat de etajul 1 și 2 care reprezintă zona de noapte (dormitoare si băi).
Pentru a evita masivitatea întregului ansamblu am încercat să tratăm diferit cele 3 niveluri ale clădirii. Astfel avem 3 straturi pentru fiecare etaj. Ultimul etaj a fost gândit ca o casă tip barnhouse.