
Comentariul autorului:
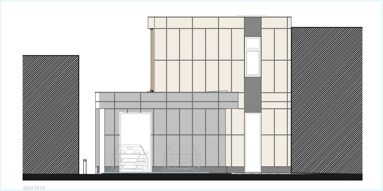
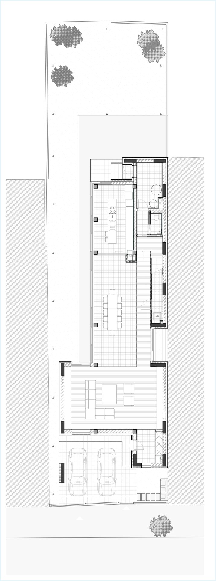
Proiectul răspunde unui context urban provocator: un teren îngust și lung, mărginit lateral de calcane, care impune o abordare arhitecturală de tip „vagon”. Construcția se adaptează proporțiilor sitului, transformând constrângerile într-o oportunitate de design funcțional și fluid.
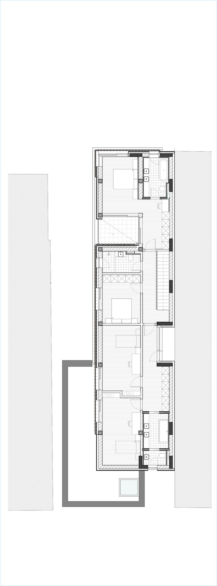
Casa este gândită pentru o familie de patru persoane, cu spațiile organizate pe două niveluri: la parter, zonele de zi – living, bucătărie și dining – comunică deschis, favorizând convivialitatea și lumina naturală; la etaj, spațiile private – dormitoarele și băile – oferă intimitate și confort. Circulația verticală este clar definită, iar spațiile interioare se desfășoară linear, respectând proporțiile și ritmul terenului.
Fațada și compoziția volumetrică exprimă clar funcțiunea și adaptarea la sit, păstrând un echilibru între intimitatea familiei și dialogul cu orașul. Materialele și detaliile sunt alese pentru a conferi căldură și durabilitate, în timp ce soluțiile de design maximizează lumina naturală și perspectivele către exterior.
Această locuință exemplifică modul în care arhitectura poate transforma limitele fizice ale sitului într-o experiență de locuire armonioasă, funcțională și adaptată nevoilor unei familii moderne.