
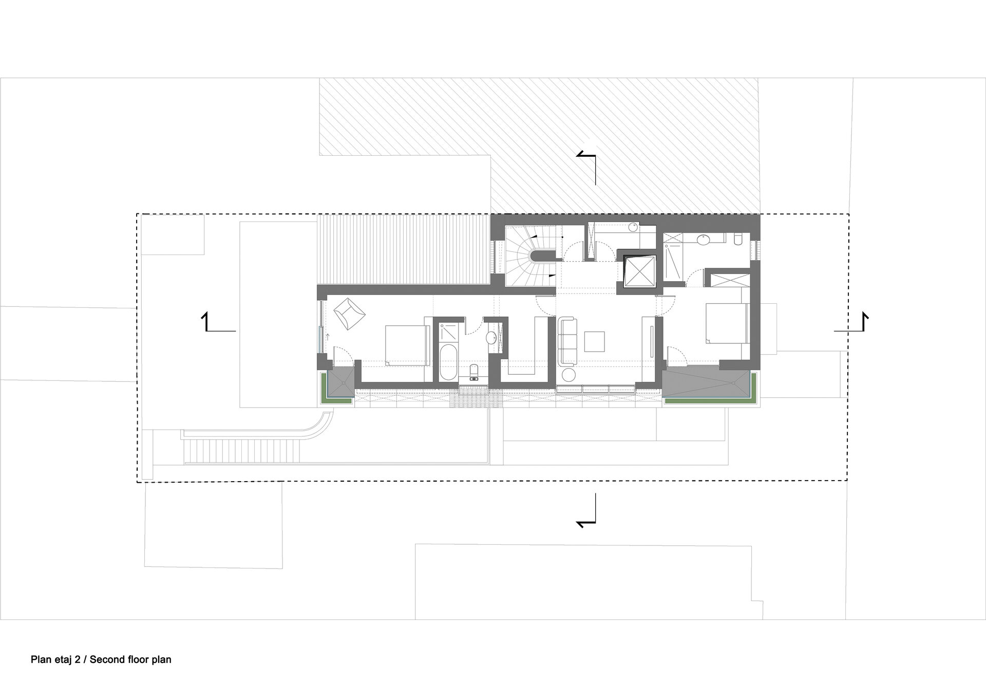
Comentariul autorului:
Zona este caracterizată prin vile în stil modernist interbelic și în stilul neoromânesc, cu șarpantă și copertine de lemn cu țiglă și diverse bovindouri pe fațada principală.
Practic, volumetria propusă continuă, într-un limbaj contemporan, cele două direcții complementare.
Copertina de pe fațada principală are atât rol de umbrire – și chiar se poate observa în poze efectul acesteia – dar și rol de element iconic, care este preluat atât în tăietura acoperișului, cât și în cea a gardului.
Pe fațada din spate, unde rolul de umbrire nu mai este important, aceasta are rol de jardinieră.
Linia teșită este un soi de semnătură a casei – apare în secțiunea clădirii, la copertina de la stradă, cea de pe fațada din spate și la tăietura gardului.