
Comentariul autorului:
Într-o lume în care arhitectura este chemată să răspundă provocărilor actuale și să fie privită ALTFEL, proiectul „Retreat la Vârf” reprezintă o abordare contemporană și profund responsabilă pentru satul românesc aflat în declin. În contextul satului Hinchiriș, județul Bihor, peisajul este marcat revenirea celor plecați la oraș sau peste hotare, fiecare construind după propriile preferințe, fără o logică arhitecturală coerentă. Acest demers arhitectural intenționează să ofere o nouă perspectivă de revitalizare prin turism sustenabil, conectat la specificul local și la patrimoniul construit păstrând în același timp acea dimensiune profundă a vieții de la țară. Din acest motiv, valoarea esențială a proiectului se regăsește în echilibrul fin dintre tradiție și contemporaneitate. Arhitectura propusă nu copiază limbajul vernacular, ci îl reinterpretează cu respect și discernământ, într-o cheie actuală, funcțională și poetică. Se recunosc volumele, proporțiile, materialele și atmosfera arhitecturii locale, dar acestea sunt integrate într-o compoziție unitară și contemporană, ce adaugă valoare fără a concura vizual cu natura de pe sit. Proiectul are un deziderat dublu. Soluția nu propune doar o serie de spații de cazare, ci un mod de a trăi altfel: mai încet, mai
conștient, mai conectat la natură și comunitate. În acest mod, spațiul creat devine un manifest pentru retragere, reflecție și reîntoarcere la esențial. Modelul economic propus susține implicarea activă a locuitorilor prin practici precum meșteșugăritul, găzduire, furnizare sau ghidare în zonă. Acest fapt le oferă localnicilor o sursă de venit și un rol central în renașterea zonei. Accentul se pune pe colaborarea respectuoasă între vizitator și gazdă, evitând orice posibilă invazie a spațiului rural.
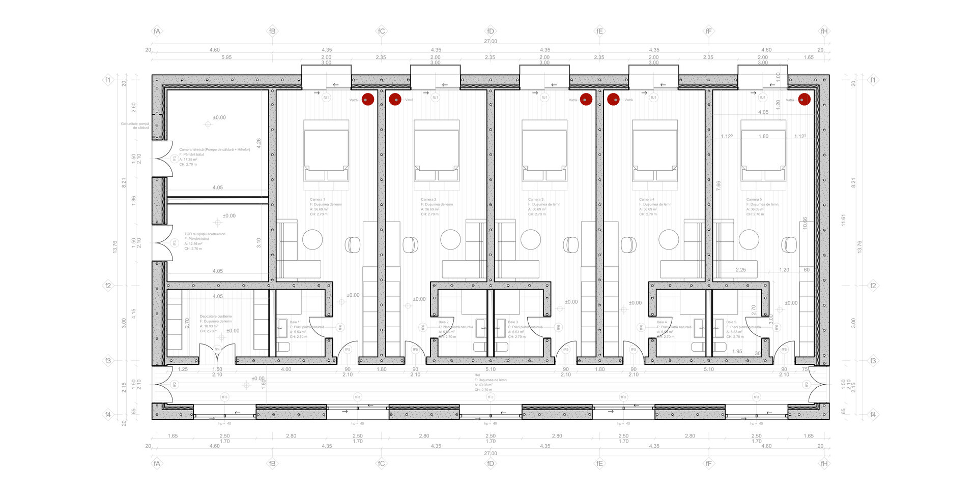
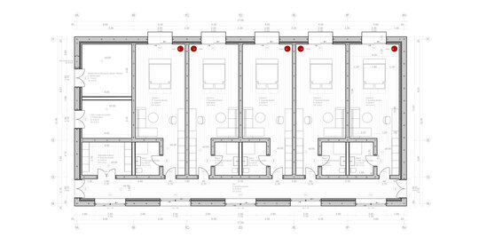
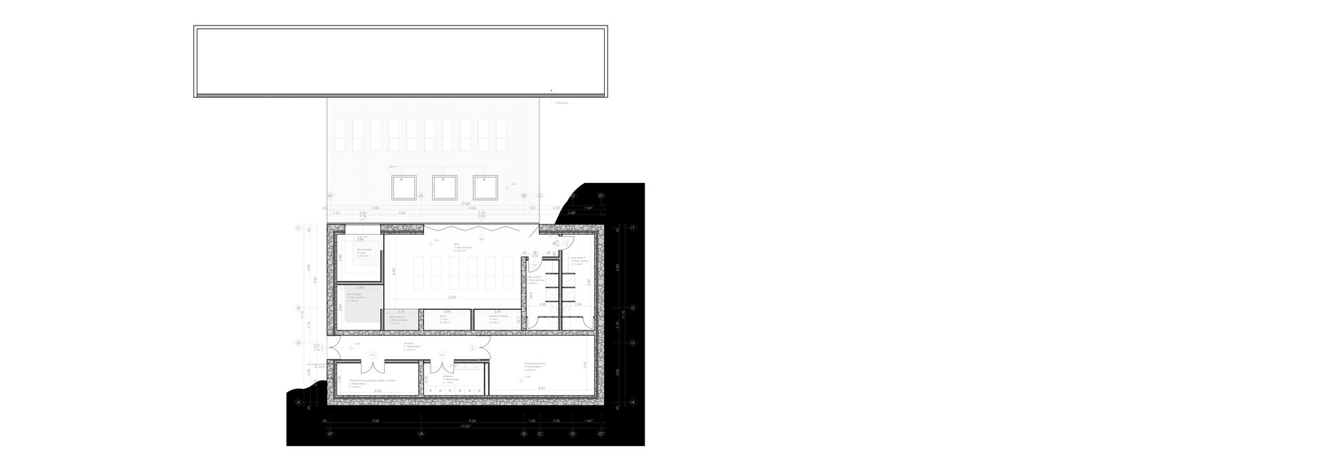
Strategia de inserare în sit este una subtilă. Volumele mai mari sunt ascunse sub creasta dealului, pentru a nu perturba imaginea satului. Cele vizibile sunt fragmentate și așezate în pantă, respectând tipologia regăsită în gospodăriilor locale. Atmosfera este una de liniște, intimitate și comuniune. Cu alte cuvinte, un retreat pentru omul modern în mijlocul naturii nealterate. Prin acest demers, arhitectura își asumă un rol activ în restaurarea identității rurale, nu doar ca un mijloc de expresie formală, ci ca instrument de regenerare socială, economică și culturală. Proiectul devine un exemplu de bună practică, demonstrând că intervențiile în zone vulnerabile pot fi coerente, discrete și relevante, atât timp cât sunt ghidate de înțelegerea profundă a contextului. În loc să impună un model exterior, „Retreat la Vârf” își extrage esența din loc și o transformă în resursă de viitor, propunând o arhitectură cu rost și responsabilitate. În final, „Retreat la Vârf” demonstrează că patrimoniul rural poate fi privit ALTFEL: nu ca o relicvă, ci ca o sursă vie pentru viitor, capabilă să genereze comunități, să inspire noi forme de turism și să construiască punți între tradiție și contemporaneitate.