
Comentariul autorului:
Contextul Istoric și Urbanistic
Situl este poziționat direct în centrul orașului Frankfurt, la intersecția celor două mari parcuri, Wallanlagen și Untermainkai și în prezent găzduiește un Teatru și o Operă. Clădirea originală, edificată în 1902 în stilul Jugendstil, a suferit de bombardamente, incendieri si demolări, astfel încât numai 10% a structurii originale au rămas până în prezent, constând de fațadele laterale ale sălii de spectatori ale operei. Acestea sunt acoperite și ascunse de diverse anexe, care suferă probleme structurale, de infiltrare, izolare termică și lipsă de spațiu. Ca urmare a costurilor ridicate unei renovări integrale, orașul a conceput masterplanul „Kulturmeile” (milă culturală), care prevede o demolare (cel puțin parțială) a operei și o relocare a teatrului.
Fundamentarea Conceptului de Intervenție
Dincolo de disfuncționalitățile tehnice și structurale, ansamblul actual este caracterizat de o ineficiență notabilă în utilizarea spațiului, o relație deficitară cu mediul urban înconjurător și o popularitate în declin a programului de teatru liric. Astfel, intervenția țintește o revitalizare a operei prin conectare la spațiu public, implementarea unui deschis publicului pe parcursul întregii zile și diversificarea ofertei culturale. O asemenea întărire a conexiunii între oraș și operă trebuie facilitată prin intermediul foaierului, care constituie elementul de legătură între viața urbană obișnuită și cea artistică a operei, având rolul de a media interacțiunea între cele două sfere în momentele în care cortina este trasă și a pregăti spectatorul înainte de a participa la actul artistic.
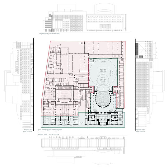
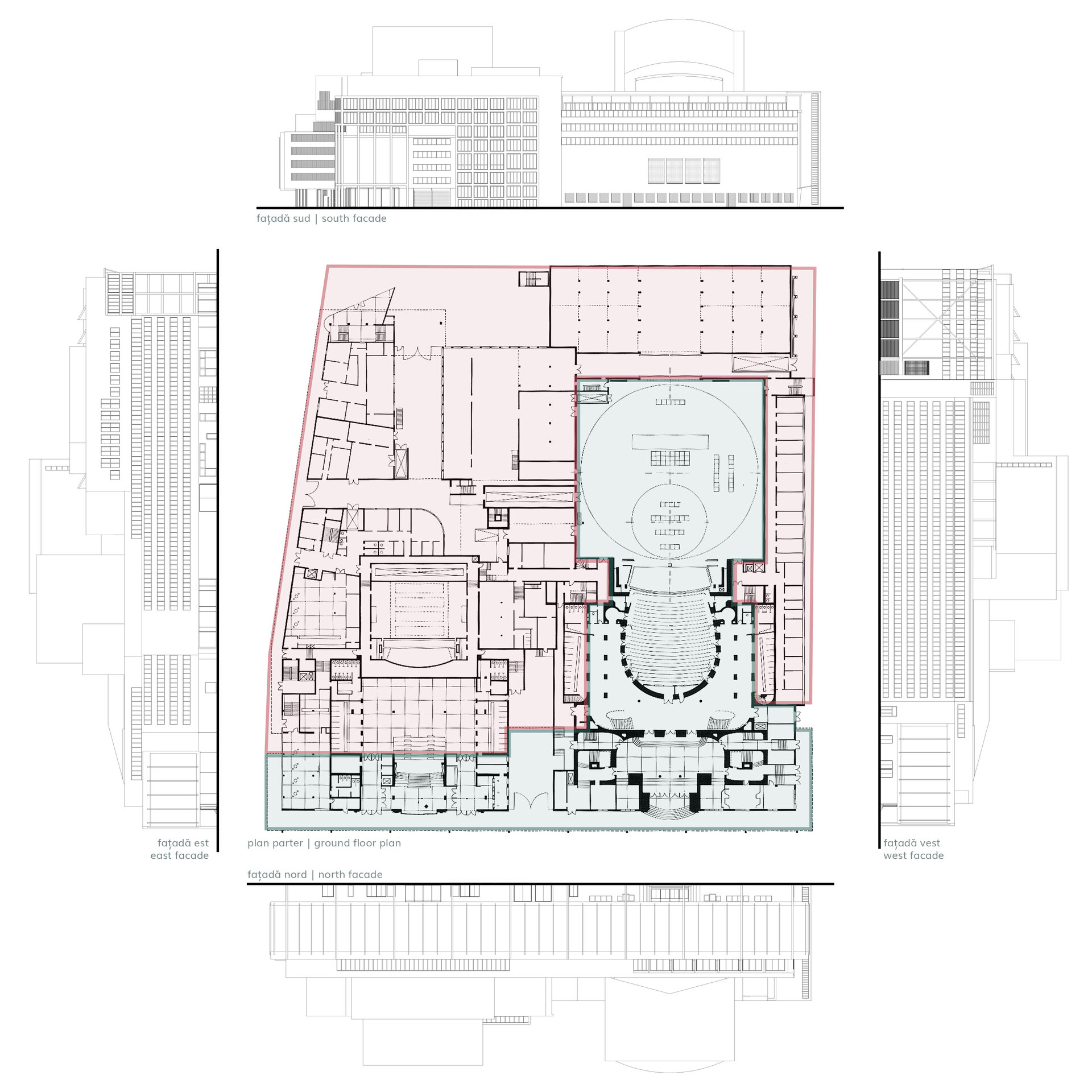
Soluția Arhitecturală Propusă
În propunerea, sală de spectatori și turnul scenei rămân intacte, împreună cu foaierul „norilor” raționalist, care conține o operă de artă spațială de la Zoltan Kemény și astfel, din 2015, stă sub protecție culturală. Intervenția constă în deschiderea foaierului existent către public și continuarea lui pe toate cele patru laturi ale parcelei. Interiorul său găzduiește programe auxiliare, complementare operei, precum o mediatecă, cafenele și zone expoziționale pe lângă funcțiunea sa principală de foaier. Din el se accesează diferite săli multifuncționale, fiecare cu o arhitectură aurală distinctă, astfel încât să servească interpretarea muzicii în multiple stiluri diverse, cu scopul de a atrage și aduce un public mai larg și divers. Interior incintei constă dintr-o gradină publică, care deține un soundscape natural, protejat de zgomotele orașului și care dispune de o scenă la aer liber și experimente muzicale pentru copii. Transparență și permeabilitate permit o trecere ușoară între cele două lumi. În același timp, acoperișul intervenției devine o promenadă publică, care permite coridoare de belvedere asupra diferitele părți ale orașului. Astfel opera din Frankfurt, în prezent activă doar în două seri pe săptămână și în rest o limită în spațiul orașului, devine un spațiu public și accesibil, care să atragă și să educe publicul larg.