
Comentariul autorului:
Hala Minda este una dintre clădirile emblematice pentru comunitatea locală și pentru istoria industrială îndelungată a Reșiței. Proiectul își propune să creeze pe lângă un centru de colectare DEEE, un spațiu de învățare și exprimare prin intermediul artei, o instituție de tip educațional ca universitate contemporană de design industrial și know-how manufacturier. Mi-am propus să realizez astfel un "muzeu viu" de tip workshop și centru de învățare pentru vizitatori și cursanți cu posibilitatea obținerii unei calificări în cadrul unei șederi prelungite.
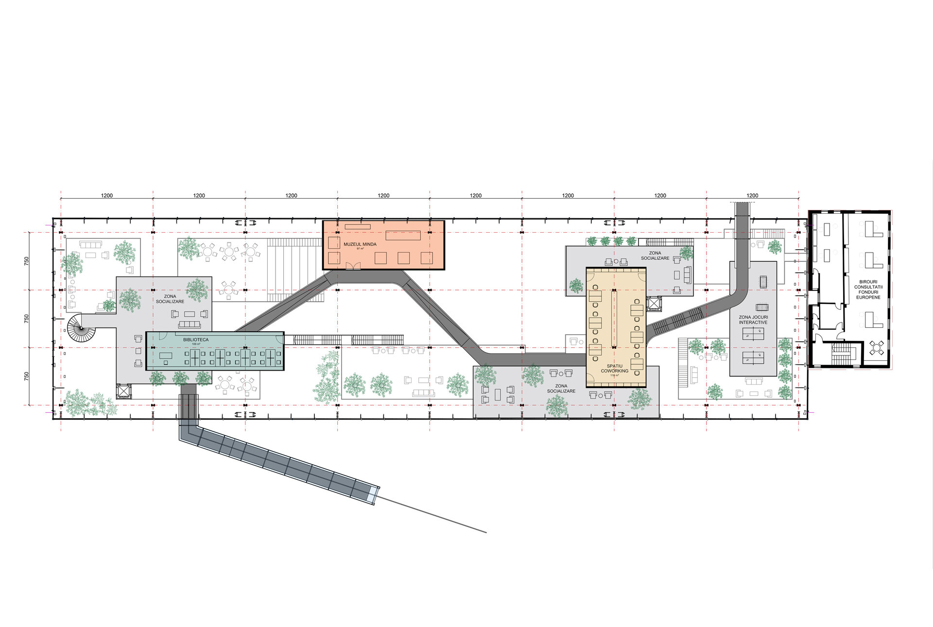
Având în vedere că hala Minda datează din anii '30, am considerat necesară o nouă structură metalică tip reticular în formă de grid regulat, pentru că are rolul de a susține atât spațiile noi propuse cât și structura existentă a halei, a cărei stabilitate va fi determinată în urma unei expertize tehnice amănunțite. Închiderile spațiilor la interior sunt realizate din CLT, gridul permițând un plan liber. Cutiile de CLT sunt dispuse astfel încât să creeze diverse spații comune pentru socializare și învățare, pline de vegetație. Am propus o intrare spectaculoasă în hală pe o pasarelă care conduce publicul la primul nivel al noii structuri și care traversează întreaga hală, oferind o promenadă arhitecturală demnă de spațiile din interior. Traseul se prelungește prin pădure, transformându-se într-o promenadă naturală ce conduce spre un locul de joacă amplasat in partea nordica.
Spațiile centrului de colectare DEEE sunt situate la parter, în partea de sud-est a halei, în apropierea zonei administrative și au fost proiectate astfel încât să existe o tranziție clară de la zona de colectare a deșeurilor, la sortare și depozitare, iar apoi la atelierul de verificare a gradului de uzură, pentru ca ulterior acestea să poată fi valorificate fie în atelierele de creație artistică, fie în spațiul multifuncțional situat în mijlocul halei. Circulația pieselor DEEE se face cu ajutorul unor șine care traversează spațiul, facilitând funcționarea centrului. La etaje se află diverse spații educaționale/de formare, spații de coworking, o cafenea și un muzeu al Halei Minda. Mai sunt programate și locuințe temporare, de tip studio, pentru instructori și/sau artiști invitați. Cafeneaua comunică cu spațiul multifuncțional prin intermediul unor gradene. Podul rulant susține lucrări de artă create în interiorul halei.
Consider că prin această soluție arhitecturală flexibilă și programatică am atins principalele puncte din tema universală a reabilitării și valorificării patrimoniului industrial. Temă care este de actualitate prin exemplele realizate în ultimele decenii din UK și Germania (Tate Modern și Essen Zeche Zollverein) și ne aduce în vedere un potențial mare de re-coagulare a unei comunități în jurul artei, culturii și spiritului manufacturier (atât prin mijloace vechi pre-industrie cât și mai noi digitale sau de prototipizare), dând astfel un viitor tinerilor din zonă și punând în scenă cunoașterea vechilor generații, într-un context bogat istoric și geografic.