
Comentariul autorului:
Într-un context urban dens, pe amplasamentul unei case parohiale existente în Oradea, am căutat să creăm mai mult decât un simplu adăpost. Ne-am propus să definim un spațiu universal, capabil să abordeze nu doar nevoi fizice, ci și unele mai profunde legate de demnitate, lumină și sentimentul de apartenență.
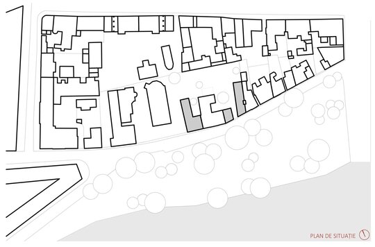
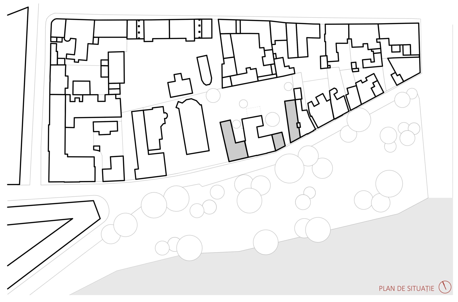
Cele trei volume noi se aliniază cu țesătura urbană existentă sprijinindu-se pe calcane, completând discret fațada străzii. Am imaginat aceste clădiri ca niște blocuri monolitice de beton expus, sculptate pentru a crea loggii și deschideri care permit luminii să pătrundă generos în interior, menținând în același timp o anumită reținere față de stradă. Spațiile private se deschid larg spre curtea interioară, unde vegetația formează un mediu de viață, traversat ocazional de alei.
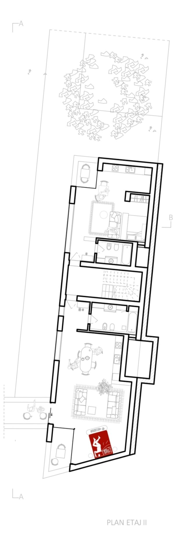
La parterul clădirii aflate în vecinătatea bisericii Olosig, am introdus un spațiu flexibil - o zonă deschisă concepută pentru a găzdui o gamă largă de utilizări, de la expoziții și ateliere la întâlniri informale și evenimente spontane. Punctul său forte constă în adaptabilitatea sa, permițându-i să răspundă nevoilor în continuă evoluție ale comunității și să sprijine diverse forme de exprimare, învățare și interacțiune. Situat la nivelul strazii, spațiul asigură accesibilitate și vizibilitate, acționând ca un prag discret între domeniul public și viața interioară mai privată a ansamblului. În acest fel, devine un catalizator pentru dialog și conexiune- un spațiu suspendat între rutină și spontan, între intimitate și experiență colectivă. Am integrat funcții publice, private și colective într-o compoziție coerentă, cu scopul de a încuraja interacțiunea, colaborarea și, de asemenea, retragerea liniștită. În partea din spate a amplasamentului se află o grădină versatila, concepută ca o extensie emoțională a locuirii- unde locuitorii temporari pot planta, îngriji și recolta, lăsându-si în urmă amprenta nu doar prin prezență fizică, ci și prin gesturi zilnice mici și semnificative.