
Comentariul autorului:
Proiectul abordează o problemă din Județul Tulcea, respectiv turismul.
O problemă semnalată de autoritățile din zonă a fost faptul că, de multe ori, turiștii stau doar o zi sau două și nu au timp să se bucure de tot ce îți poate oferi această zonă unică în Europa.
Pe plan social, abordarea proiectului este una diferită față de o pensiune obișnuită, pornind de la conceptul de simbioză:
Ce-ar fi dacă musafirii pensiunii ar putea învăța ceva de la comunitățile din Tulcea și viceversa? Acest concept nu este unul neapărat străin în unele zone turistice din Europa, cum ar fi Madeira, care atrage nomazi digitali prin specificitatea zonei și spațiile de lucru dedicate acestora, cât și prin evenimente care implică comunitatea.
Complexul este proiectat având în vedere nevoile unui nomad digital.
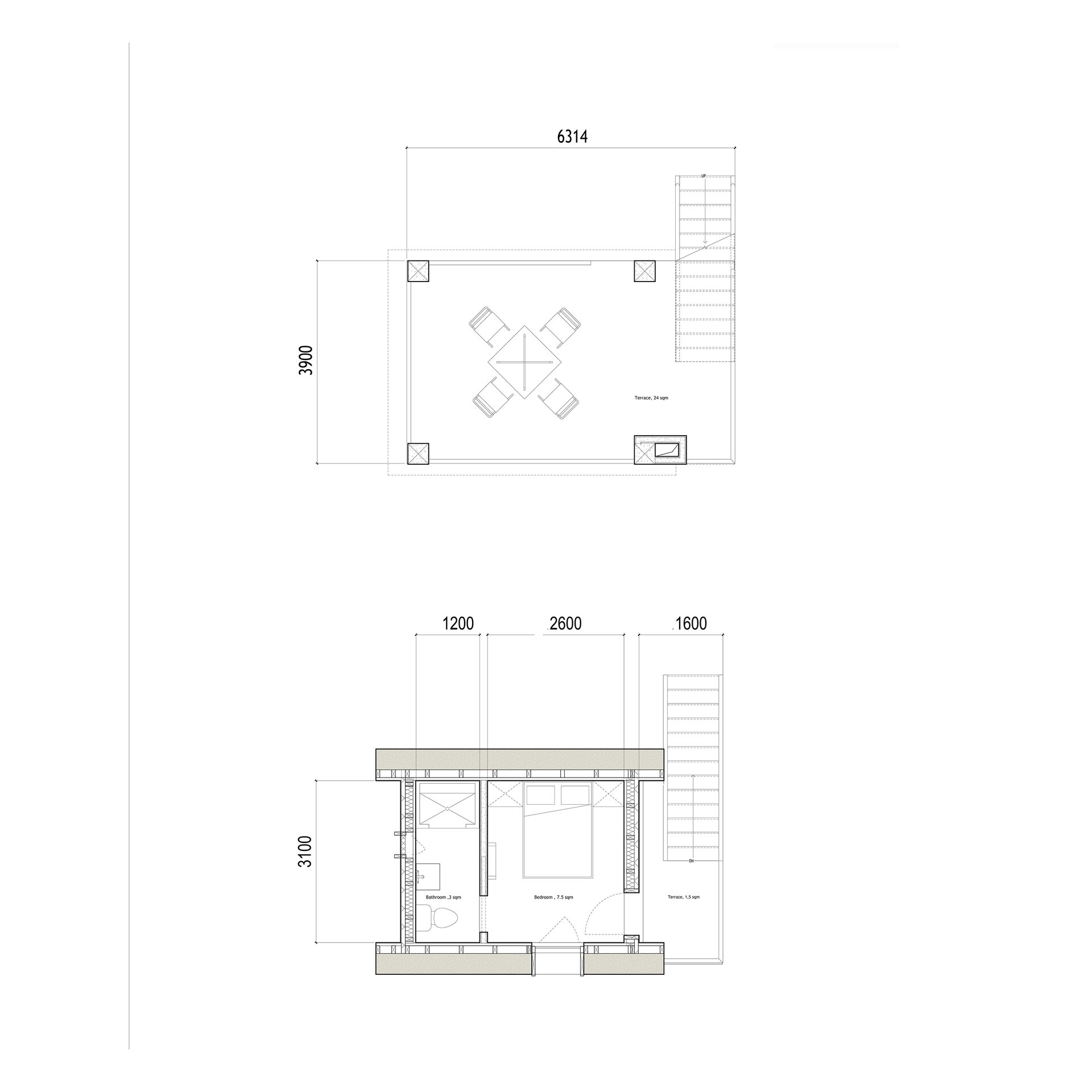
Acesta are în componența lui 31 de căbănuțe, care asigură nevoia de retragere. Acestea, fiind amplasate într-un câmp de stuf, prind o poziție foarte intimă, ascunzându-se printre stuful des de 2 metri înălțime. Cabana înălțată și zona în sine oferă o priveliște pașnică asupra naturii și a Cetății Halmyris și, totodată, un spațiu multifuncțional: patul se poate rabata în perete și o masă iese din podea pentru a crea un punct de lucru. În același timp, podul rezultat din compartimentarea băii este folosit ca spațiu de depozitat bagaje.
Pe de altă parte, clădirile care te întâmpină în complex au ca scop socializarea, networking-ul și un punct de lucru colectiv.
Pe lângă restaurant și lobby, există un Co-work Cafe, unde nomazii digitali pot să se sfătuiască, să socializeze și să muncească. Totodată, aici este zona unde se desfășoară activitățile cu comunitatea.
Compoziția aleii este inspirată din povestea acestui loc:
râurile (aleea principală), pe lângă care s-au așezat lipovenii (căbănuțele în stil lipovenesc) și râul care se curbează din ce în ce mai mult (zonele sociale de-a lungul aleii). Aceasta nu are doar un rol de a aminti istoria locului, ci și de a delimita intimitatea: clădirile din față – zona socială, spațiile sociale – zona mai retrasă, căbănuțele – zona personală.
În plus, proiectul folosește cat mai multe locale:stuful, folosit pentru fațade și acoperișuri, este un material abundent în această zonă și chiar îi conferă identitatea vizuală distinctă;lemnul, un material ecologic, este folosit și în fundație, structura în sine neavând beton și sprijinindu-se pe piloți de lemn, similar cu un ponton – optim pentru terenul foarte nămolos specific locației iar pavajele sunt procurate de la cariera de piatră Tulcea – Bididia, scăzând costurile de transport și promovând economia locală.
Abordarea utilizării este tot una ecologică: cât mai multe resurse să fie produse local și reciclate. Spre exemplu, energia poate fi procurată de la producătorii locali din zonă (mori eoliene), mâncarea specifică la fel, iar apa poate fi reciclată și folosită pentru irigare în zonă, deoarece locația se confruntă des cu secetă. Astfel, complexul produce venit pentru zonă sub forma unor bunuri destul de căutate și este implicat direct în economia locală.