
Comentariul autorului:
Propunerea noastră pentru o nouă piață agroalimentară de pe strada Berzei, răspuns asupra prezenței actualei Piețe Matache în vecinătate, își propune să ofere un răspuns arhitectural și urbanistic complex unei zone cu identitate puternică, dar aflată în continuă transformare. În masterplan volumul pieței mediază ipoteza unui nou centru urban, conectat direct cu propunerea unei piețe civice a Gării de Nord, spațiul rezultat fiind gândit ca o infrastructură urbană polivalentă, capabilă să integreze funcțiuni comerciale, sociale și de mobilitate, cu un impact major asupra calității vieții locuitorilor din împrejurimi și a vizitatorilor.
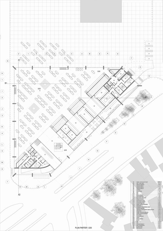
La parter, principala funcțiune este cea de piață agroalimentară, organizată într-un spațiu amplu, deschis, care poate acomoda o mare varietate de tarabe și standuri destinate comercianților de produse alimentare. Dispunerea acestora este flexibilă, oferind atât o claritate a traseelor de circulație, cât și posibilitatea de adaptare la diferite tipuri de evenimente temporare – târguri sezoniere, expoziții sau activități comunitare. Prin generozitatea suprafeței și prin caracterul său deschis, parterul devine un adevărat spațiu public acoperit, menit să continue tradiția piețelor bucureștene într-o formă contemporană. Parterul adăpostește, de asemenea, și o ”bară” plină, spațiu dedicat comercializării produselor perisabile și funcțiunilor conexe. Din spațiul principal, bara este percepută ca o tribună menită să încurajeze interacțiunea socială, treptele acesteia conducând spre un food-court.
Un element distinctiv al proiectului este propunerea a două niveluri suspendate, rotite la un unghi de 45 de grade față de gesturile prezente la parter. Acest plan intermediar este susținut de o structură metalică în zăbrele care se așază pe pilonii de beton perimetrali, evocând estetica industrială și robustețea specifică unor astfel de spații comerciale. Aici sunt propuse prăvălii urbane – mici unități comerciale ce reinterpretează imaginea străzilor tradiționale cu parter activ. Prin această configurație, spațiul capătă dinamism și diversitate, oferind vizitatorilor experiența unei plimbări printr-un țesut urban condensat, în care se regăsesc funcțiuni complementare: cafenele, librării, frizerii, magazine specializate, spații de artizanat sau ateliere dedicate micilor producători. Orientarea diferită față de organizarea de la sol creează perspective inedite și o tensiune vizuală care sporește atractivitatea spațiului și marchează diferitele caractere ale spațiilor.
Subsolul proiectului depășește rolul strict funcțional al spațiilor tehnice și de depozitare. Aici se integrează o nouă autogară, gândită ca un răspuns direct la prezența autogării existente pe sit. Prin această integrare, clădirea nu devine doar un loc al comerțului, ci și un nod de mobilitate urbană și regională, capabil să deservească atât comunitatea locală, cât și fluxurile de călători care tranzitează Bucureștiul. Astfel, subsolul este conectat funcțional cu parterul, generând o relație fluidă între infrastructura de transport și activitățile comerciale.
Principiile de sustenabilitate au fost integrate în toate etapele concepției. Pe fațade sunt prevăzute panouri paraso¬lare, menite să optimizeze aportul de lumină naturală și să reducă necesarul de climatizare. Acoperișul este valorificat prin amplasarea unor panouri fotovoltaice, care contribuie la producerea unei părți semnificative din energia necesară funcționării ansamblului. În plus, sistemele de recuperare și reutilizare a apei pluviale au fost incluse în strategie, susținând atât funcțiunile tehnice ale clădirii, cât și eventuale zone verzi sau grădini urbane.
Dincolo de dimensiunea funcțională și tehnologică, proiectul urmărește să creeze un pol comunitar. Piața agroalimentară nu este gândită doar ca un spațiu de tranzacție, ci ca o platformă de întâlnire și schimb cultural. Dialogul dintre parterul deschis și etajul cu prăvălii, completat de fluxul de oameni generat de autogară, transformă clădirea într-un micro-oraș, în care comerțul, socializarea și mobilitatea se întrepătrund.
Prin amplasarea sa strategică într-un punct dinamic al Bucureștiului, proiectul creează o relație de continuitate cu tradiția comercială a zonei, dar propune în același timp un limbaj arhitectural contemporan, adaptat nevoilor actuale. Îmbinând funcțiuni comerciale, spații publice, infrastructură de transport și soluții sustenabile, noua piață agroalimentară de pe strada Berzei devine un exemplu de regenerare urbană integrată, capabilă să răspundă atât exigențelor comunității locale, cât și provocărilor orașului contemporan.