
Comentariul autorului:
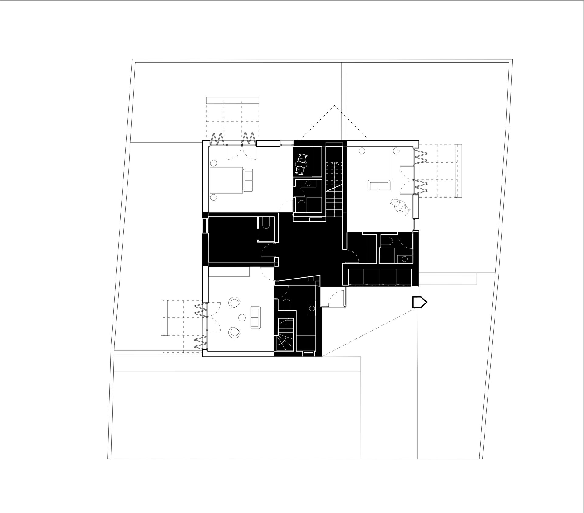
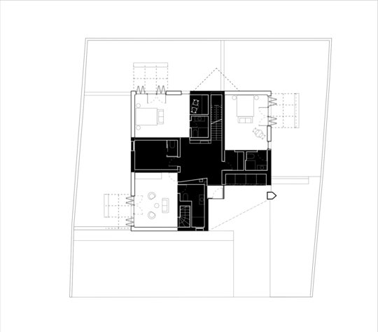
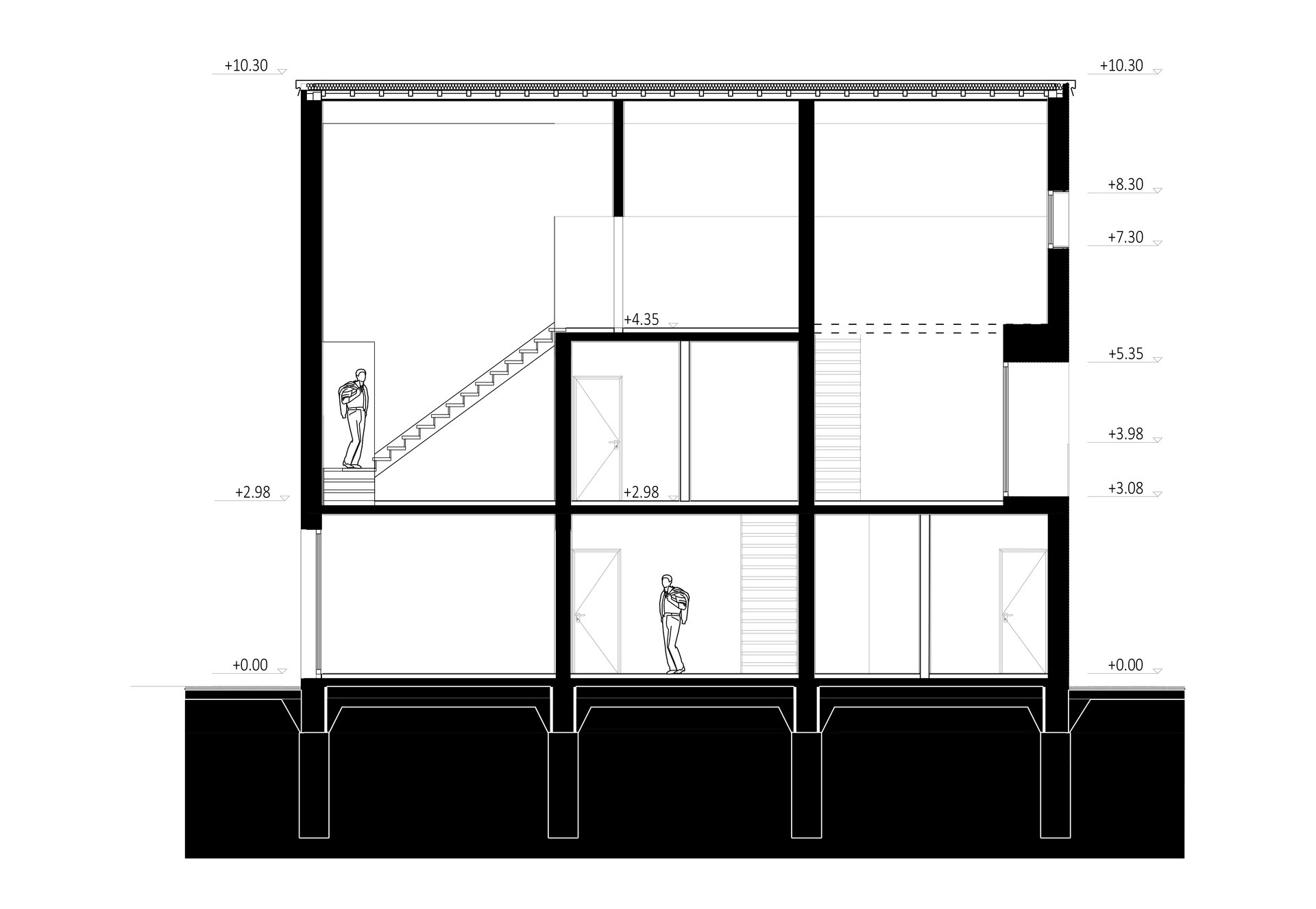
Proiectul prezentat este rezultatul unei perioade îndelungate care a prilejuit, atât în faza de proiectare, cât și pe parcursul șantierului, un proces de reflecție critică asupra relației dintre obiect și context. Amplasamentul, situat nu departe de nucleul balnear al stațiunii Călimănești, se află într-o zonă destinată activităților turistice, dar marcată de o dezvoltare recentă lipsită de coerență și de legături cu specificul local. În acest cadru fragmentat, dominat totuși de prezența naturală puternică a peisajului – a muntelui și a apei – proiectul caută un mod posibil de a construi nu doar o unitate de cazare, ci și un element arhitectural care să recupereze sensul continuității în relația cu locul. Contextul și specificul local Valea Oltului este o regiune unde contrastul dintre patrimoniul arhitectural al stațiunilor balneare și intervențiile recente devine evident. În timp ce nucleele istorice păstrează încă elemente definitorii – zidăria de piatră aparentă, proporțiile echilibrate ale registrelor fațadelor, raportul dintre volume și peisajul înconjurător – multe dintre construcțiile recente se înscriu într-un registru indiferent la identitatea locală. Situl proiectului este un exemplu elocvent al acestei erodări: o zonă cu un potențial natural remarcabil, dar fragmentată prin construcții lipsite de integrare în context. În acest sens, intenția proiectului a fost aceea de a lucra în logica integrării și continuității istorice, nu prin imitație formală, ci prin reinterpretarea atentă a unor caracteristici locale: scara domestică, relația cu peisajul și materialitatea. Arhitectura și funcțiunea Programul este unul de turism de scară mică: cinci unități de cazare de tip self-service, organizate într-un volum compact, adaptat la dimensiunile reduse ale lotului și la cerințele regulamentului urbanistic local. Constrâns de o amprentă redusă, proiectul a impus o atenție sporită lucrului în secțiune, rezultând mai multe scări interioare și spații pe dublă înălțime care conferă profunzime camerelor. Circulațiile interioare, spațiile de depozitare și funcțiunile secundare sunt integrate într-o logică a „zidurilor groase”, care delimitează și protejează spațiile principale. Această abordare subliniază ideea unei arhitecturi „tari”, cu expresie tectonică. Organizarea pe verticală a spațiilor a permis optimizarea funcțiunilor, în timp ce decupajele, teșiturile și retragerile volumului au fost utilizate pentru a crea deschideri privilegiate către râu, munte și pădure. Logiile și balcoanele nu reprezintă doar elemente funcționale, ci și instrumente de fragmentare a volumului, generând o percepție dinamică a clădirii. Soluția volumetrică răspunde astfel simultan la trei niveluri de cerințe: integrarea în peisaj, coerența funcțională și expresia arhitecturală. Materialitate și detaliu Un element esențial al proiectului este alegerea pietrei naturale pentru finisajele exterioare. Acest material, prezent în patrimoniul construit al stațiunii, devine aici atât semn de continuitate, cât și element de diferențiere. Piatra conferă volumului masivitate, durabilitate și o relație directă cu solul, evitând însă orice referință mimetică la arhitectura istorică. În contrast, lemnul apare în detalii – tâmplării, ancadramente, elemente de umbrire – aducând un registru cald și domestic unei arhitecturi altfel sobre. Prin această combinație, proiectul urmărește recuperarea unei expresii autentice a materialității locale, dar o transpune într-un limbaj contemporan, critic și simplificat – o expresie care nu urmărește să copieze trecutul, ci să îl traducă în forme adaptate nevoilor actuale. Intenții și mize arhitecturale Miza centrală a proiectului a fost aceea de a demonstra că turismul poate fi susținut printr-o arhitectură responsabilă, atentă la context și la specific, chiar și în condițiile unor constrângeri programatice și urbanistice stricte. Într-un peisaj marcat de intervenții indiferente, proiectul își propune să recupereze parte din atmosfera și caracterul local, arătând că negocierea dintre scara obiectului de arhitectură și peisajul înconjurător poate deveni un instrument esențial pentru adaptarea turismului la identitatea locală.