
Comentariul autorului:
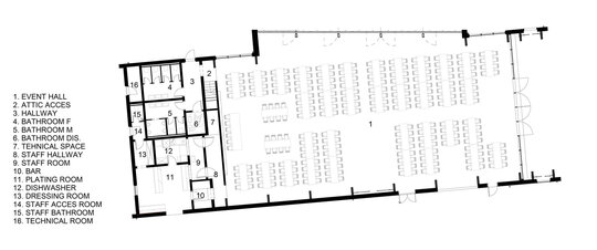
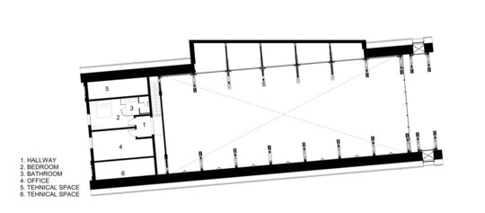
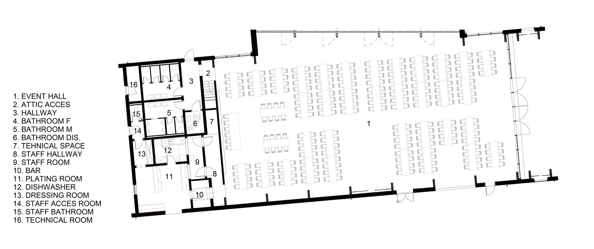
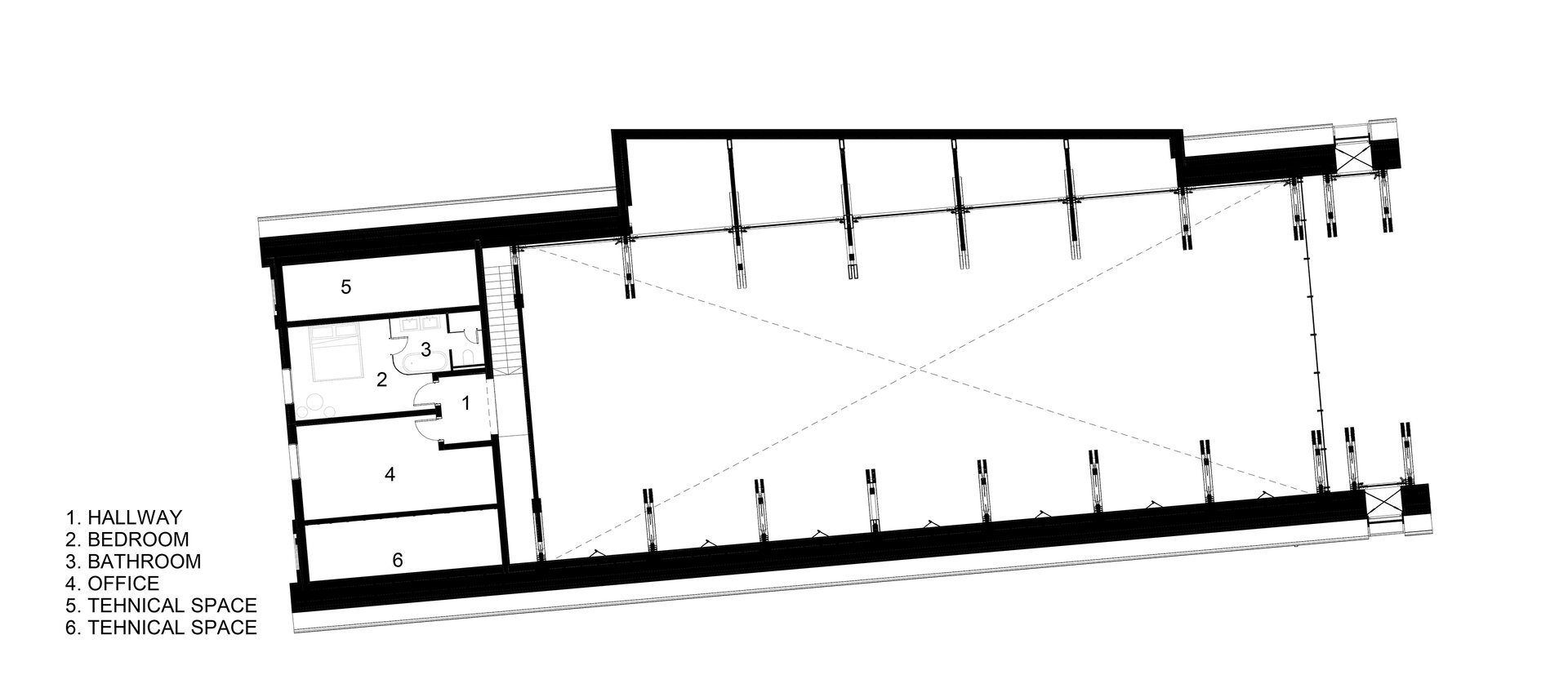
Sala de evenimente „The Barn” este situată în apropierea orașului Cluj-Napoca, în localitatea Gheorgheni, departe de agitația urbană, dar aproape de natură și conectată cu peisajul specific locului. Proiectul a fost realizat pentru a aduce complexului existent „Trovantland” plusvaloare și o dezvoltare firească a zonei HoReCa către organizarea de evenimente. „The Barn” a început ca un spațiu multifuncțional care să deservească atât organizării de evenimente private, cât și celor de tip corporate. Astfel, planimetria sălii a fost gândită într-un mod cât mai simplu și curat, prin care se delimitează trei zone principale: zona centrală – sala de evenimente, zona pentru public (grupuri sanitare, garderobă, bar) și zona personalului (spații necesare pentru servire).
Având o planimetrie simplă și curată, jocul arhitectural s-a realizat prin volumetrie și, implicit, prin structura care definește identitatea locului și a spațiului. La nivel volumetric, există un corp principal, conturat printr-un fronton generos de sticlă și lemn ce constituie accesul principal în locație, și un corp secundar alipită corpului principal, care primește o mică deviație de unghi pentru a surprinde peisajul locului și deschiderea vizuală către orașul Cluj-Napoca. Îmbinarea celor două volume se face la nivel structural prin creativitate și măiestrie inginerească, oferind spațiului interior fluiditate și coerență.
Spațiul interior al sălii este definit de lumina care pătrunde prin luminatorul de 20 m liniari situat în coama acoperișului, de peretele cortină din volumul secundar, dar și de peretele cortină din frontonul volumului principal. În acest mod, în orice moment al zilei, aportul de lumină este diferit, iar personalitatea spațiului se schimbă în funcție de intensitatea și direcția luminii naturale.
Spațiul exterior al construcției este și el parte integrantă a proiectului, fiind definit de o terasă generoasă „în consolă”, care conferă fluiditate și finețe prin raportarea la diferențele de nivel dintre zonele de acces și poziționarea volumului pe parcelă. În același timp, construcția beneficiază de două accese: unul principal, în relație directă cu terasa și accesul în clădire, și unul secundar, de tip peisager, integrat în spațiul verde, care conduce vizual traseul către intrarea principală.
Structura construcției este realizată exclusiv din lemn, pe sistem tip „timber frame”, fundația și placa pe sol fiind singurele elemente structurale din beton armat. Finisajele interioare și exterioare au fost realizate tot din lemn, combinat cu metal și tablă, pentru a obține confort și coerență între zona structurală și abordarea arhitecturală a sălii de evenimente.
Construcția respectă normele NZEB și, mai mult decât atât, beneficiază de un sistem de încălzire și răcire prin pardoseală, alimentat de o pompă de căldură. Ventilația spațiului este prevăzută cu recuperare de căldură, urmând ca, în viitor, apa caldă menajeră să fie asigurată prin montarea de panouri solare, iar aportul de energie electrică să fie generat de panouri fotovoltaice.
Atenția echipelor de proiect la detalii – atât în perioada de proiectare, cât și în perioada de execuție – precum și eficientizarea timpului de lucru de către beneficiari au făcut posibilă realizarea acestei construcții în mai puțin de 150 de zile, din momentul începerii săpăturii pentru fundații și până la organizarea primului eveniment.