
Comentariul autorului:
Prin proiectul meu de diplomă propun muzealizarea celui mai important eveniment din istoria recentă a României, un moment atât traumatic, cât și eliberator în evoluția contemporană a țării: Revoluția Anticomunistă din Decembrie 1989.
Amplasamentul ales este Piața Revoluției din București care, deși este un spațiu încărcat istoric și simbolic, rămâne astăzi un loc inert, confuz și subvalorificat atât în plan urban, cât și în cel social și simbolic; locul în care Nicolae Ceaușescu a rostit ultimul său discurs, întrerupt de huiduielile mulțimii și urmat de fuga sa cu elicopterul de pe acoperișul actualului Minister al Afacerilor Interne (fostul Comitet Central).
Piața este analizată ca un palimpsest urban, marcat de traume colective și resemnificări ideologice succesive. Deși aici a avut loc ruptura istorică din decembrie 1989, spațiul nu a fost asumat ca loc autentic de memorie; Memorialul Renașterii este un simbol controversat, iar piața rămâne fragmentată și deconectată de la viața orașului.
Propunerea mea include realizarea unui pasaj auto subteran, care pornește din fața Ateneului Român și continuă până la intersecția cu strada Ion Câmpineanu, având două ieșiri suplimentare pe străzile C.A. Rosetti și Demetru I. Dobrescu. Totodată, parcarea MAI, precum și cele publice aflate în fața acestuia și în fața fostului restaurant Cina sunt relocate în subteran.
Nu susțin că această intervenție rezolvă integral toate problemele pieței, însă propun o serie de soluții care abordează disfuncțiile majore: înlocuirea circulației pietonale fragmentate cu un plan unitar și coerent al pieței, eliminarea traficului auto de la suprafață și redarea spațiului public oamenilor, reactivarea zonei exacte în care s-au desfășurat evenimentele din 1989 și asumarea clară a acesteia ca loc de memorie, evitând ambiguitățile simbolice care domină în prezent.
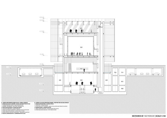
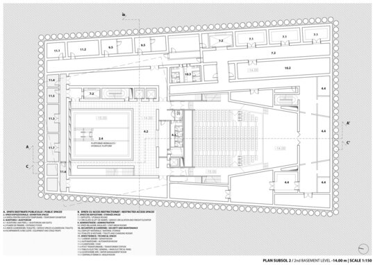
Mesajul muzeului se concentrează pe comemorarea momentelor tragice care au dus la căderea dictaturii, momente ce au stat la baza dobândirii libertății și a democrației. Traseul expozițional începe la ultimul nivel al clădirii, printr-o expoziție cu caracter didactic, apoi coboară pe niște rampe lungi perimetrale, în jurul unor pereți masivi din beton, către o mare expoziție imersivă amplasată în zona mediană a clădirii. La nivelul subsolului se află un auditoriu cu 400 de locuri, un spațiu flexibil destinat forumurilor publice sau politice. Foaierul adiacent este prevăzut cu o platformă hidraulică ce permite modificarea cotei planșeului, creând astfel posibilitatea organizării simultane a mai multor evenimente și adaptându-se la nevoi variate de utilizare.