
Comentariul autorului:
Acest proiect prevede transformarea unei foste stații de tratare și pompare a apei de lângă Lacul Lipoveni într-o cooperativă agricolă multifuncțională care acționează ca mediator între dinamica urbană și cea rurală în teritoriul periurban dintre municipiul Suceava și comuna Mitocu Dragomirnei. Concepută atât ca un peisaj productiv, cât și unul educațional, cooperativa răspunde nevoii crescânde de sisteme alimentare durabile, cunoștințe locale și autosuficiență regională. Arealul agricol gestionat de cooperativă capătă caracterul de parc agricol care integrează practici organice, sisteme agroforestiere și management ecologic al terenurilor, oferind în același timp spațiu pentru cercetare, recreere și implicare publică.
Conceptul arhitectural se bazează pe reutilizare și complementaritate spațială. Punctul de pornire al proiectului a fost stația dezafectată de tratare și pompare a apei construită în anii '60 cu scopul de a fi uzină de apă pentru platforma industrială a orașului, până în 1987 când a devenit stație de tratare pentru a îmbunătăți parametri apei. În anul 2011, stația s-a închis definitiv.
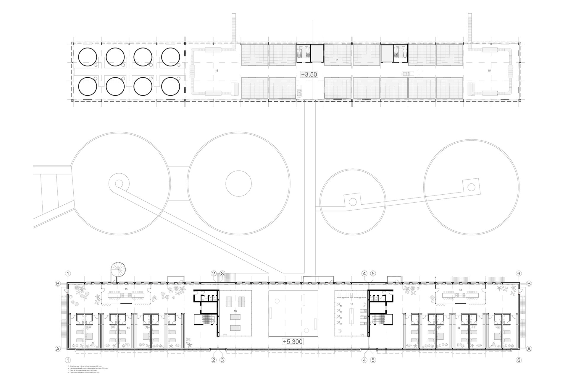
În urma analizării situației existente, am optat pentru păstrarea atât a volumului principal, cât și a celor patru decantoare de apă din exterior. Clădirea existentă va găzdui componenta educativă și de cercetare, definită printr-un centru dual de învățământ. Soluția își propune să lucreze cu existentul, păstrând cât mai mult din compartimentările funcțiunilor inițiale. Astfel, demisolul, care era inițial rezervorul cu apă al stației și era marcat de niște diafragme lungi de beton, devine un spațiu de cercetare pentru cultură hidroponică. Parterul, anterior constituind sala cuvelor, unde se producea filtrarea apei, găzduiește zona principală de intrare și spațiile administrative, precum și sălile de curs. Asupra nivelului următor se intervine pentru a crea spații prielnice locuirii temporare.
În ceea ce privește decantoarele, două dintre acestea, poziționate în partea tehnică a curții interioare, vor reveni la funcția inițială si vor contribui la captarea, filtrarea și reutilizarea apei în cadrul cooperativei. Celelalte două vor avea un caracter public, deschis comunității, unul dintre ele devenind un restaurant farm-to-table, iar celălalt un spațiu exterior multifuncțional pentru evenimente comunitare.
Toate aceste funcții oferite structurilor existente susțin prezența umană și formarea în domeniul agriculturii, ancorând cooperativa în cadrul comunității.
Pe lângă aceste aspecte, o nouă structură este dedicată producției agricole și logisticii, permițând flexibilitate și o separare clară între procesele centrate pe om și cele industriale. Astfel, primul nivel este reprezentat de zona utilajelor agricole, zona de distribuție, respectiv zona silozurilor (depozitare uscată), a căror înălțime ajunge și la nivelul superior. Acesta nivel superior găzduiește echipamentele necesare proceselor post-recoltare, inclusiv depozitarea în climat controlat. Nivelul acesta comunică printr-o pasarelă cu zona educațională a corpului existent, pentru ca studenții să poată observa, învăța și contribui la procesul tehnologic agricol.
Dincolo de producție, cooperativa agricolă devine o platformă pentru experimentare, învățare și reziliență comunitară, promovând conștientizarea ecologică și incluziunea socială. Reutilizarea adaptivă a infrastructurii existente ancorează intervenția în context, în timp ce noile intervenții articulează un dialog între peisaj și rolul cooperativei ca agent civic și ecologic.