
Comentariul autorului:
Amplasat în centrul comunei Micăsasa, județul Sibiu, proiectul se dezvoltă în imediata apropiere a ansamblului istoric Radák–Brukenthal, valorificând relația cu contextul construit și memoria locului.
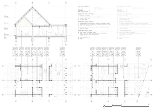
Proiectul de diplomă – Centru rezidențial socio-medical pentru persoane vârstnice propune o sinteză coerentă a mai multor tipologii constructive adaptate programului ales, reunind: structura liniară – coridorul - spina, structura radială – spațiile colective - piața, structura închisă – curtea interioară - grădina-cameră, structura pavilionară – gospodăria.
Structura închisă joacă un rol esențial în integrarea arhitecturii în contextul existent, dar și în crearea unui sentiment de intimitate, siguranță și apartenență. Clădirea este organizată în jurul unei curți care evocă vechea grădină a conacului, astăzi dispărută. Această grădină propusă încurajează mișcarea, întâlnirile și interacțiunea, oferind diversitate funcțională și vizuală. Fosta curte de primire a ansamblului istoric este reinterpretată ca un spațiu deschis comunității, în care sunt amplasate funcțiuni publice partajabile: magazin, coafor, centru turistic.
Pavilionul, poziționat între conac și șură, găzduiește un centru social de zi, accesibil atât rezidenților, cât și copiilor sau vârstnicilor din sat. Șura, reconfigurată ca spațiu multifuncțional, devine loc de întâlnire pentru evenimente locale. Secvența conac–pavilion–șură funcționează ca o zonă-tampon între curtea interioară „extrovertită”, destinată publicului, și curtea „introvertită” a căminului, protejând intimitatea și siguranța locatarilor vârstnici. Cabinetele medicale sunt amplasate strategic în aripa nordică, cu acces separat din exterior, ceea ce permite utilizarea lor și de către populația vârstnică din comunitate.
Coridorul, adesea perceput ca un simbol al instituționalizării, este revalorizat în proiect ca spațiu de coeziune și eficiență funcțională. În aripa de vest, coridorul se deschide în formă de „V”, generând un nucleu central care integrează zone colective și servicii. Ritmul circulației este animat de gruparea ușilor în nișe personalizabile, ce sporesc sentimentul de intimitate și identitate.
Unitățile de cazare sunt organizate în trei „gospodării”, fiecare cu spații comune și o mică bucătărie, distribuite de-a lungul coridorului. Această dispunere oferă o varietate de perspective și încurajează viața comunitară. Grupurile sunt diferențiate volumetric, ceea ce reduce impactul masiv al clădirii și permite perceperea acestora ca o serie de „case” unite printr-un traseu comun, interpretat din prispa specifică zonei.
Spre deosebire de abordările radiale, care centralizează toate funcțiunile colective, proiectul propune o dispersie strategică a acestora în nodurile coridorului, astfel încât să devină accesibile, diverse și bine conectate cu spațiile exterioare.
Arhitectura propusă oferă un cadru empatic, flexibil și profund uman pentru locuire și îngrijire, devenind un suport real pentru demnitatea și autonomia vârstnicilor. Ansamblul contribuie activ la revitalizarea vieții comunitare locale, întărind legăturile sociale și cultivând spiritul de apartenență. Totodată, memoria locului este reactivată prin restaurarea patrimoniului construit, care devine o resursă vie, integrată firesc în cotidianul contemporan și valorificată în slujba comunității.