
Comentariul autorului:
Concept
Abordarea temei locuințelor modulare a fost rezultatul mai multor conferințe internaționale și dezbateri pe rețelele mediatice la care am asistat pe parcursul ultimilor 5 ani. Era și este evidentă orientarea industriei din ce în ce mai mult către acest sector de ,,micro-locuințe” și mai apoi către locuințe de dimensiuni medii.
În viziunea unei maximizări a mobilității, proiectul propus se desfășoară în jurul conceptului „Pop-Up”. Ambalajul – un container specific de 12,20 m x 2,40 m x 3,15 m – poate fi demontat și incorporat alături de piesele conținute necesare ridicării casei. Astfel, amabalajul nu este aruncat, ci devine parte a construcției, fiind constiuit din micile piese care se asamblează in situ ca module intermediare (cu structură proprie) – ușor de manevrat la scară umană. Prin utilizarea aceastei game de piese, pot fi realizate partiuri de la cele mai compacte până la cele mai dispersate – versatile și adaptabile în funcție de caracteristicile amplasamentului.
Profesia de arhitect nu trebuie să fie o unealtă de autorizare facilă sau de blocare a acestor locuințe, ci industria și produsele sale trebuie să devină unelte prin care specialistul creează arhitectură de calitate, adaptabilă provocărilor și nevoilor în permanentă schimbare. Arhitectul poate controla viitoarea clădire de la un capăt la altul al procesului de fabricație. În acest proiect am căutat o soluție prin care ,,obiectul” să poată fi modelabil și modificabil astfel încât să răspundă cât mai multor exigențe (culturale, climatice, geografice, estetice, de integrare în țesutul existent) înainte de a ieși din fabrică, sub formă de piese.
Amplasament
Am urmărit să obținem o locuință modulară care poate fi ridicată pe o varietate de amplasamente, cu topografii specifice atât zonelor urbane, cât și celor rurale. Aceasta poate fi așezată pe un teren conectat la infrastructură sau poate fi echipată cu cele necesare pentru a funcționa pe un teren în afara rețelei.
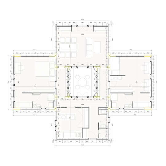
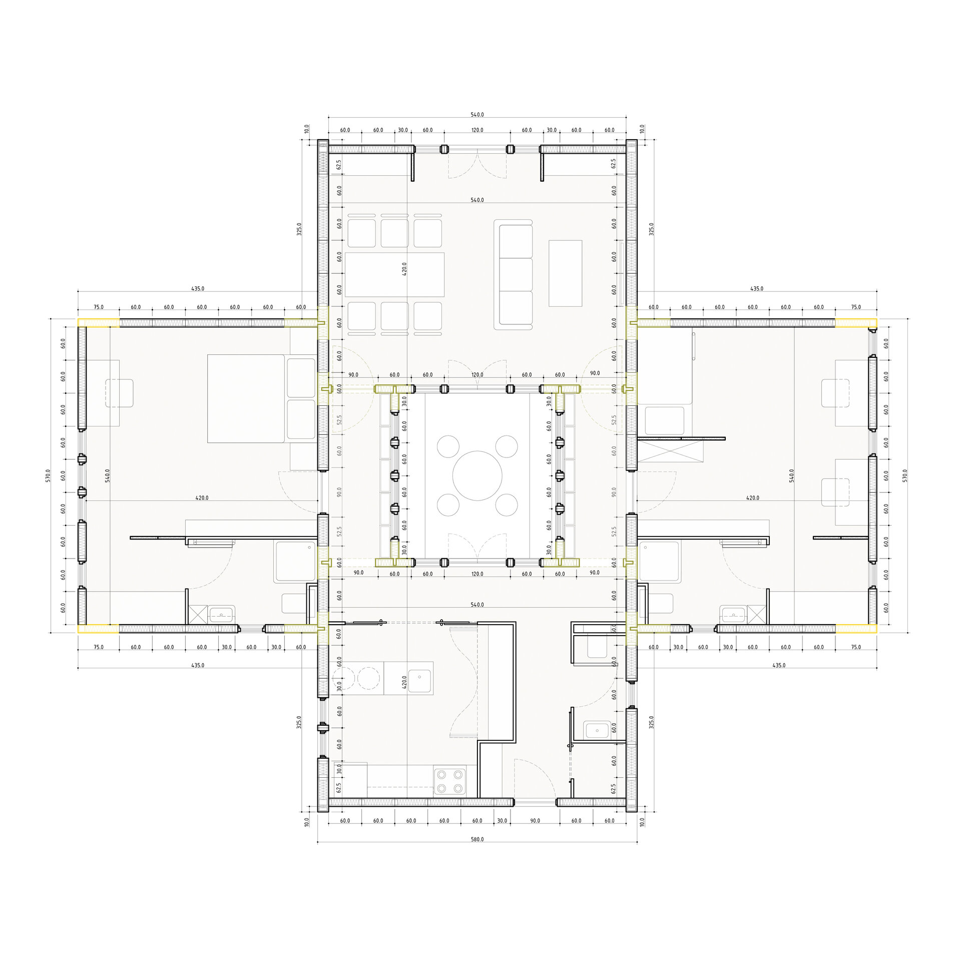
Piese și componente
Există 35 de tipuri de piese prefabricate ce se regăsesc atât în conținutul ambalajului (containerului), cât și în interiorul acestuia. Am conceput 27 de tipuri de piese alcătuind pereții (delimitând modulele principale și modulele secundare, piese de îmbinare ori conținând uși sau ferestre) și 8 tipuri de piese care intră în componența acoperișurilor și pardoselilor.
Module și asamblare
Preexistentă casei modulare este fundația (la recomandarea noastră – de tip „ground screw”: adaptabilă unei varietăți mari de terenuri).
Prima etapă constă în descărcarea containerului pe teren și în demontarea acestuia, astfel încât să se poată obține piesele necesare ridicării primului modul, care cuprinde spațiile de subzistență, amintind bucătăria, o mică baie, spațiile tehnice, curtea centrală și livingul (care poate fi folosit – în această etapă – drept dormitor).
Locul fiecărui panou prefabricat în structura containerului și în interiorul acestuia este stabilit cu mare exactitate în așa fel încât - odată începută desfacerea - panourile să fie așezate direct in situ, fără să fie necesară depozitarea lor temporară. Pereții și acoperișul containerului servesc ridicării modulului principal, următoarele panouri necesare finalizării acestuia cât și etapelor care îl succed fiind descărcate în ordinea dispunerii lor în container. Procesul este reversibil, cu respectarea diagramei de dispunere a panourilor în coaja și în interiorul containerului (diagramă asigurată de furnizor).
Odată ce primul modul este finalizat, locuința poate fi extinsă prin asamblarea modulelor secundare (dormitoarele), a căror ordine poate fi la latitudinea beneficiarului.
Zonele tehnice sunt grupate în jurul accesului și bucătăriei, reprezentând principalele conducte pentru distribuția / colectarea apei. Încălzirea se realizează prin circuite integrate prefabricatelor ce formează pardoselile.
Sustenabilitate
Apelând la un design de tip „plug and play”, dorim diminuarea risipei materialelor și a produsului însuși. Dacă spațiile prevăzute prin proiect sunt considerate a fi prea mari, ori dacă nu mai sunt necesare, anumite părți pot fi demontate și depozitate. Dacă locuința însăși nu mai este de folos, aceasta poate fi demontată și ambalată din nou în containerul inițial, existând posibilitatea refolosirii acesteia prin repunerea spre vânzare. Creșterea / descreșterea locuinței în funcție de capacitatea sa modulară sporește gradul de control asupra unor aspecte precum cantitatea de energie folosită.
Proiectul a reprezentat propunerea noastră în cadrul concursului internațional Modular Home Design Challenge Edition 1# (2021), de pe platforma Buildner Architecture Competitions, unde a obținut locul I.