
Comentariul autorului:
Pornind de la imaginea canonică a unei case și de la tradiționalele locuințe-vagon din Bucureștiul secolului XIX - XX, Culinary Nomad este conceput pentru a oferi o experiență de locuire mobilă și sustenabilă. Inspirat din planimetria locuinței-vagon și a vagoanelor de tren, conceptul propune o casă destinată pentru doi bucătari care călătoresc prin lume pentru a explora experiențe culinare diverse și a găzdui cine exclusiviste.
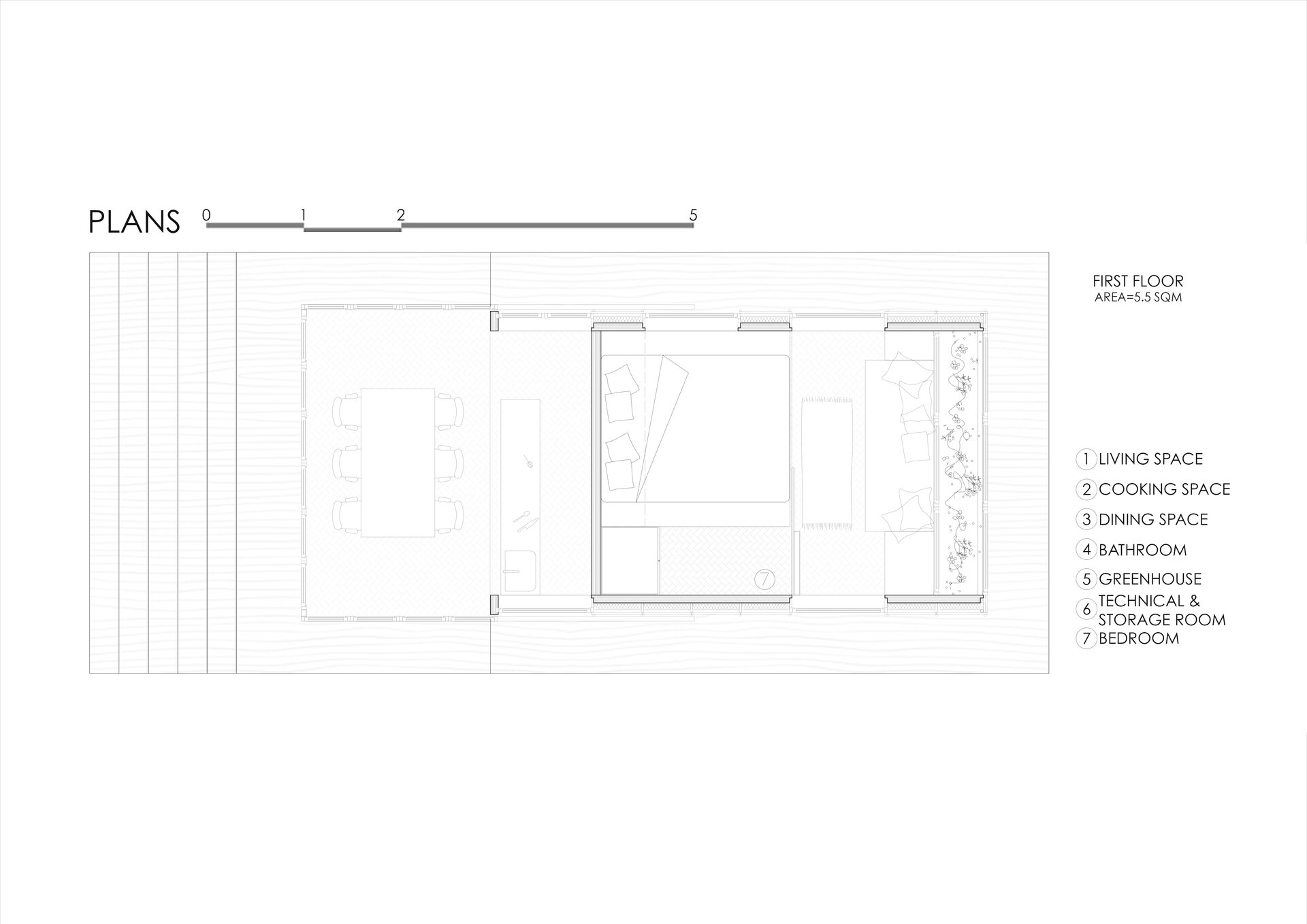
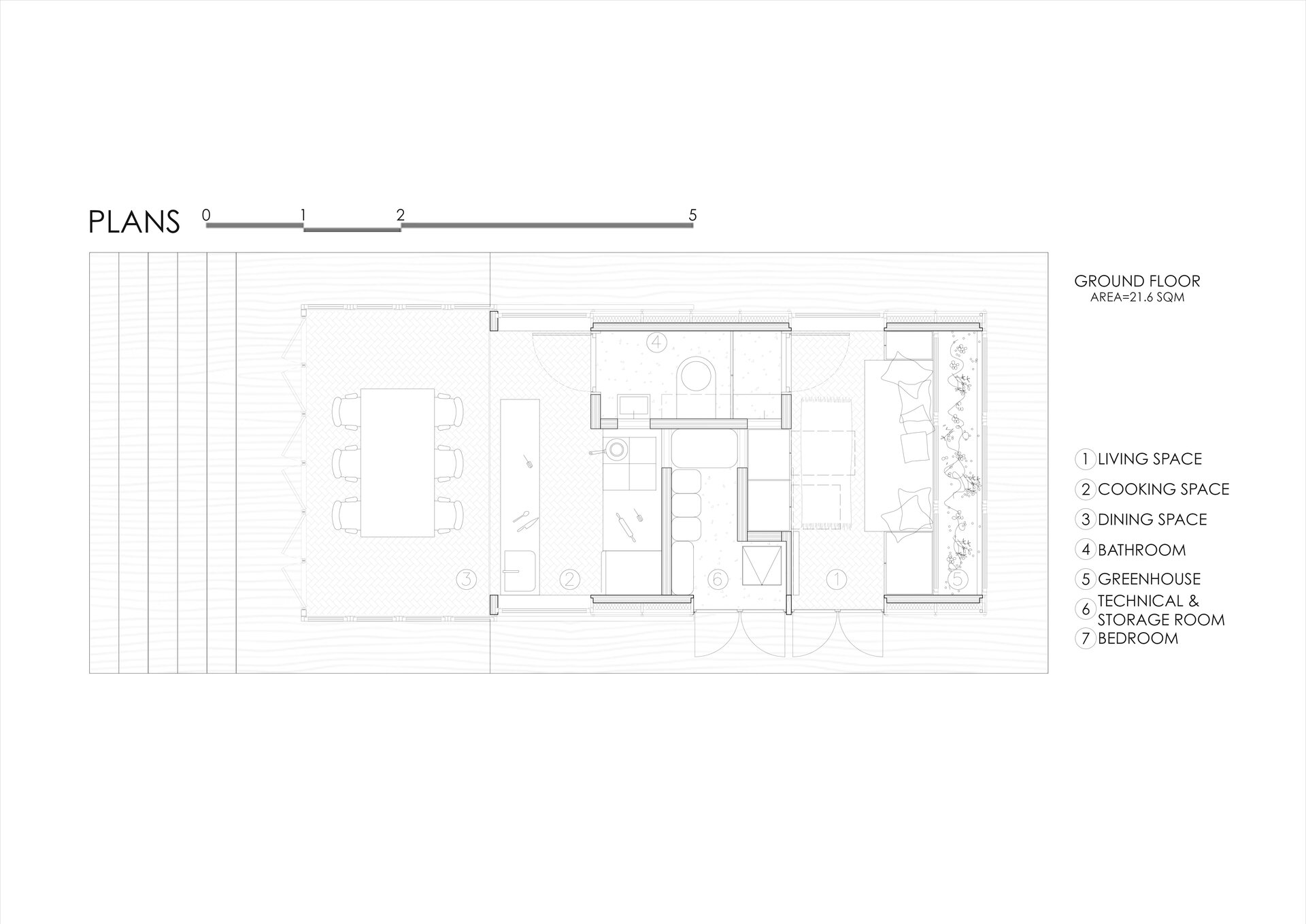
Designul are la bază un nucleu fix ce integrează funcțiunile esențiale pentru bucătari și oaspeții lor. Spațiul este împărțit în zone publice (dining) și private (locuire). O secțiune mobilă a structurii se extinde pentru a dezvălui zona de dining, protejând totodată fațada vitrată în timpul transportului. La capătul opus, o seră funcționează ca tampon între interior și exterior, accentuând legătura cu natura.
Fațada este definită de linii simple și clare, permițând structurii să se integreze armonios în orice context. Întregul design prioritizează mobilitatea, funcționalitatea și integrarea în peisaj, transformându-l într-un spațiu ideal pentru bucătarii mereu pe drum.
Planul compact, dar versatil, oferă atât confort, cât și eficiență, fiecare detaliu fiind atent gândit pentru optimizarea spațiului și funcționalității. Culinary Nomad devine astfel o soluție contemporană pentru cei ce caută aventura fără a renunța la calitatea vieții.