
Comentariul autorului:
Restaurare vilă interbelică, str. Joseph Lister, Cotroceni
În 1934, arhitecții Hirsch și Dori Galin Golingher proiectau pentru clienta lor Katarina Tschiltschke o vilă în Cotroceni pe strada Joseph Lister nr.12 . Proiectat pentru o clasă de mijloc prosperă, cartierul are la bază principiile orașului grădină.
Spre deosebire de imobilele luxoase din nordul orașului proiectate de Dori Galin Golingher, locuința de pe strada Lister a avut o scară și un buget de cu totul alt ordin. Golingher a acceptat modernismul ca pe un stil (uneori hibridizat cu Art-Deco) pe care l-a practicat cu grație și relaxare. Inclusiv în cazul despre care vorbim, aparența la stilul internațional este subliniată printr-o serie de elementele definitorii la nivelul volumetriei, precum cornișele și copertinele ce dau orizontalitatea casei, golurile pe colț, bovindourile, detaliile de feronerie - garduri, tâmplării, catargele-antene, și nu în ultimul rând, prin intersecțiile de volume prismatice.
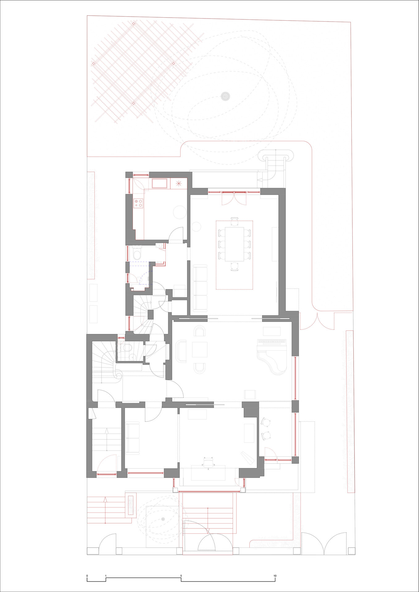
Relația casei cu spațiul exterior, este una tipică pentru cartier și perioadă. Aceasta se alipește la imobilul vecin, retrăgându-se de la stradă în spatele unui gard jos și transparent, cu o mica gradina de fațada organizată in jurul unui smochin.
Distribuția spațiilor interioare este, de asemenea, predictibilă: circulațiile și spațiile secundare sunt grupate la calcan, celelalte spații ale casei fiind dispuse pe fațadele libere, beneficiind de lumină naturală. În zona de parter, simetria dată de cele două spații ample, livingul și sufrageria este întreruptă prin decalarea camerei biroului, fapt care, pe lângă vizibilitatea rezultată pe direcția diagonalei, creează și pretextul unor încăperi, deși de dimensiuni reduse, prețioase pentru spațialitate și calitatea locuirii.
După restaurare, casa a fost eliberată de inevitabilii paraziți arhitecturali care afectează adesea clădirile vechi din București, recăpătând claritatea și luminozitatea de la momentul finalizării din 1934. Principiul central al intervenției a fost conservarea cât mai fidelă nu doar a imaginii, ci și a materialității originale. Modificările s-au realizat doar acolo unde era absolut necesar, iar lucrările de consolidare au fost minimale și gândite pentru a nu afecta fațadele.
Vila este locuită de o familie de muzicieni. La parter, singura intervenție funcțională semnificativă – adăugarea unei mici băi lângă bucătărie , intervenție care permite o eventuală conversie facilă într-o locuință multigenerațională, organizată pe două niveluri.
Subsolul generos, inutil pentru o locuire contemporană, a fost transformat într-o cafenea, cu acces separat realizat prin fostul garaj, adaptat prin construirea unei scări exterioare in locul rampei auto. În locul ferestrei din PVC care înlocuise ușa de garaj a fost construita o tâmplărie batanta, ce reproduce motivele de feronerie ale intrării principale. În același spirit, poarta care separă zona din față a curții, destinată cafenelei, de grădina din spate, reinterpretează desenul porților vechi. In gradina a fost adăugat un foișor contemporan, sub forma unei pergole metalice, gândit ca o structura de susținerea pentru plante agățătoare - glicine, foarte des întâlnite in Cotroceni.
Tâmplăria din lemn a fost înlocuită cu una nouă, fidelă desenului original. Însă jaluzelele din lemn de tei originale au fost păstrate și recondiționate – un demers ce a implicat un efort considerabil, inclusiv financiar, dar care contribuie esențial la autenticitatea și imaginea arhitecturală a casei, precum și la conservarea tehnicilor istorice. În plus, acest gest reflectă o formă de sustenabilitate prin mijloace arhitecturale – jaluzelele din lemn, utilizate frecvent în anii ’30, asigură protecția necesară împotriva soarelui torid al verii bucureștene.