
Comentariul autorului:
În centru orașului Turda, adiacent bisericii Reformate și Muzeului de Istorie, fosta reședință princiară, eparhia Reformată, proprietarul ansamblului școlar Jósika Miklós, dorea să amenajeze o sală de sport pentru activitățile școlare. Tektum a fost însărcinat să găsească o soluție viabilă.
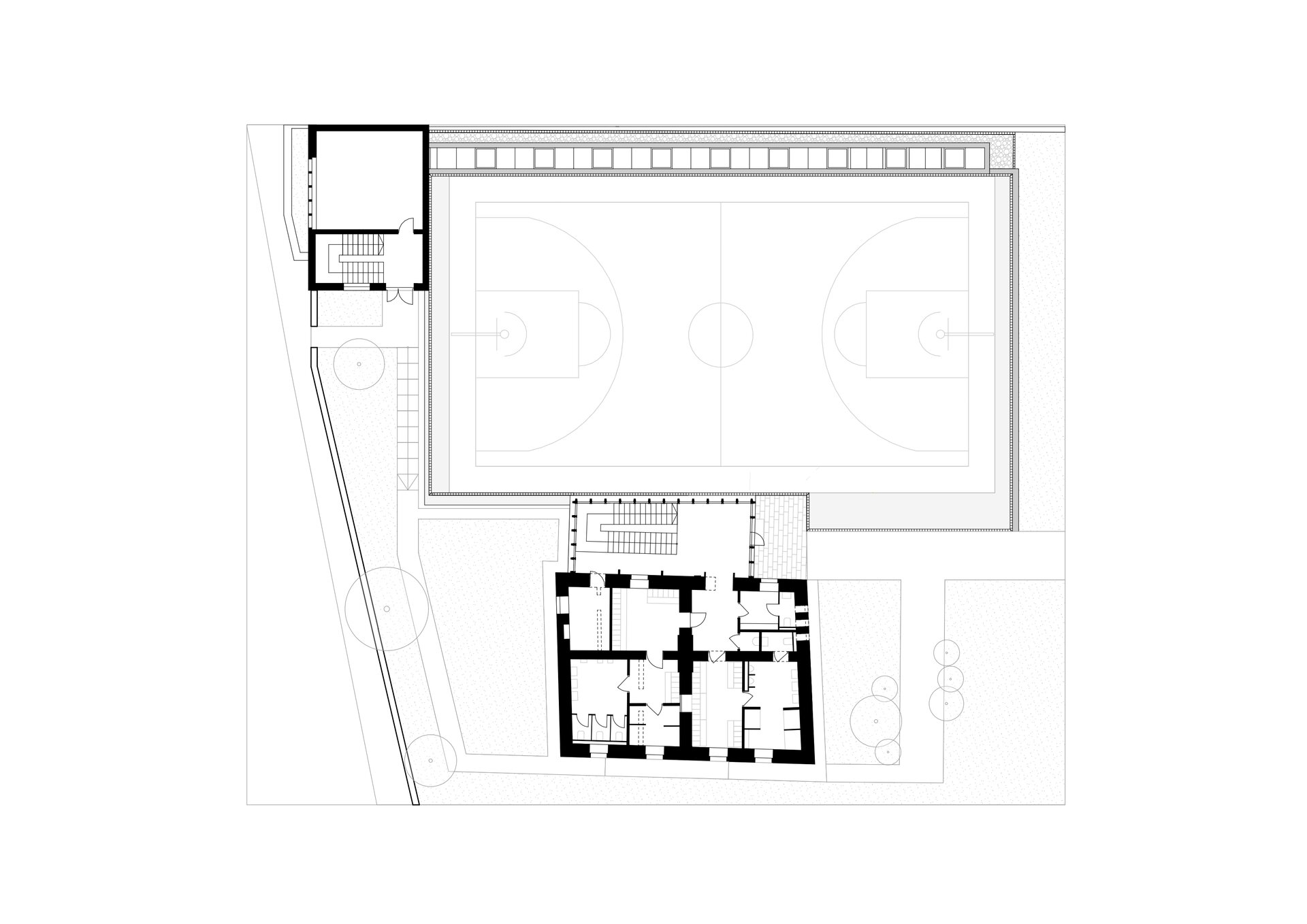
Forma terenului și existența clădirilor nu permiteau construirea unei noi clădiri. Totodată în mijlocul curții era amplasată o construcție cu valoare ambientală. Având în vedere aceste informații și luând în considerare caracterul vernacular al străzii adiacente curții și vecinătatea cu un mic pârâu, s-a optat pentru o soluție urbanistică non-invazivă, de restructurare. Astfel, clădirea cu valoare ambientală a fost tratată ca un monument, a intrat într-un proces de refuncționalizare, aici fiind amplasate spațiile anexe necesare unei săli de sport (vestiare, grupuri sanitare, etc).
Lângă clădire, sub vechiul teren de sport, la cota -9.00m s-a propus sala de sport, accesibilă prin două scări dispuse conform exigențelor. Pentru aceste scări, respectiv pentru spațiile necesare sistemelor de încălzire și ventilație, s-au propus două inserții mici, necesare funcțional. Aceste inserții prezintă o arhitectură contempoarană, care se integrează în estetica ansamblului, respectiv în pitorescul străzii vernaculare.
Pe sala de sport s-a amenajat un teren de sport exterior. Sala de sport este iluminată prin luminatoare amplasate la nivelul terenului.
Marile provocări ale proiectului au constat în modalitatea de amplasare a unei săli de sport pe un astfel de teren, determinat de vecinătatea pârâului. Din punct de vedere structural, s-a optat pentru piloți forați și grinzi prefabricate.
Toate detaliile au fost atent studiate și gândite astfel ca în final să se obțină o sală de sport care răspunde tutror exigențelor contemporane necesare unei astfel de funcțiuni.