
Comentariul autorului:
Proiectul face parte dintr-o serie mai amplă de intervenții cu caracter urban – o propunere de tip masterplan pentru o zonă situată în apropierea Parcului Carol, la intersecția dintre Strada Doctor Constantin Istrati și Șoseaua Viilor, în imediata vecinătate a autogării Filaret. Poziționarea acestui sit îl plasează într-un context strategic – un punct de tranziție între cartiere, o zonă cu potențial ridicat pentru dezvoltare și reconversie urbană.
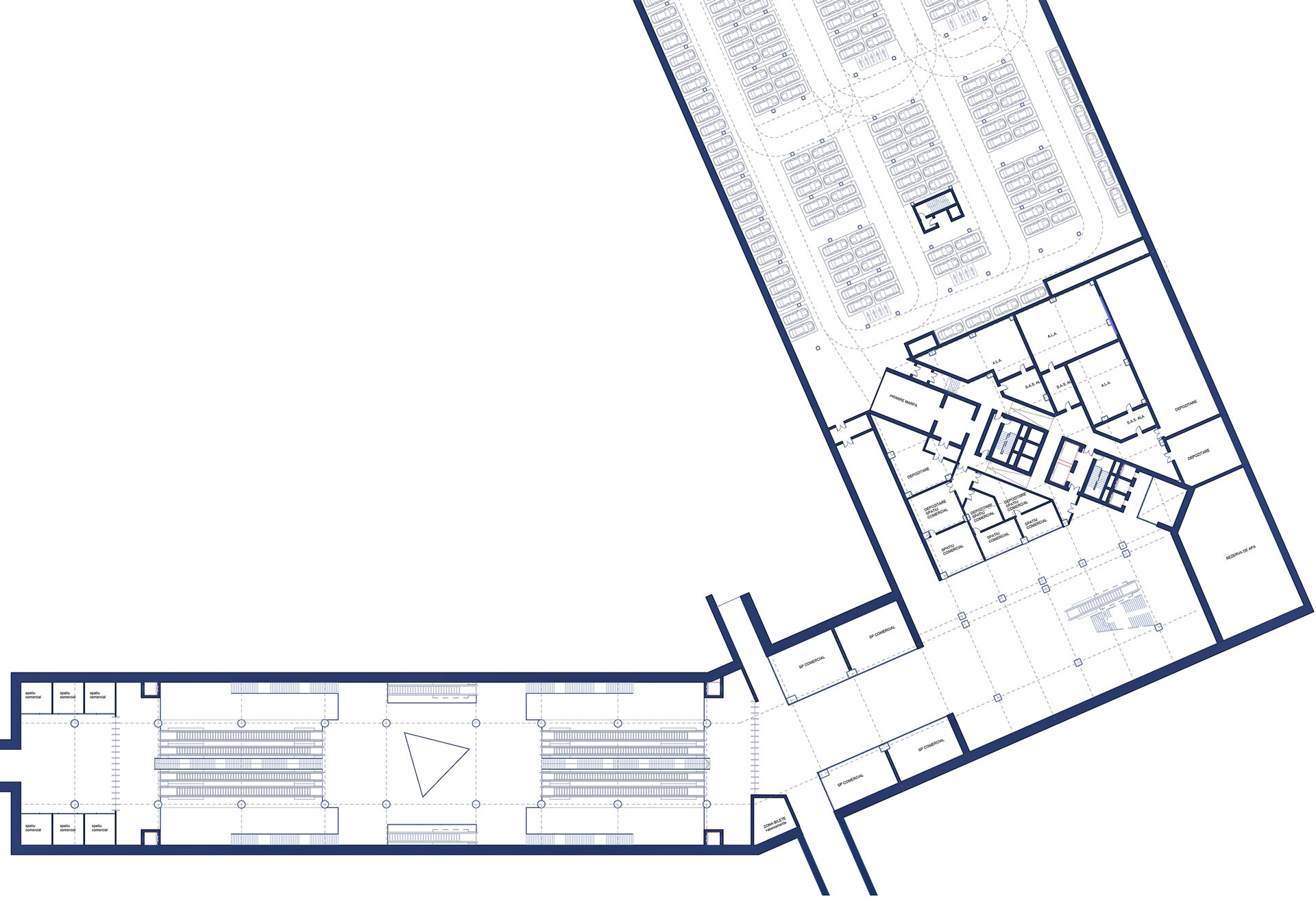
Analiza urbanistică a evidențiat funcțiunea predominantă de locuire, într-un țesut dominat de blocuri cu regim de înălțime P+12, completate la parter de spații comerciale. Totodată, documentațiile tehnice și planurile de dezvoltare a infrastructurii subterane arată că pe sub Șoseaua Viilor va trece viitoarea prelungire a magistralei M4 de metrou, cu o gură de acces amplasată chiar în zona sitului analizat.
În acest context, propunerea își construiește intențiile pornind de la potențialul intersecției dintre infrastructură și spațiul public. Astfel, s-a propus realizarea unei clădiri hibride care să înglobeze două direcții funcționale majore: birouri și spații publice, cu legături directe către viitoarea stație de metrou.
Spațiile de birouri sunt gândite pentru un mod de lucru hibrid, care alternează între prezență fizică și munca remote. Acest model a influențat atât organizarea spațială, cât și strategiile de raționalizare a suprafețelor – fără a pierde din flexibilitate sau confort.
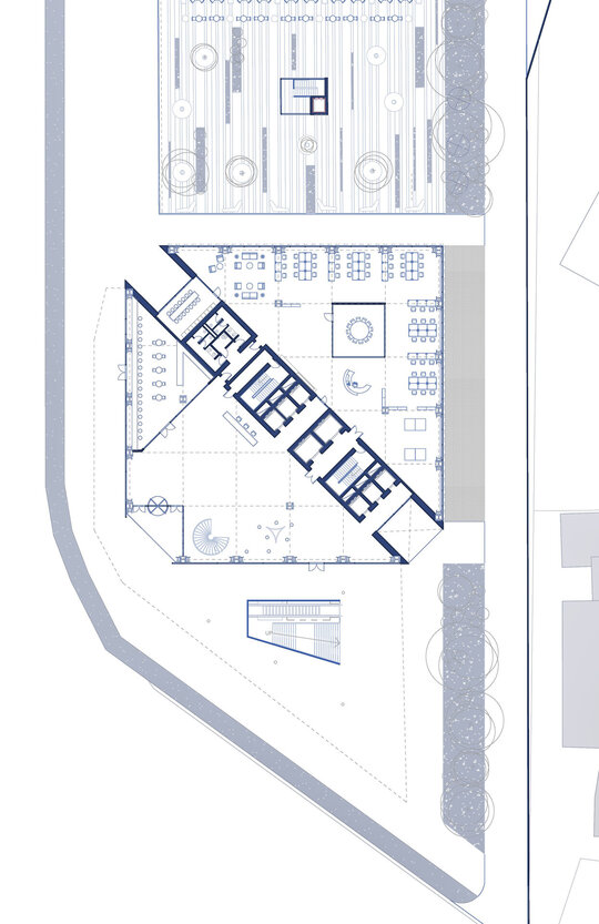
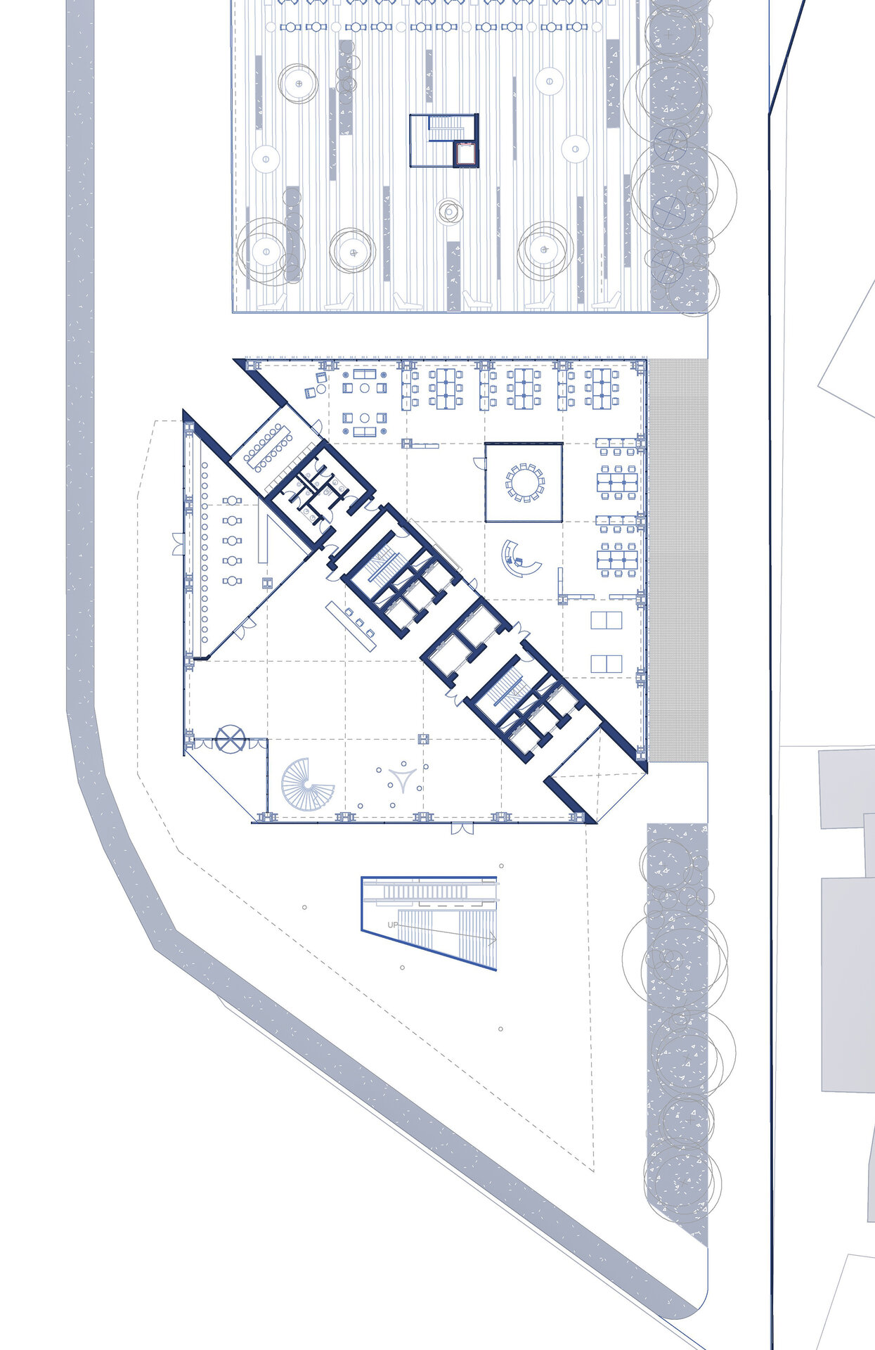
Volumetria este articulată în două corpuri principale, conectate la nivelul subsolului și parterului. Triunghiul din spate este dedicat zonelor de birouri, de la parter până la penultimul etaj, cu spații flexibile, care pot acomoda echipe de dimensiuni variabile. Triunghiul din față e destinat funcțiunilor publice și se dezvoltă pe verticală: la parter regăsim zona de recepție și o cafenea deschisă spre spațiul urban, la etajul 1 o zonă pentru conferințe și evenimente, iar la nivelul următor o grădină interioară și spații de coworking. Ultimul nivel al acestui volum este dedicat unui restaurant cu deschidere panoramică.
Un element esențial în definirea relației dintre clădire și oraș este copertina – un „skin” colorat, care pornește de pe fațadă și se extinde peste trotuar, marcând accesul în clădire și în același timp protejând ieșirea de metrou. Această intervenție generează un spațiu public intermediar, activ, care transformă infrastructura într-o prezență urbană vizibilă și prietenoasă.
În completarea acestui exercițiu, s-a propus și o variantă conceptuală pentru amenajarea stației de metrou. Propunerea caută să aducă lumină, ritm și orientare clară într-un spațiu subteran care, de cele mai multe ori, rămâne pur funcțional. S-a mizat pe o imagine puternică, în care jocul de lumină și repetiția verticală creează o atmosferă clară și coerentă, cu o identitate proprie.