
Comentariul autorului:
„Joaca este cea mai înaltă formă de cercetare.” – Albert Einstein
Ludicul este esențial în procesul de învățare: trezește imaginația, stimulează curiozitatea și alimentează dorința naturală de a explora lumea. Din această perspectivă, școala propusă nu este doar un loc de învățare, ci și un spațiu al jocului, menit să aducă împreună comunitatea și natura.
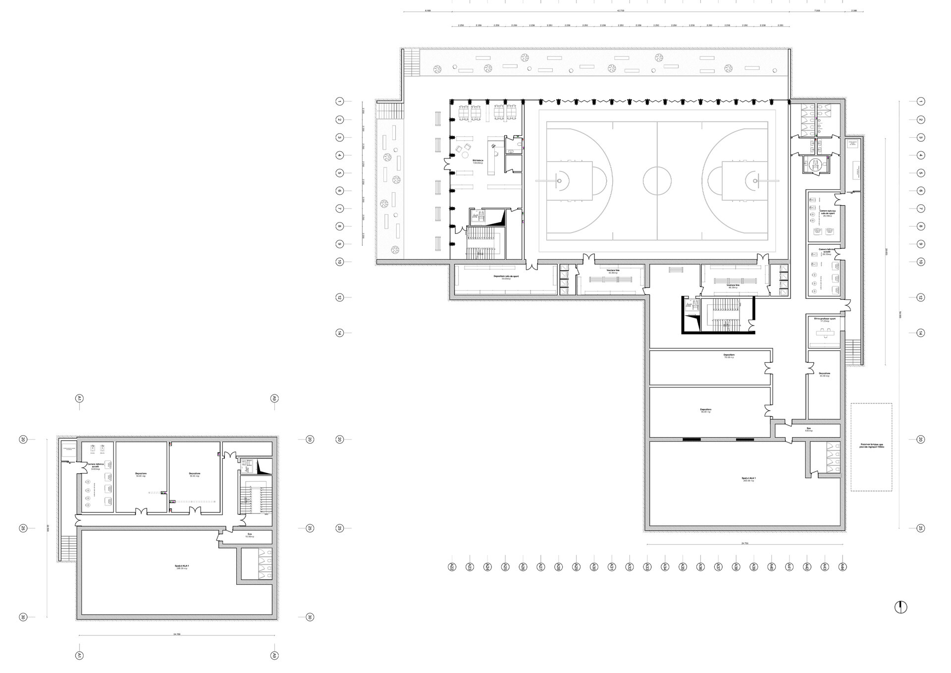
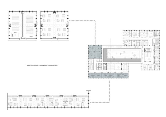
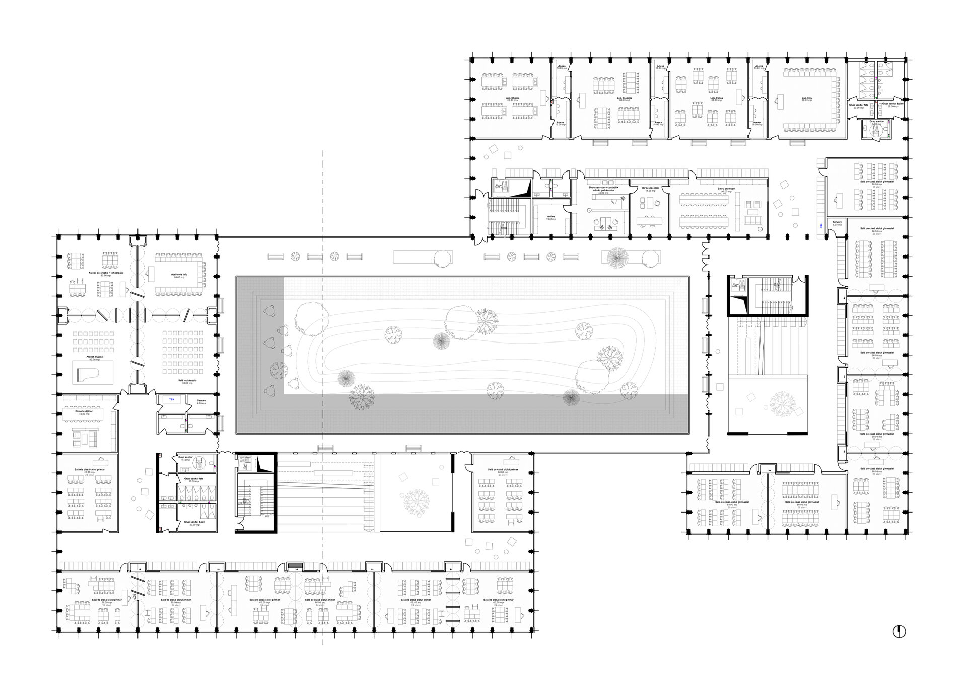
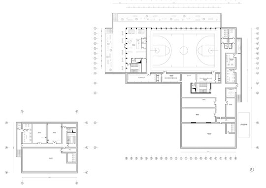
Conceptul arhitectural pornește de la forma casei – simbol al protecției. Am imaginat școala ca pe o „cetate”, un spațiu retras și sigur, care delimitează clar exteriorul de universul său interior. Structura este organizată în două corpuri distincte: unul pentru ciclul primar și altul pentru cel gimnazial, o separare benefică dezvoltării elevilor.
Am explorat teme precum călătoria, jocul și descoperirea cotloanelor, pentru a sublinia faptul că învățarea este o căutare continuă. Copilul pornește cu un „bagaj de acasă”, ajunge la a doua casă – școala – și îl îmbogățește prin experiențe. De-a lungul acestui parcurs, jocul rămâne o constantă.
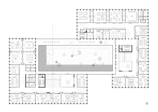
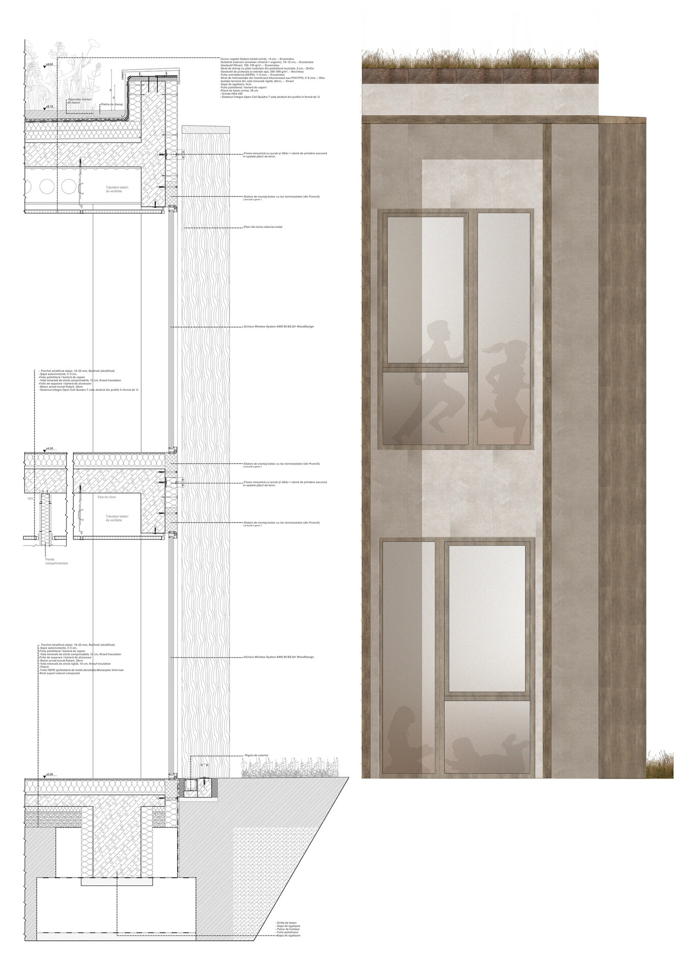
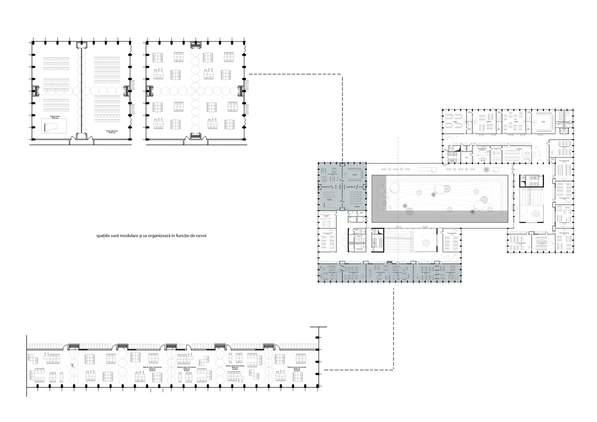
Curtea interioară devine nucleul compoziției: un spațiu vibrant și protejat, înconjurat de un pridvor care unește cele două corpuri. Acest pridvor marchează tranziția dintre exterior și interior, gradând nivelul de intimitate și anunțând accesul în clădire.
Arhitectura este gândită și pentru comunitate. Spații precum sala de sport, terenurile de joacă, biblioteca și cantina rămân deschise și după programul școlar, devenind locuri de întâlnire pentru întreg cartierul. În partea de nord, școala închide frontul stradal și se integrează armonios în țesutul urban.
O parte din teren este dedicată comunității. Clădirea nu ocupă întreaga suprafață disponibilă, ci lasă loc unui spațiu comun, ce creează o tranziție firească între școală și parcul din apropiere. Astfel, se conturează un cadru deschis pentru interacțiune și coexistență.
Relația cu comunitatea este una graduală. Există zone intime și sigure, dedicate copilăriei, dar și spații publice și partajate. Școala devine un echilibru între protecție și interacțiune, între intimitatea universului interior și dinamismul vieții urbane.