
Comentariul autorului:
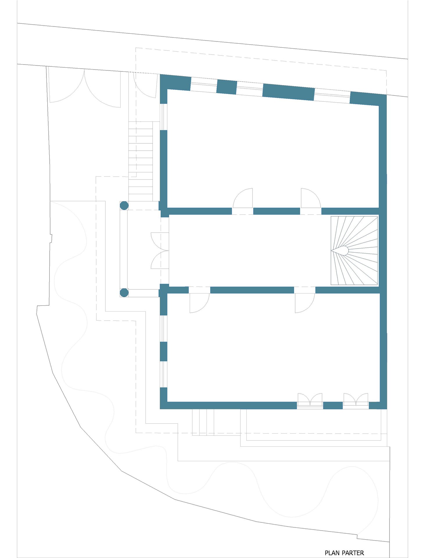
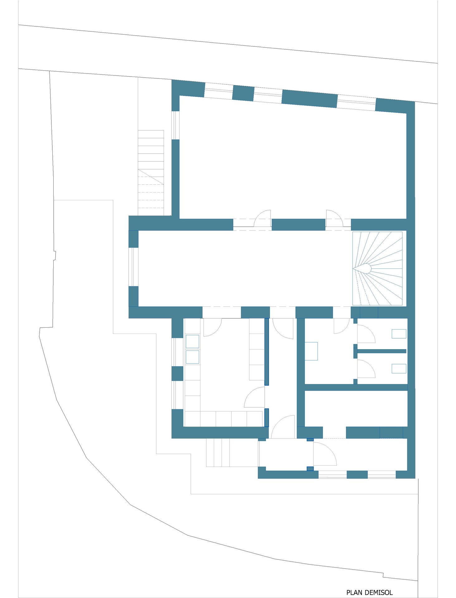
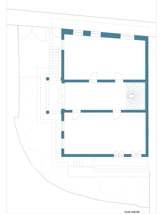
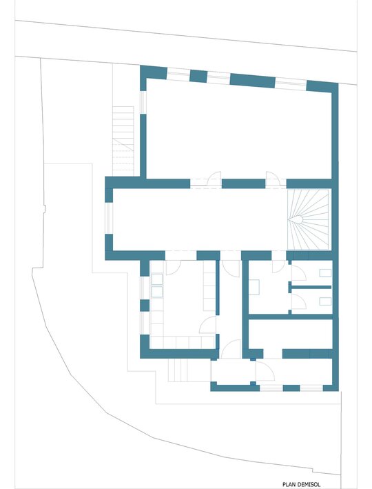
Desfășurarea stradala permitea amplificarea volumului casei cu un etaj, ceea ce conferă prestanța si un plus de monumentalitate. Mansarda, permisa de regulament, a fost dispusa discret, in partea posterioara a volumului.
Casa existenta a fost consolidata in interior pentru a păstra elementele decorative prezente pe fațada. Acoperișul a fost refăcut - dupa adăugarea etajului - folosindu-se elementele originale care au putut fi recuperate. Foișorul a fost deschis, devenind un spațiu aerisit. Elementele decorative lipsa sau deteriorate au fost refăcute dupa cele originale.