
Comentariul autorului:
Proiectul a urmărit reintegrarea cinematografului „Studio” în infrastructura social-culturală existentă la nivelului municipiului Timișoara. Reabilitarea cinematografului a contribuit la atingerea obiectivului european de coeziune economică și socială prin îmbunătățirea infrastructurii sociale, de educație, de sănătate și pentru siguranță publică în situații de urgență.
Clădirea cinematografului face parte din zona centrală de protecție istorică a orașului. Deși nu este clasată drept monument, această clădire este o parte integrantă a peisajului urban actual, fiind reprezentativă pentru arhitectura începutului de sec XX.
Construită în perioada interbelică, în anii 1930, clădirea a fost gândită de la început ca cinematograf. Inițial a fost denumită „Cinema Thalia”. După naționalizarea din 1948, clădirea își schimbă identitatea, în perioada administrației comuniste aceasta funcționând sub numele de „Timpuri noi”, perioadă în care a funcționat ca sală de proiecție pentru filme documentare, cu acces liber și program permanent. Ulterior, clădirea a devenit sediul cinematografului „Studio”, dar a fost dezafectată în anii 2000, ca parte din tendințele vremii, de abandonare a vechilor structuri din centrele orașelor și relocarea funcțiunilor de tip atractor în interiorul mall-urilor.
Din punct de vedere stilistic, clădirea studiată se încadrează în curentul Art Deco. Fațada sobră dominată de linii drepte și epurată de decorații, se caracterizează prin simetrie și monumentalitate. De asemenea, elementele pline, predominante, cu goluri având dimensiuni relativ reduse, contribuie la caracterul distinct al clădirii.
Structura de rezistență a cinematografului, realizată din elemente din beton armat, reprezintă o inovație tehnologică pentru perioada în care a fost realizată, fiind caracterizată prin pragmatism și eficiență. Din punct de vedere funcțional, spațiile propuse încurajează cinematografia de artă din Timișoara și comunitatea profesională din acest domeniu, asigurând facilitățile necesare desfășurării activităților specifice precum și atragerii de evenimente de talie internațională.
Proiectul de arhitectură a presupus modificări interioare și exterioare pentru a consolida și reabilita imobilul existent în vederea adaptării sale la cerințele funcționale contemporane specifice unui cinematograf de artă.
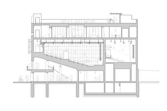
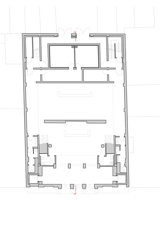
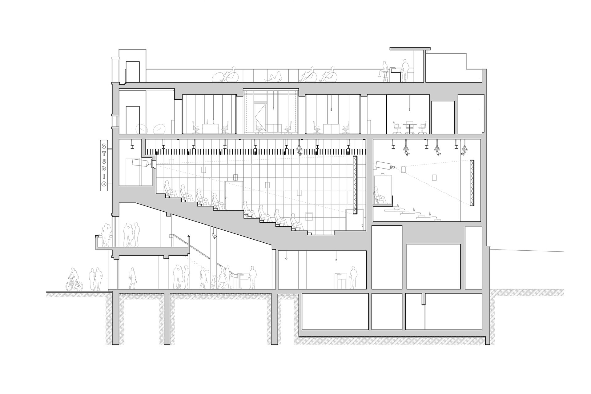
Astfel, la nivelul parterului se definește o zonă de acces cu recepție care se continuă cu un spațiu de tip cafenea. Tot la parter se găsesc și două studiouri pentru editare video și de sunet, tratate ca o insulă izolată fonic.
Sala de cinema existentă a fost transformată în două săli de cinema, una mai generoasă pentru proiecții frecvente și una mai mică și flexibilă în compartimentare, cu gradene retractabile, pentru spectacole și repetiții, dar și pentru proiecții ocazionale.
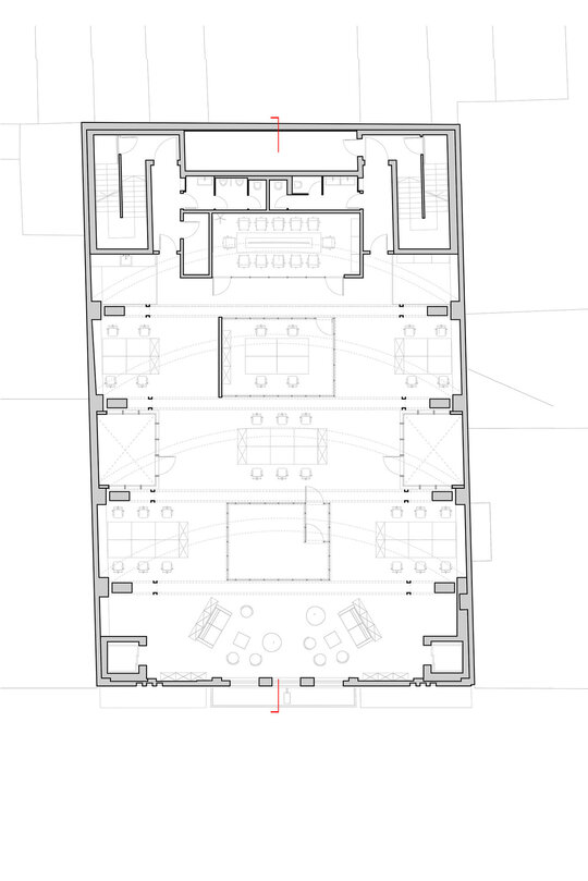
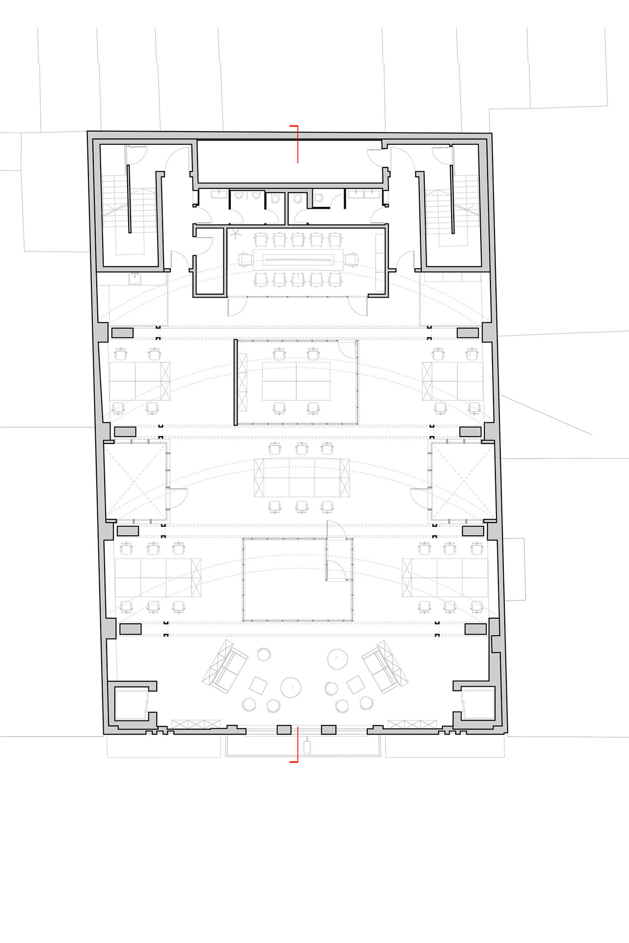
Podul existent a fost transformat într-un hub multifuncțional utilizat pentru spații de birouri, prezentări și expoziții, dar și o sală radio. La acest etaj au fost inserate două curți de lumină exterioare pentru o mai bună luminare a spațiilor de lucru.
Partea superioară a clădirii este amenajată sub forma unei terase circulabile pe care se organizează proiecții în aer liber.
Structură din beton și cărămidă a clădirii a fost consolidată prin cămășuire. Compartimentările propuse au necesitat realizarea unei structuri noi din diafragme din beton armat pentru pereți, a unor ferme metalice acoperite de un planșeu din beton armat peste sălile de cinema, dar și a unei structuri metalice, ancorate în structura din beton existentă, pentru a putea susține noua placă din beton armat pentru terasa circulabilă, realizată peste arcele din beton existente la etajul hub-ului.