
Comentariul autorului:
Proiectul, înainte de a rezolva constrângerile funcționale, pornește de la respectul acordat calităților arhitecturale și estetice ale contextului și ale fondului construit existent. Situată în zona semicentrală a orașului Târgu Mureș, clădirea existentă a trecut prin numeroase schimbări de funcțiune, fiind acum reconfigurată pentru a găzdui o creșă destinată unui număr de aproximativ 70 de copii.
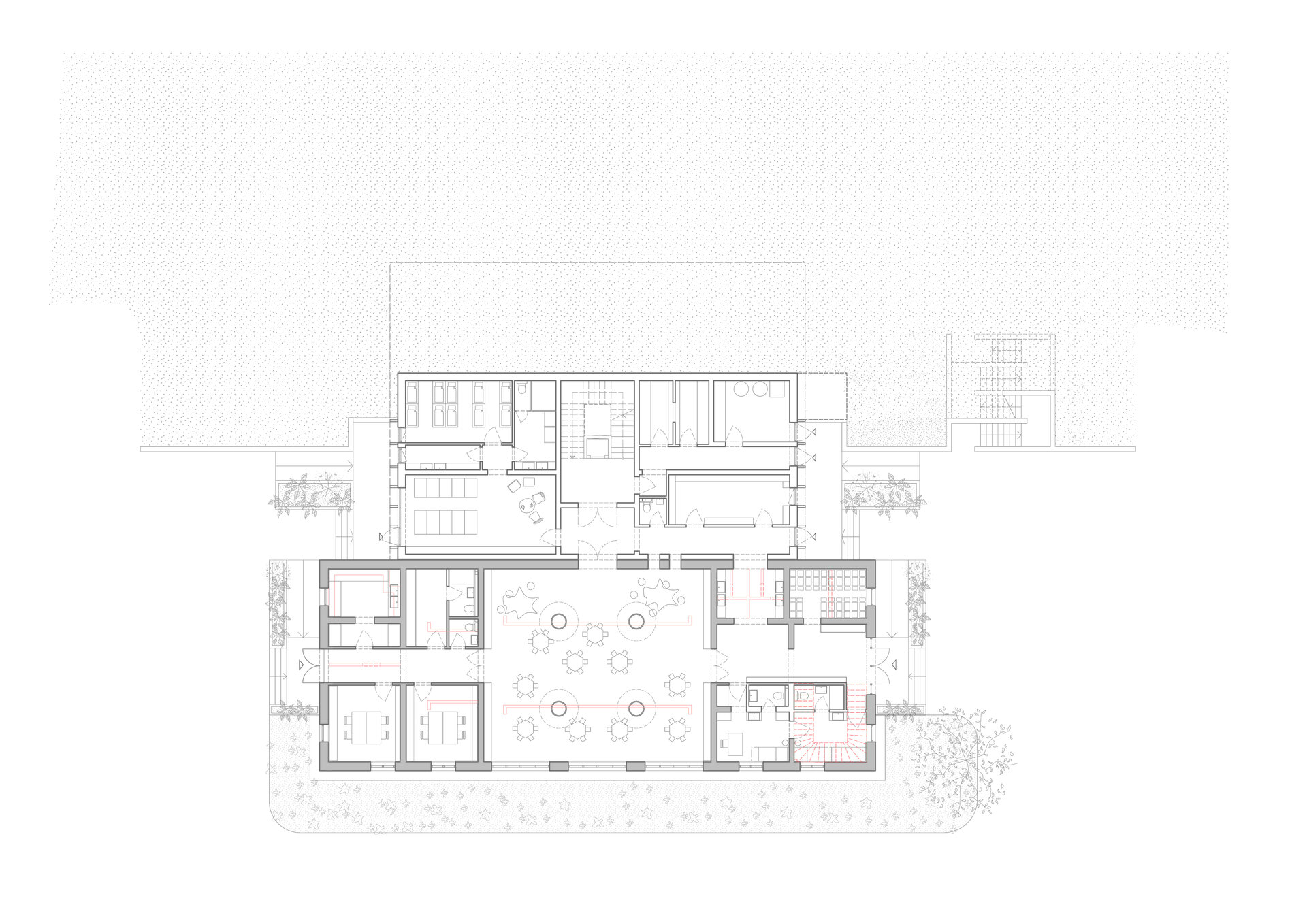
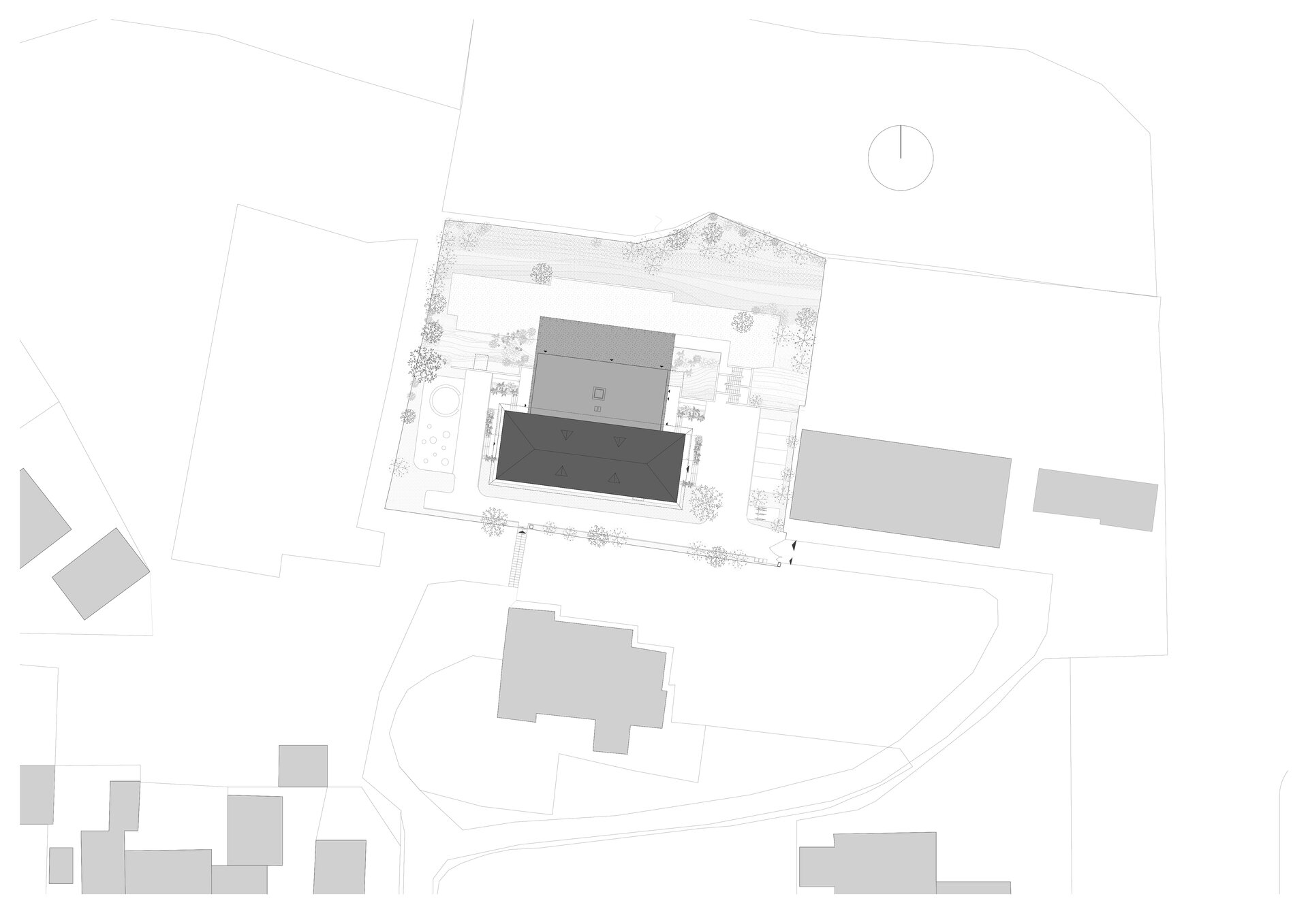
Propunerea intervine asupra clădirii existente și introduce o extindere pe latura nordică, acolo unde topografia oferă un avantaj natural pentru acomodarea spațiilor necesare. Demolarea anexelor târzii eliberează fațadele valoroase și clarifică geometria lotului, iar amplasarea extinderii profită de curtea în pantă, care devine parte activă din viața cotidiană a creșei. Prin această soluție, două grupe și casa scării sunt conectate direct cu nivelul superior al terenului, legătura fiind mediată de o terasă acoperită generoasă. Astfel, proiectul generează două curți distincte și complementare, gândite ca extensii exterioare ale activităților din interior.
Reorganizarea interioară mizează pe orientare intuitivă: de la intrare, parcursul conduce către sala multifuncțională – inima clădirii – și mai departe către grupele de copii și spațiile de sprijin. Scara comună, luminată natural, conectează nivelurile și, prin terasa acoperită, leagă activitățile de platoul superior al curții. Legăturile scurte reduc timpul de tranziție și oferă personalului vizibilitate, iar copiilor o succesiune calmă între joacă, învățare și repaus.
Spațiul central al noii funcțiuni este sala multifuncțională, organizată în relație directă cu foyerul, cu scara verticală, cu zona de oficiu și cu accesul către locurile de joacă. Ea devine nucleul pentru activități diverse: joacă, spectacole, mese comune sau evenimente cu părinții. În completare, sălile de grupă sunt concepute cu o dublă deschidere – către interior și către curte – încurajând legătura constantă dintre educație și mediul exterior.
Arhitectura extinderii se exprimă printr-un limbaj contemporan care pune în valoare prin contrast caracterul istoric al imobilului. Fațadele sunt gândite să asigure un bun control solar și o relație armonioasă cu peisajul natural al versantului nordic. Interiorul propune o atmosferă luminoasă și caldă, cu forme geometrice și accente pastel care stimulează creativitatea și confortul copiilor. Fiecare încăpere de joacă de la etaj primește pe tavan o formă geometrică distinctă (cerc, triunghi, pătrat, romb), menită să diferențieze grupele.
Extinderea dinspre nord valorifică diferențele de nivel printr-o arhitectură temperate și elemente de filtrare a luminii. Contrastul dintre limbajul nou și cel istoric este ponderat prin cromatică și texturi compatibile: vechiul rămâne figura centrală. Materialitatea propusă recuperează expresivitatea corpului istoric prin reparația fațadelor și reîmprospătarea finisajelor, în vreme ce extinderea adoptă un registru actual, cu suprafețe clare și elemente verticale care ordonează compoziția.
În exterior, curtea este gândită ca un peisaj pedagogic. Amenajările privilegiază jocul liber: aleile pavate conduc intuitiv către intrări și zone de activitate, arborii creează umbră și marchează repere, iar arbuștii delimitează, fără bariere opace, spații tematice pentru explorare. Elementele tehnice sunt integrate discret, iar numărul redus de parcări este concentrat lângă acces, pentru a elibera restul curții și a o dedica exclusiv activităților educaționale.
În ansamblu, intervenția urmărește echilibrul între vechi și nou, întreținerea identității arhitecturale a clădirilor existente și expresia unei funcțiuni publice actuale, în care deschiderea, siguranța și caracterul prietenos devin principii definitorii. Proiectul propune un loc care îmbină patrimoniul cu nevoile educației timpurii, în care claritatea circulațiilor și calitatea luminii se traduc în confort și învățare. Vechiul este protejat și activat, noul completează fără să concureze, iar împreună alcătuiesc un cadru coerent, accesibil și adaptabil în timp – o creșă care devine firesc parte din viața comunității.