
Comentariul autorului:
Terenul se află în Târgu Mureș, lângă Piața Republicii. Acest loc a fost odinioară mărginit de una
dintre ramurile râului Mureș, între anii 1650 și 1898. Împrejurimile sunt în mare parte rezidențiale, însă
în apropiere se află și o școală, un cabinet medical și câteva magazine. Transportul public este
ușor accesibil — există o stație de autobuz și o gară în apropierea terenului.
Studiul apei a fost important pentru noi, deoarece în trecut, una dintre ramurile râului Mureș
trecea chiar pe lângă amplasamentul propus, așa cum am menționat anterior. Această
caracteristică istorică și naturală ne-a inspirat conceptul, care gravitează în jurul apei, al
navigației și al lumii copiilor. Ne-am dorit ca motivul apei să nu rămână doar o amintire, ci să
devină o nouă sursă de experiențe comunitare și descoperiri ludice pentru copii — într-un mediu
care respectă trecutul și creează oportunități pentru ca generațiile viitoare să se reconecteze cu
natura.
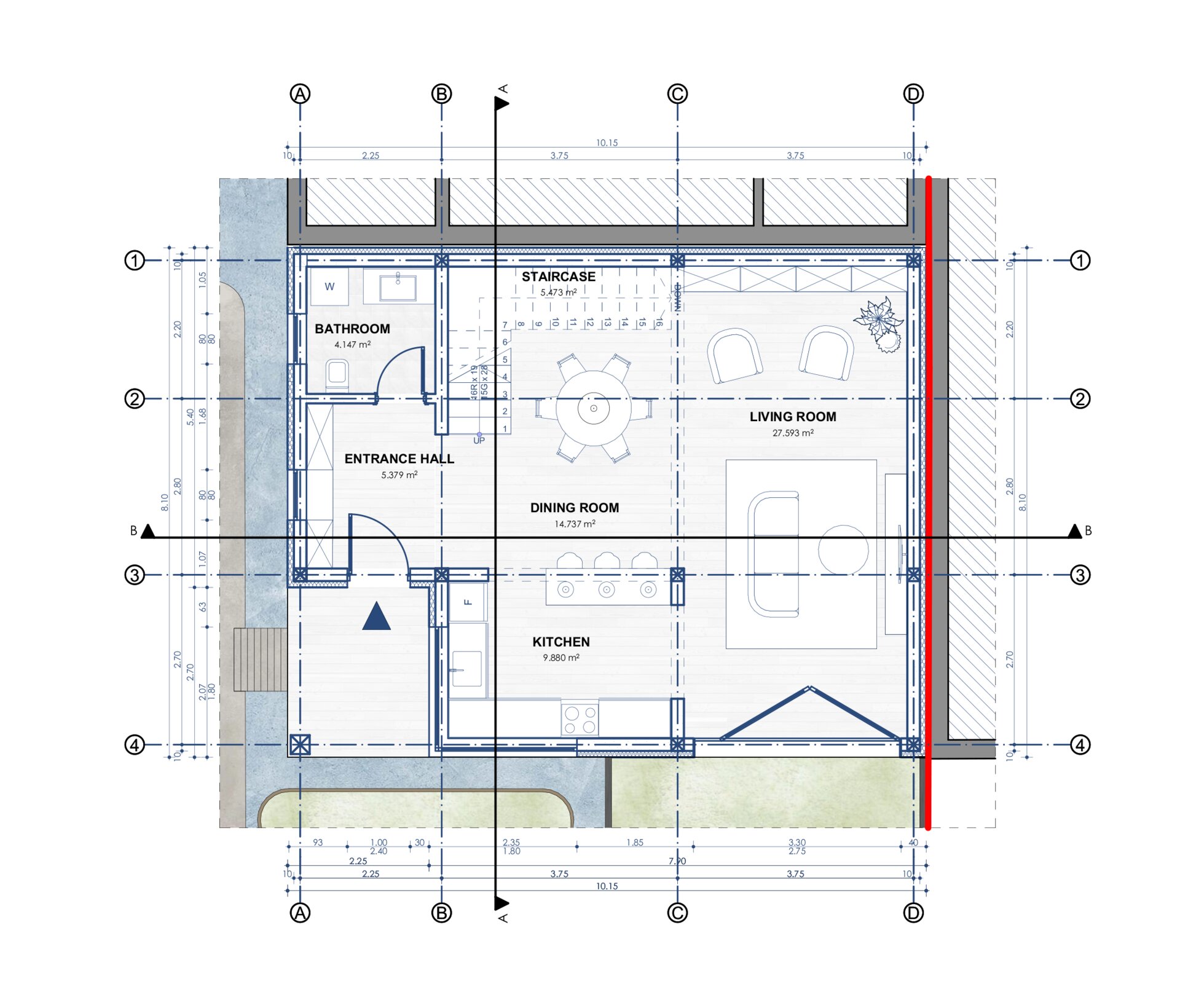
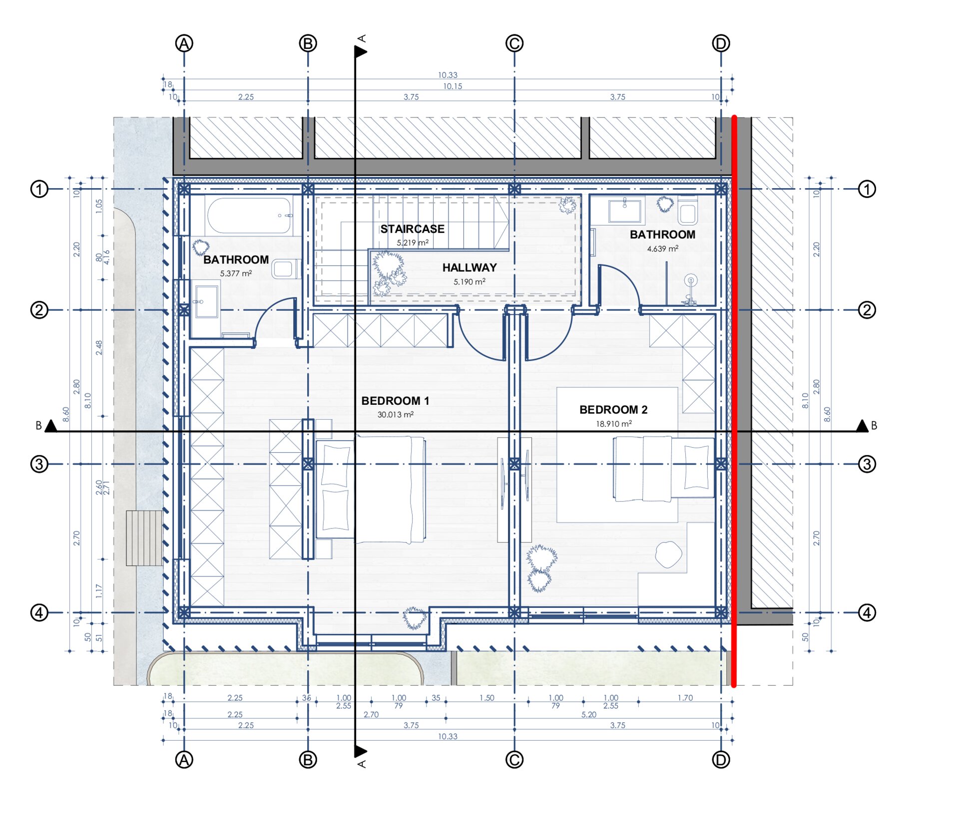
Terenul are o suprafață de 1880 m², cu un POT de 50% și un CUT de 1.5, ceea ce înseamnă 2820
m². Am construit pe mai puțin de jumătate din suprafață. Am proiectat 7 case cu o amprentă
totală la sol de 565 m² — iar dacă calculăm CUT-ul, ajungem la 1130 m², deoarece fiecare casă
are parter și un etaj. Forma caselor a fost inspirată de bărci cu pânze: partea inferioară este
placată cu lemn, iar etajul și acoperișul sunt într-o nuanță alb-gri, cu acoperișul înclinat puternic
într-o singură direcție, evocând pânza unei bărci.
Fiecare dintre cele 7 case are propria grădină verde privată, iar 4 dintre ele au și piscină în curte.
Acestea sunt amplasate în zona centrală a terenului, unde beneficiază de mai multă lumină
solară. Pe lângă case și grădinile private, am organizat întregul teren astfel:
Intrarea se face dinspre Piața Republicii, prin două porți și o ușă. Poarta mare este destinată
accesului auto către garajul subteran, poarta mică este pentru pietoni, iar ușa duce la camera
de colectare a deșeurilor. Această zonă a fost gândită astfel încât locatarii să poată depozita
deșeurile în acest spațiu, iar colectorii să le poată ridica fără a intra în curtea principală.
Apa curge prin tot ansamblul — cu excepția aleilor, zonelor de joacă și spațiului comunitar.
Acest element acvatic are rol simbolic și ludic, permițând copiilor să plutească bărcuțe din hârtie.
De-a lungul aleilor apar mici poduri, sub care curge apa. Este important de menționat că
adâncimea apei este de doar 5 cm, fiind pur simbolică și sigură pentru copii. Prima oprire este
zona SLIDES, cu tobogane pentru copii și bănci pentru părinți. A doua oprire este WAVE BLOBS —
mici movile acoperite cu iarbă pentru cățărat și relaxare. A treia oprire este zona de RELAXARE,
un spațiu comunitar destinat în principal părinților. Pe o latură a acestuia se află un perete de
apă, în spatele căruia am ascuns scara și liftul care duc spre garajul subteran. Acest spațiu
comunitar include scaune, mese și grătare pentru confortul locatarilor. A patra oprire este
SANDBOX DECK, un simplu loc de joacă cu nisip, care leagă metaforic apa de țărm. A cincea
oprire este BIRDS NEST SWINGS, cu leagăne din frânghie care trimit cu gândul la tema nautică,
frânghiile fiind elemente frecvent întâlnite pe bărci. A șasea și ultima oprire este SHIP FORT, o
structură de cățărat în formă de navă — marcând capătul terenului.
Numele „Fleet Yard” provine din faptul că cele 7 case sunt așezate ca niște bărci cu pânze
ancorate într-o marină, ca și cum ar pluti pe apă într-un doc închis. Întregul design gravitează în
jurul apei, bărcilor și copiilor — astfel încât, în timp ce părinții savurează un pahar de vin, copiii să
poată explora și se juca liber în întreaga curte. Este un parc de aventură închis, viu și plin de viață,
în inima orașului.