
Comentariul autorului:
„Niciun om nu este o insulă, complet de sine; fiecare om este o parte dintr-un întreg.” – John Donne
A treia vârstă este adesea considerată toamna vieții, o a doua tinerețe sau anii de aur. Este o perioadă pe care fiecare o trăiește în mod diferit – există nenumărate moduri de a îmbătrâni. De cele mai multe ori, vârstnicii își petrec această etapă singuri, în propriile locuințe, interacționând rar cu vecinii. Cu toate acestea, omul rămâne o ființă socială de-a lungul întregii sale vieți. Tocmai de aceea, proiectul propus aduce în prim-plan nevoia de comunitate și de conexiune umană constantă.
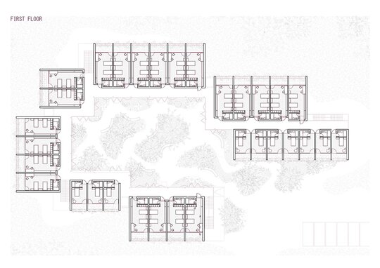
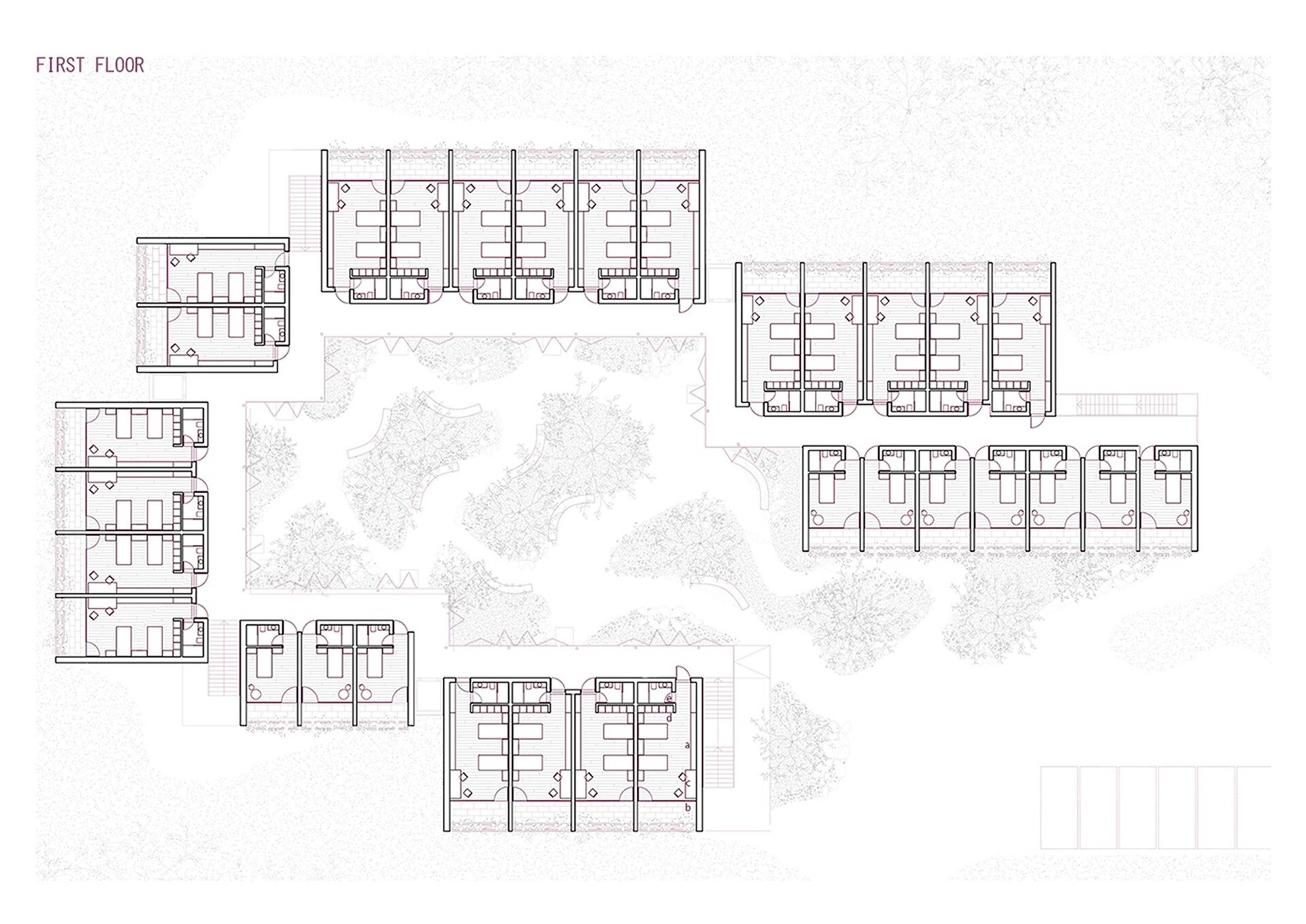
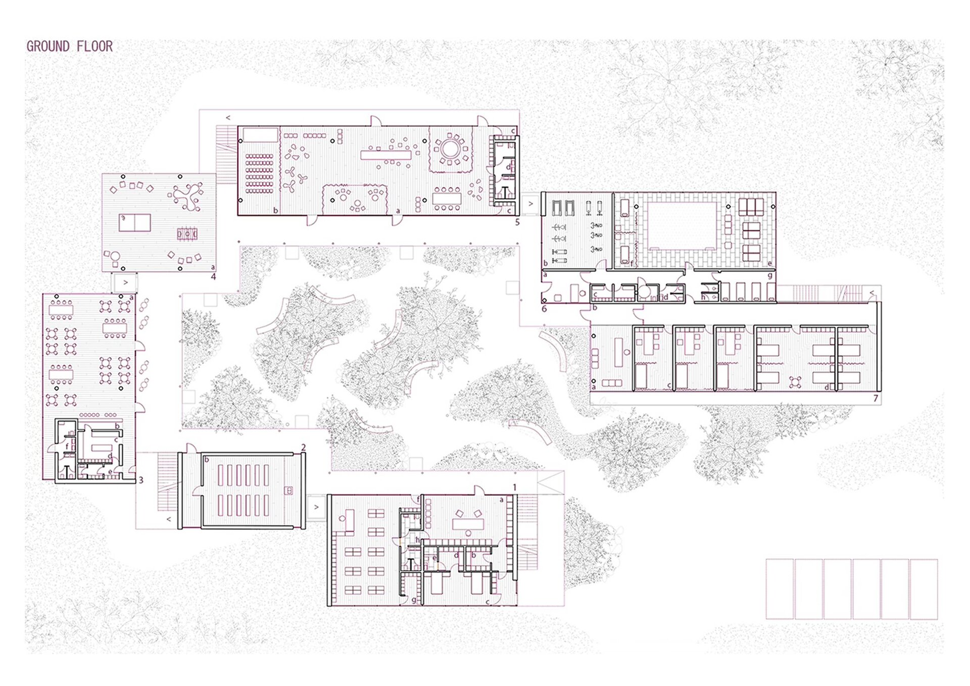
Propunerea constă într-o serie de module rezidențiale, interconectate printr-o alee exterioară care înconjoară întregul ansamblu. Această legătură creează un sentiment de coeziune între unitățile de locuit. Pentru dimensionarea volumelor, am luat ca reper casele mici din împrejurimi, păstrând astfel scara umană a locului. Grădina comună, inspirată de cele din jurul caselor existente, devine un spațiu de întâlnire și coabitare, unde viața comunitară este încurajată firesc.
Complexul este alcătuit din parter și un etaj superior. La parter se află zonele comune: sala de mese, bucătăria, spațiile dedicate îngrijirii vârstnicilor, precum și cele pentru activități colective – sala multifuncțională, sala de socializare, capela, spa-ul, sala de fitness și piscina. Etajul superior este destinat locuirii propriu-zise, iar accesul se face prin scări și lifturi. Camerele sunt dispuse de-a lungul unui coridor exterior, protejat de obloane, fiecare beneficiind de o terasă proprie cu vedere spre pădurea ce înconjoară situl.