
Comentariul autorului:
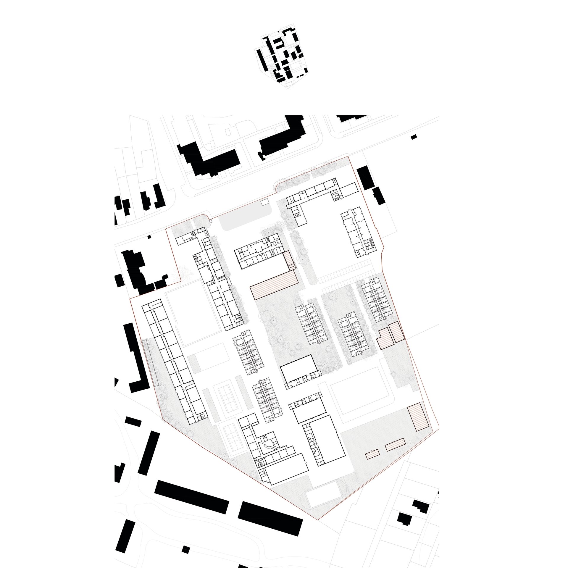
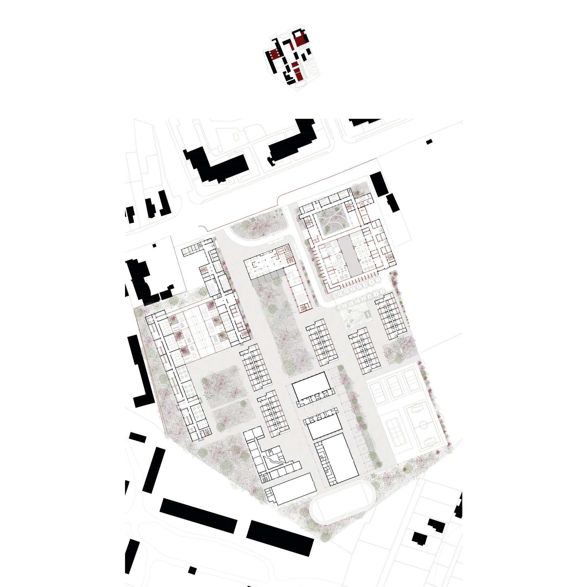
Proiectul de diplomă are loc în orașul Focșani, un oraș de dimensiuni medii, aflat într-o perioadă de stagnare urbană, dar cu o identitate puternic legată de producția locală și meșteșuguri. Situl de intervenție se află în zona sudică a orașului, care este recunoscută pentru activitățile industriale. Deși multe dintre fabrici și-au redus activitatea, spiritul orașului-târg și al atelierelor mici a rămas, susținut de meserii artizanale și tehnologice diverse, încă preferate de comunitate. Proiectul vizează transformarea unei zone educaționale fragmentate într-un campus vocațional coerent, format din trei licee- două tehnice și unul sportiv- completate de ateliere, cantină, internate și săli de sport. Intervenția principală constă în extinderea atelierelor artizanale ale Liceului Tehnic nr. 4, răspunzând cerințelor actuale ale educației practice. Noile spații sunt gândite ca zone flexibile și interconectate, capabile să se deschidă și să formeze un mare teren experimental pentru activități manuale și expoziții. Structura de beton protejează aceste ateliere, formând un coridor multifuncțional cu spații de lucru, întâlnire și expunere. Proiectul respectă principiul școlii ca micro-oraș, creând legături fluide între sălile teoretice, spațiile comune și curțile exterioare - o curte vegetală și una de lucru, unde activitățile pot continua în aer liber. Intervențiile adiacente propuse sprijină întregul ansamblu: reabilitarea căminelor abandonate, extinderea zonei sportive și a cantinei cu o sală multifuncțională și spații de recreere. Atelierele tehnice pentru prelucrarea lemnului și metalului completează programul educațional și susțin continuitatea tradiției productive a orașului. Proiectul își propune nu doar revitalizarea fizică a spațiilor, ci și consolidarea unei rețele educaționale capabile să regenereze comunitatea prin formare profesională relevantă și adaptabilă.