
Comentariul autorului:
Proiectul urmărește realizarea unui ansamblu rezidențial, alcătuit din șapte unități de locuit, pe strada Popa Nan nr. 52. Contextul urban în care se înscrie intervenția are o încărcătură simbolică aparte, datorită prezenței bisericii Popa Nan, reper istoric și spiritual al cartierului. Din acest motiv, clădirea propusă nu se limitează la o funcție pur utilitară, ci caută să exprime, prin arhitectură, o relație complexă între trecut și prezent, între sacru și profan, între memoria colectivă și locuirea contemporană.
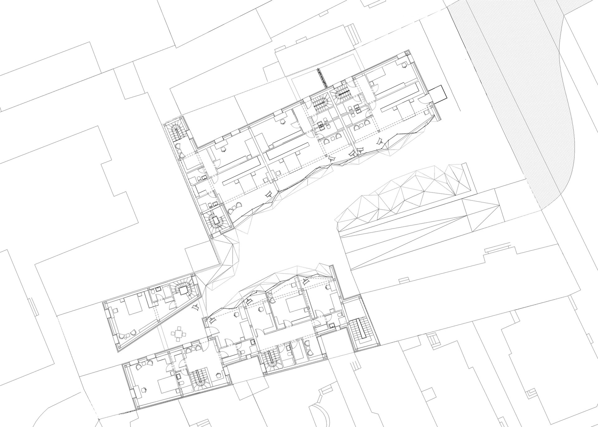
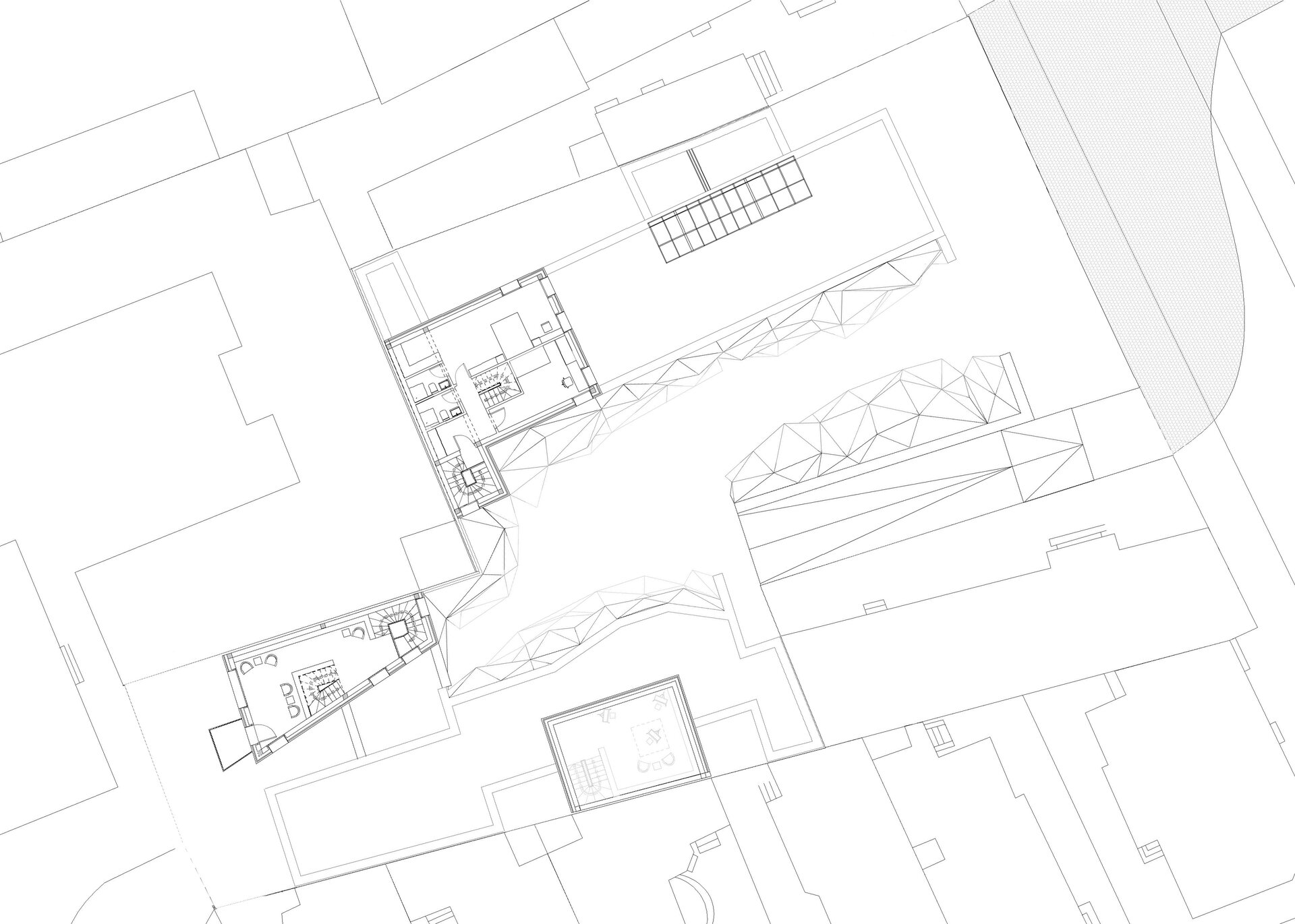
Ansamblul se distinge de imaginea urbanistico-arhitecturala existentă printr-o volumetrie fragmentată și printr-un limbaj arhitectural care valorifică jocul dintre lumină și materialitate. Fațadele triangulate din sticlă generează o dinamică vizuală de reflexii și transparențe, evocând principiile deconstructivismului, dar mai ales rolul luminii ca simbol al sacrului. Razele soarelui, dispersate prin planurile înclinate, transformă percepția spațiului și creează o atmosferă meditativă, în contrast cu rigiditatea construcțiilor vecine. Alegerea triunghiului ca element dominant nu este întâmplătoare: numărul trei are, în tradiția culturală și spirituală, conotații legate de echilibru, armonie și plenitudine.
În acest sens, perspectiva filozofică a lui Mircea Eliade, exprimată în lucrarea „Sacrul și Profanul”, devine un punct de plecare esențial. Eliade subliniază că spațiile locuite de om — fie că este vorba despre case, orașe sau locuri natale — nu sunt doar simple entități fizice, ci adevărate „centre simbolice” care structurează viața omului și care îi oferă un reper existențial.
Volumetria clădirii, prin modul său de desfășurare și prin dinamica pe care o propune, evocă o mișcare de „întoarcere” a trăirilor umane către spiritualitate. Dincolo de funcționalitatea sa imediată, arhitectura trimite către o energie transcendentă, către o preocupare constantă pentru dialogul dintre uman și divin. Vegetația care înconjoară ansamblul contribuie la această continuitate, făcând legătura dintre biserică și clădire. Arborii, considerați în multe tradiții simboluri cosmice, care unesc cerul cu pământul, devin parte integrantă a compoziției arhitecturale. Prin această inserție, viața cotidiană a localnicilor se contopește cu vibrația înaltă a sufletului lor, într-un flux continuu de energie care curge între profan și sacru.
Materialele utilizate accentuează dialogul dintre vechi și nou. Fațadele orientate către stradă sunt realizate din cărămidă, un material care evocă stabilitatea și permanența. Alegerea sa face trimitere la istoria bisericii – reconstruită de mai multe ori de-a lungul timpului,. Acest strat material introduce o punte simbolică între memoria locului și prezentul arhitectural, evitând rigiditatea izolării și propunând în schimb o legătură directă cu semnificațiile istorice și comunitare.
Organizarea spațiului interior urmează o logică clară și funcțională. La parter se regăsește zona de zi, în relație directă cu curtea comunitară, care funcționează ca un spațiu de întâlnire și socializare. La etaj sunt dispuse zonele de noapte, într-un registru mai intim, favorizând retragerea și liniștea. Traseele de acces sunt concepute ca o succesiune de praguri, trecerea de la strada publică la intimitatea locuinței fiind mediată prin spații intermediare ce susțin ideea de comunitate și coabitare.
Clădirea propusă se înscrie în tema “Altfel” prin felul în care depășește granițele arhitecturii obișnuite din zonă și propune un limbaj distinct, profund simbolic. Ea nu urmărește doar funcționalitatea locuirii, ci reinterpretează raportul dintre om, comunitate și sacru. Prin fațadele dinamice din sticlă, care valorifică lumina ca simbol divin, prin utilizarea cărămizii ca punte între trecut și prezent, dar și prin integrarea vegetației ca mediator cosmic, ansamblul devine un reper arhitectural ce resemnifică identitatea locului. „Altfel”-ul său nu constă doar în formă sau materialitate, ci în capacitatea de a transforma locuirea într-o experiență spirituală și comunitară, în dialog continuu cu memoria istorică și cu aspirațiile contemporane.