
Comentariul autorului:
Locuințe colective cu regim de înălțime scăzut
15 unități rezidențiale, 43 de vecini
În jur: fronturi continue și tramvaie-n mișcare. Spații verzi reziduale. Zgomot, copaci, mix funcțional.
Ce a vrut locul?
Să capteze mișcare.
Ce i-am oferit?
- în capăt de drum, o fantă de lumină prinsă între două ziduri. Lumina cade pe trotuare și în parc.
- zidurile - două grădini verzi, două ocazii de întâlnire și comunicare, două ferestre deschise spre oraș.
- oameni pe stradă, pe bănci, la balcoane.
- în curtea interioară - soare și umbre în mișcare, vânt și copaci, păsări în zbor, oameni pe punți și cursive.
- terase comune, la înălțime - sub ele crește orașul, deasupra lor, cerul.
- oameni la geam, schimbă saluturi; pe stradă alunecă un tramvai.
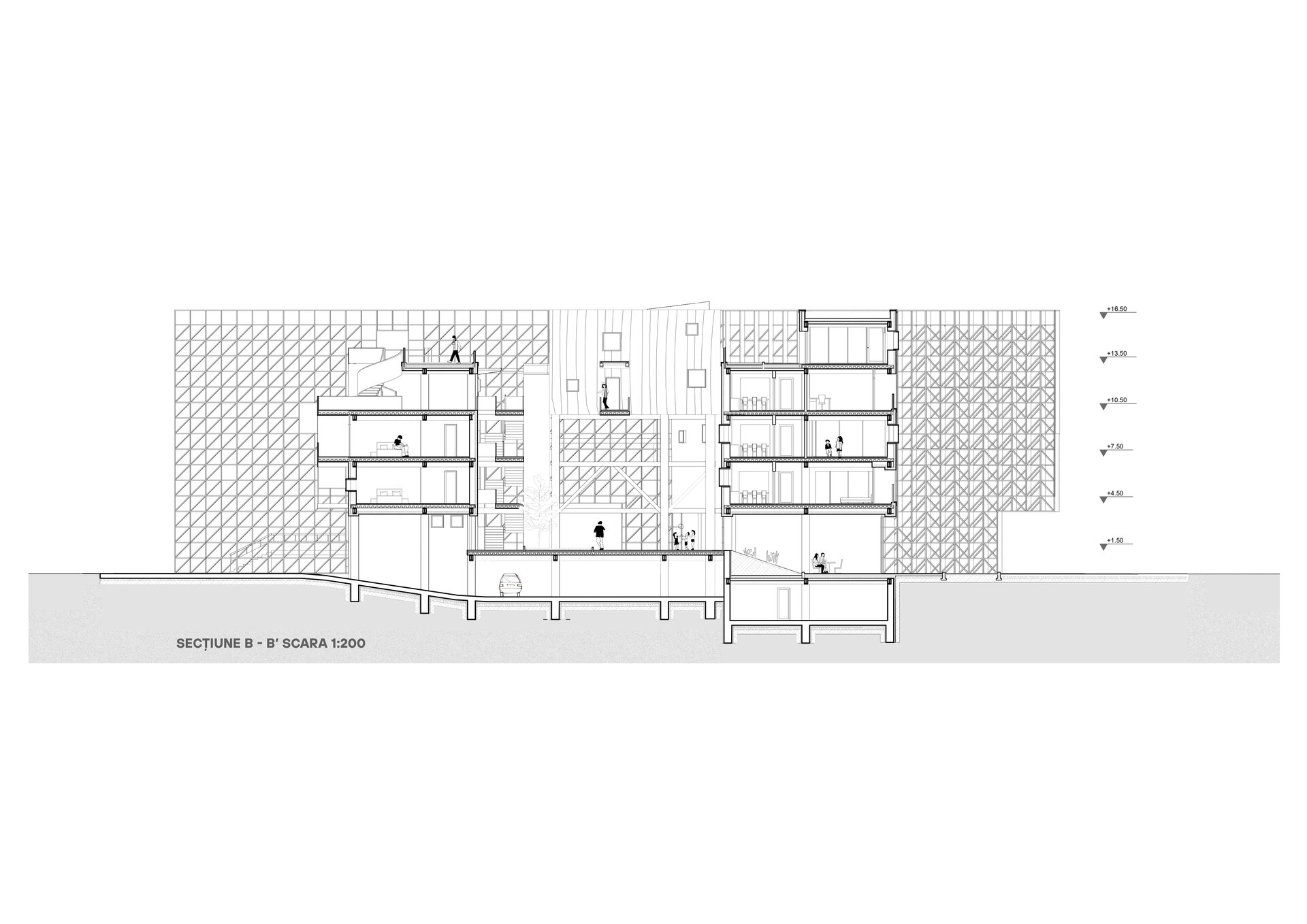
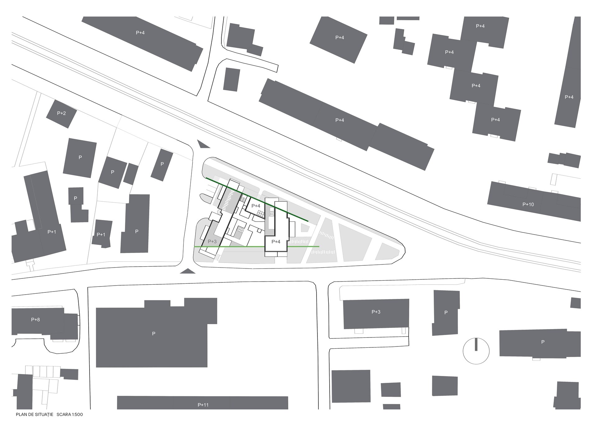
Preluând aliniamentul fronturilor existente, două „ziduri verzi”, structuri metalice autoportante, sunt intersectate de volumele locuințelor colective. Din punct de vedere al tipologiei formale, aceste volume se prezintă sub forma a două bare, dispuse transversal, perpendicular pe direcțiile de dezvoltare ale fronturilor existente.
Bara scurtă, din partea estică a amplasamentului, se dezvoltă pe patru niveluri. Volumul marchează intersecția a două căi principale de circulație și devine reper la nivel urban.
Bara lungă, din partea vestică a amplasamentului, se dezvoltă pe trei niveluri. Terasa circulabilă de la ultimul etaj oferă perspective spre partea centrală a orașului - conuri de vizibilitate deschise spre Palatul Culturii, Catedrala Mitropolitană.
Independent de volumele liniare principale, se dezvoltă, punctual, două locuințe duplex, cu parter liber.
Zonele de zi ale apartamentelor ies din planurile structurii metalice verzi și se deschid spre stradă. Se păstreză, astfel, o comunicare directă între spațiul public, comun și cel privat. Zona de zi devine o extensie a spațiului intim al locuinței, întrerupe monotonia fațadei, către stradă și menține legătura cu frontul liniar învecinat.
Parterul locuințelor colective este destinat publicului și adăpostește funcțiuni variate: spații de coworking, librărie, cafenea.
Nivelul de intimitate nu este gradat doar în plan verical, ci și orizontal, de la est la vest: spațiul verde existent este păstrat - un parc dedicat publicului, între volumele locuințelor colective se dezvoltă o curte interioară, privată, iar în partea vestică a amplasamentului se realizează accesul în parcarea subterană, iar spațiul capătă caracter privat. Există o comunicare directă între stradă și curtea interioară privată, iar diferența de înălțime la care este amplasată acesta din urmă joacă rolul unui prag. Curtea este străbătută de o reațea de punți și cursive, de la nivelul cărora se realizează accesul în locuințe.
Bară scurtă:
Est
P+4
4 apartamente, 2 duplexuri
Parter public: librărie, cafenea
Marchează intersecția. Reper urban
Bară lungă:
Vest
P+3
6 apartamente
Parter public și privat: spații coworking, zone comune
Terasă circulabilă. Conuri de vizibilitate
Curte interioară:
2 duplexuri
Punți, cursive, noduri de circulație
Legătură cu strada
Spațiu privat
Ziduri verzi:
Structură metalică
Permeabilitate
Barieră fonică
Microclimat