
Comentariul autorului:
Proiectul „Casa Artelor” își propune crearea unui spațiu cultural interdisciplinar dedicat susținerii tinerilor artiști din România. Situat la intersecția dintre Strada Progresului și Strada Spătarul Preda, într-o zonă aflată în tranziție urbană, proiectul îmbină funcțiunile artistice cu cele sociale, contribuind la regenerarea comunitară și urbană. Spațiul construit este completat de ample zone pietonale și verzi, oferind un echilibru între funcționalitate, relaxare și expresie artistică.
În prezent, Bucureștiul dispune de puține spații care să răspundă nevoilor artiștilor, mai ales în ceea ce privește infrastructura necesară colaborărilor interdisciplinare. „Casa Artelor” vine ca un răspuns direct la acest gol, inspirându-se din modelul catalan „Fabriques de Creació” din Barcelona, unde spațiile culturale devin catalizatori pentru inovare artistică și coeziune socială.
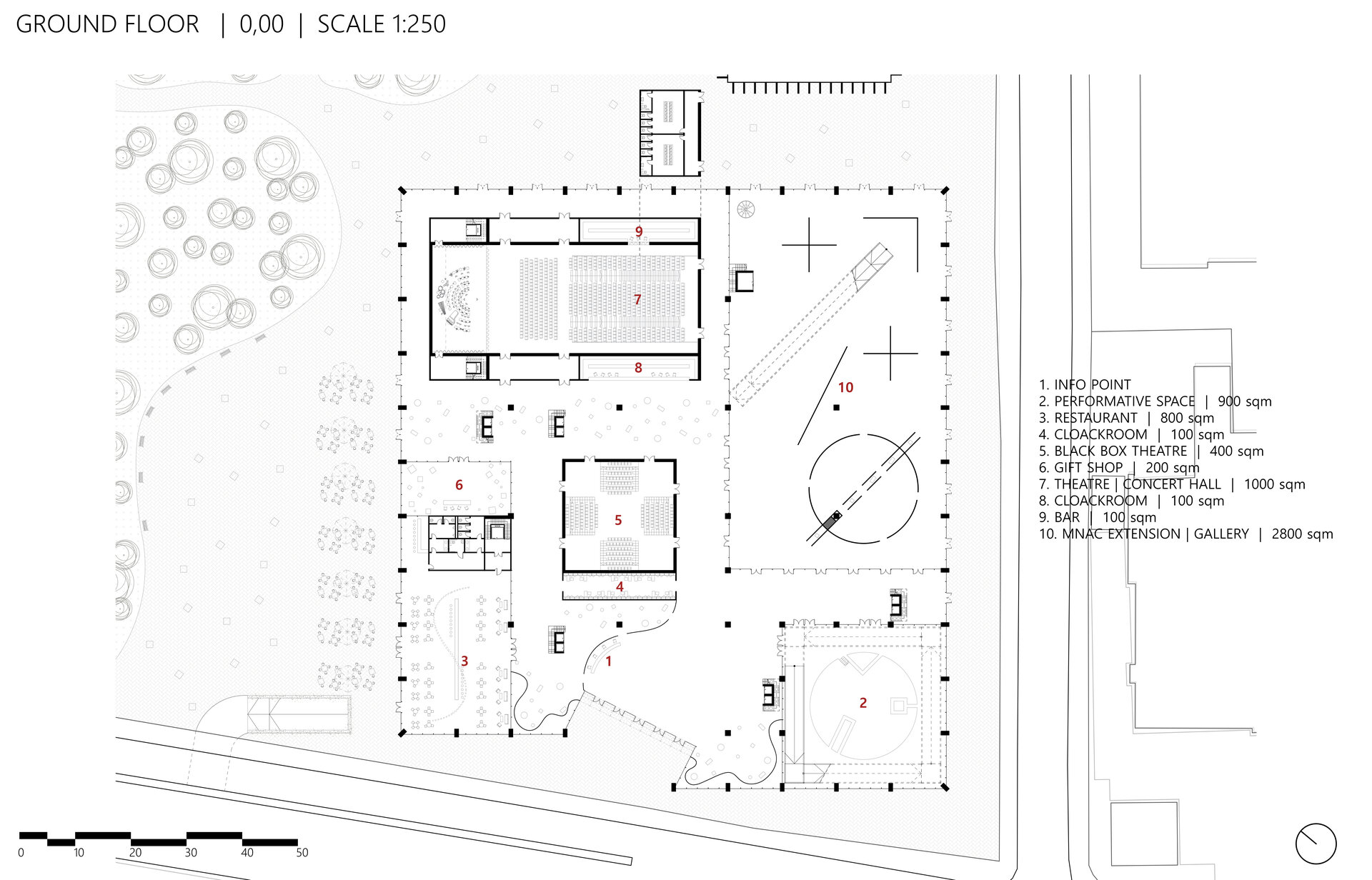
Natura multidisciplinară a proiectului este un element-cheie. Se urmărește crearea unui ciclu complet de producție artistică – de la ateliere de creație și laboratoare experimentale, până la spații performative și expoziționale – toate gândite pentru a încuraja colaborarea între artiști din domenii diferite: arte vizuale, teatru, dans, muzică, film sau design. Clădirea principală dispune de zone performative, care aduce împreună diferite forme de expresie artistică, oferind flexibilitate și adaptabilitate funcțională.
Volumetria este concepută astfel încât să pună în valoare atât experiența artistică, cât și pe cea arhitecturală. Intrarea principală este marcată printr-o decupare pe plan înclinat a fațadei, creând o invitație deschisă către public. La interior, nivelurile sunt fragmentate pentru a permite dublarea înălțimii în zonele destinate spectacolelor sau expozițiilor, generând o dinamică spațială. Astfel, vizitatorul este invitat într-un parcurs emoțional și senzorial, în care arhitectura devine o extensie a artei.
Spațiul expozițional se desfășoară pe trei niveluri interconectate printr-un sistem de rampe, creând un traseu cultural coerent și fluid. Exteriorul completează interiorul prin amenajarea unui parc sculptural și a unor gradene destinate spectacolelor în aer liber. Astfel, se extinde funcția artistică în spațiul urban și se încurajează interacțiunea cu publicul larg. De asemenea, vegetația joacă un rol esențial în temperarea ritmului urban și oferă vizitatorilor momente de respiro, relaxare și socializare.
Prin designul său inovator și deschiderea către comunitate, „Casa Artelor” urmărește nu doar să sprijine tinerii creatori în dezvoltarea unei cariere artistice, ci și să creeze un spațiu accesibil și primitor pentru întreaga comunitate. Este un proiect care îmbină educația artistică, experimentul și spectacolul într-un cadru arhitectural integrat și contemporan. Pe termen lung, „Casa Artelor” își propune să devină un reper cultural la nivel național, un loc de întâlnire pentru idei, practici și comunități creative. Proiectul are potențialul de a genera un impact semnificativ asupra dezvoltării scenei artistice locale și de a încuraja dialogul dintre artiști și public. Prin deschiderea către experiment și colaborare, spațiul devine un laborator viu al artei contemporane Românești.