
Comentariul autorului:
Într-o lume grăbită, în care orașele se schimbă înainte să apucăm să le înțelegem, avem nevoie de clădiri care îi invită pe oameni să exploreze spațiile interioare și să rămână împreună. Casa Muzicii răspunde acestor nevoi, oferind zonei centrul cultural care îi lipsea, un loc unde muzica prinde formă de arhitectură, iar arhitectura apropie oamenii.
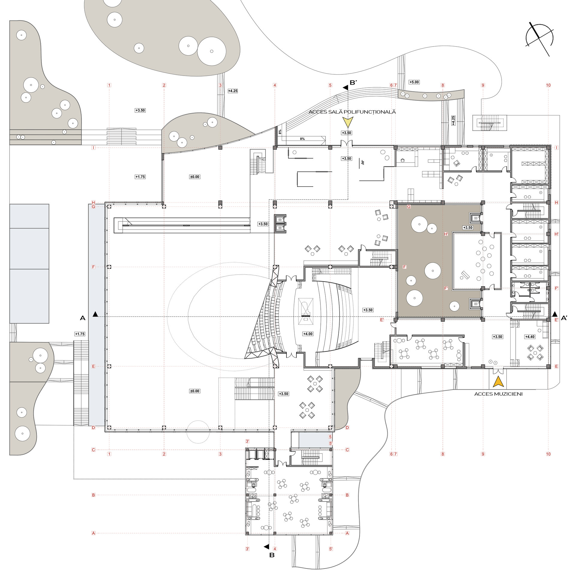
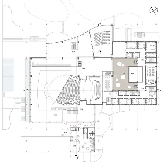
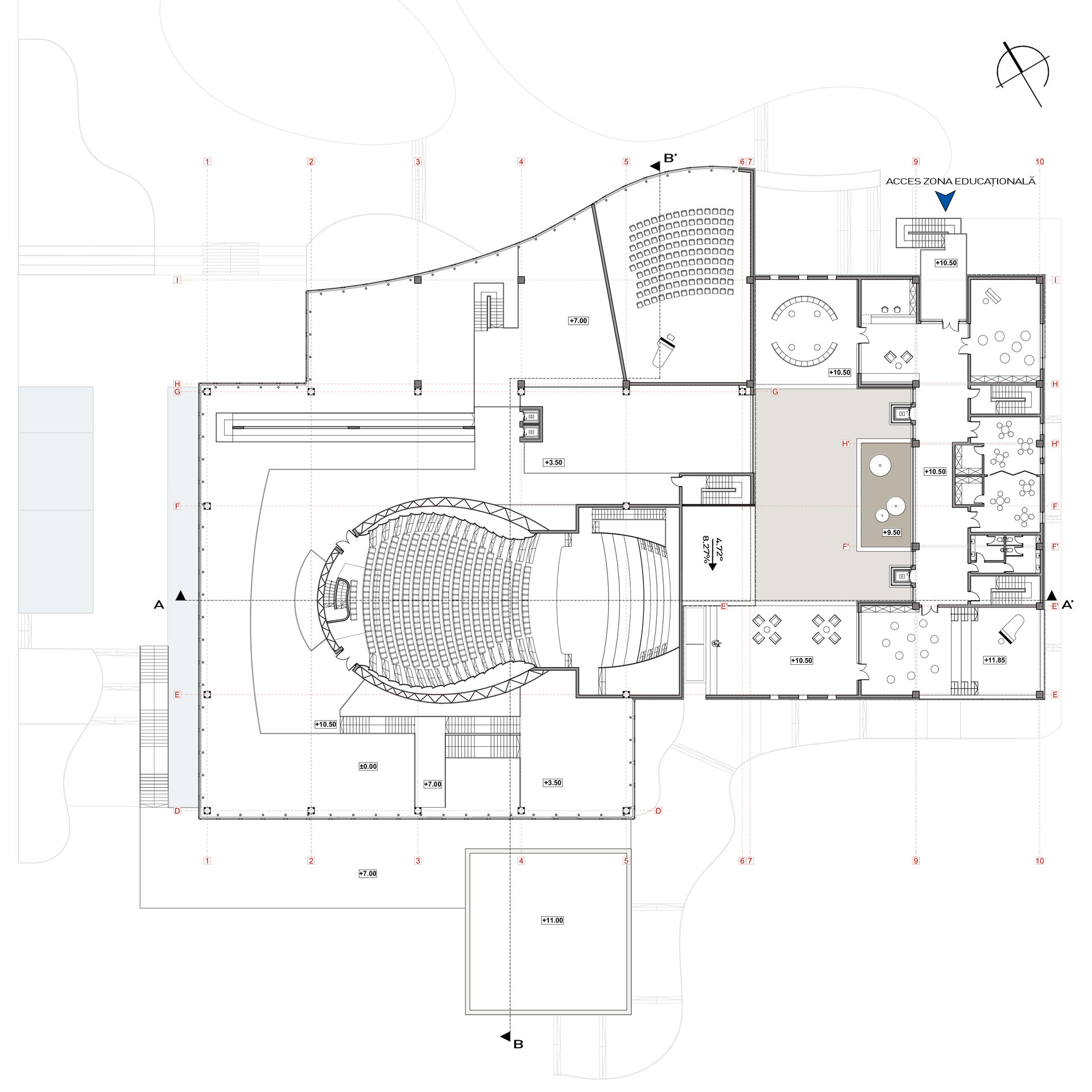
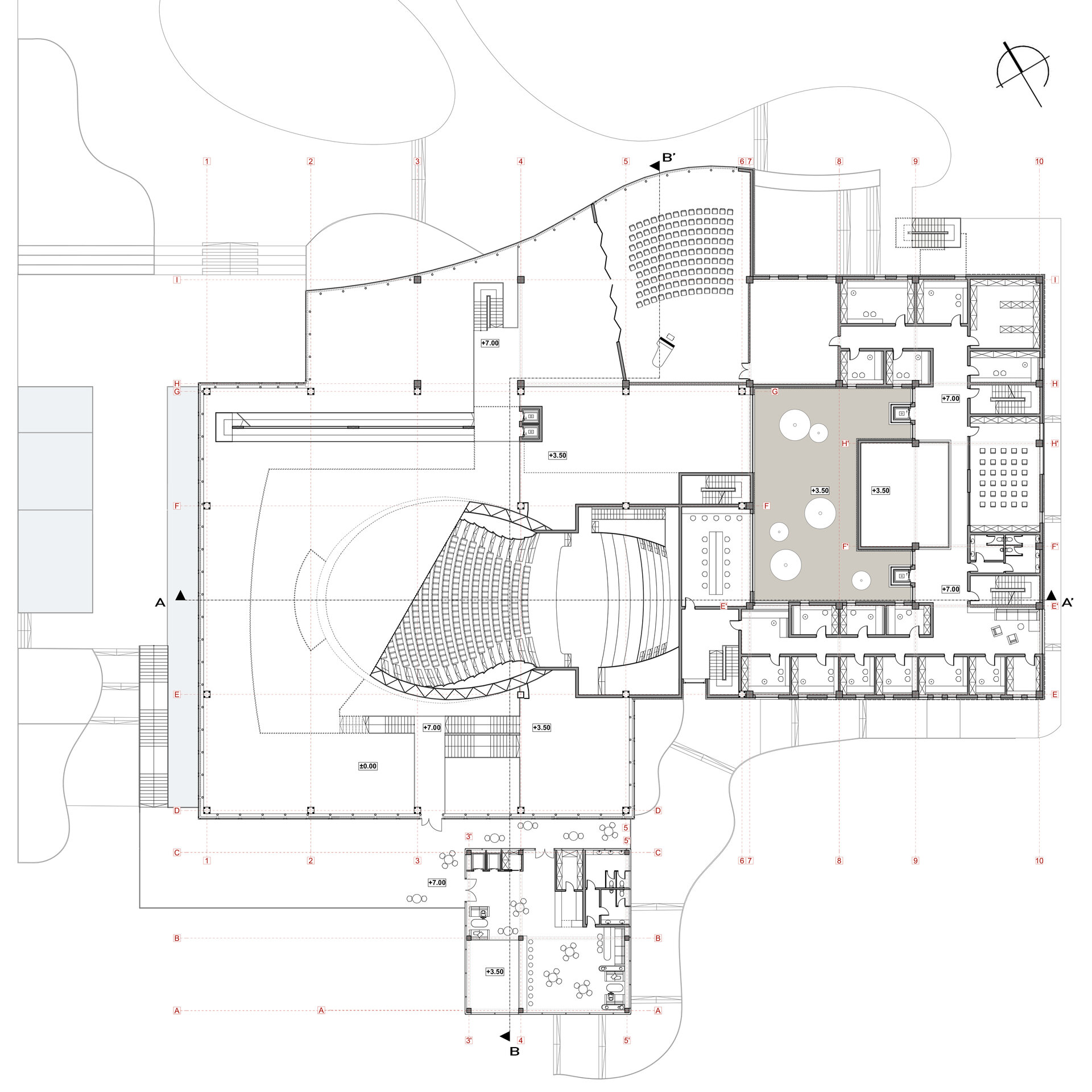
Punctul de pornire al proiectului este ideea de transparență, înțeleasă atât ca expresie arhitecturală, cât și ca atitudine față de comunitate. În jurul nucleului roșu – sala de spectacole, se dezvoltă un paralelipiped de sticlă. Prin acest înveliș, circulațiile verticale, foaierele și spațiile de întâlnire devin vizibile dinspre exterior, devenind un spectacol accesibil tuturor. Astfel, arhitectura nu se reduce la interiorul sălii, ci își extinde expresia spre oraș. Scara exterioară, amplasată de-a lungul volumului de sticlă, nu este doar un element de circulație, ci un instrument de descoperire treptată a clădirii. Ea permite vizitatorilor să observe sala de spectacole, din poziții diferite, să se oprească, să privească spre interior sau către oraș și se sfârșește cu accesul în cafenea.
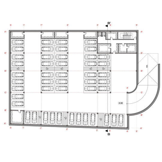
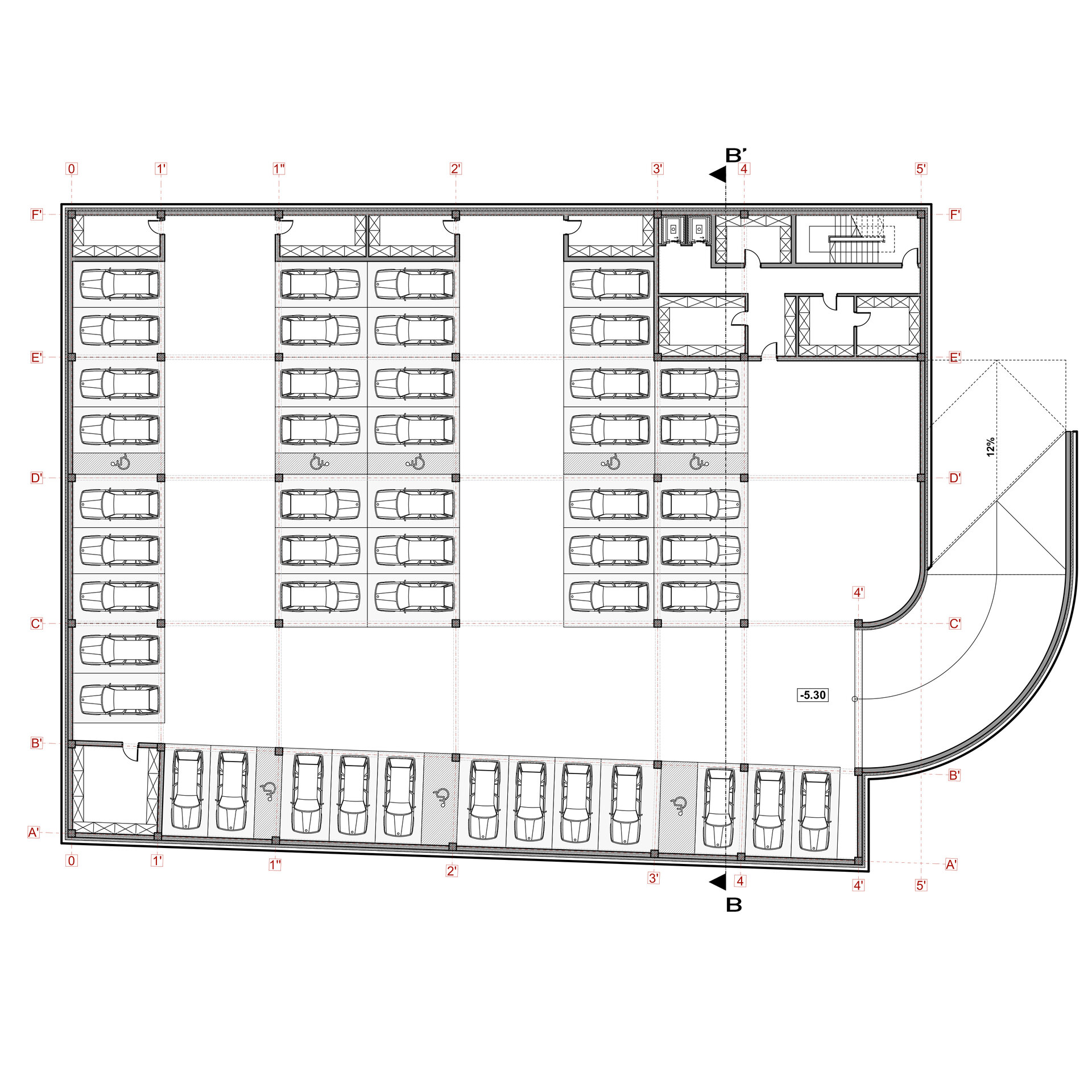
Parcursul către accesul principal este marcat de o piațetă, care se deschide către intersecție și creează o relație directă între clădire și spațiul public. Această piațetă reprezintă un loc de staționare și de întâlnire, un spațiu urban în care oamenii se adună, pentru a socializa. Clădirea prezintă două zone de parcare, primă zonă este amplasată la nivelul intrării, folosind diferența naturală de pantă a terenului, iar a doua zonă se află la cota -5,30 m.
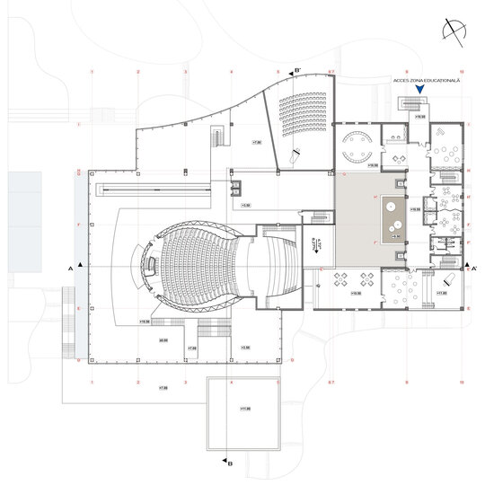
Accesul în sala de spectacole se realizează la cota +10.50 m. La aceeași cotă se află zona educațională, cu săli de curs și repetiții, cu terase accesibile, unde procesul de învățare se extinde spre exterior. Această organizare creează o legătură directă între actul artistic și cel didactic, punând în același plan publicul și tinerii aflați în proces de formare. Sala polifuncțională aflată la cota +7.00 m este orientată către parc și către Universitatea “Alexandru Ioan Cuza”, pentru a capta întreaga perspectivă asupra zonei.
Muzica, care în mod tradițional este ascunsă în cutii opace, devine aici un element vizibil și deschis către public. Sala de spectacole se arată orașului prin transparența volumului de sticlă, iar ritmul muzical este tradus în proiect prin riflajele verticale ale fațadei. Acestea nu au doar un rol de filtrare a luminii, ci și unul simbolic: reiau pulsația muzicii și o proiectează în spațiul urban.
Casa Muzicii este concepută să evolueze odată cu orașul și cu nevoile comunității. În timp, ea poate să susțină repetiții deschise publicului, să găzduiască expoziții temporare sau să transforme foaierele în spații accesibile pentru întâlniri și evenimente. Proiectul nu este o formă stridentă, ci o arhitectură flexibilă, prietenoasă cu oamenii și capabilă să devină un loc al comunității, mereu activ și prezent în viața orașului.