
Comentariul autorului:
Răspunzând deopotrivă peisajului urban deschis, dominat de vegetația abundentă, și țesutului compact, jos și dens de case, ansamblul propus se așază ca un teritoriu de mediere între aceste două lumi aparent contrastante. Cele patru volume care îl alcătuiesc nu caută să domine contextul, ci să se dizolve în el, prin continuitatea spațiiului verde care le înconjoară și le traversează. Trei dintre ele se așază către zona de locuințe individuale, apropiindu-se de scara domestică a cartierului, în vreme ce al patrulea, cu o geometrie mai riguroasă, se așază către bulevard, ca o barieră către spațiul public.
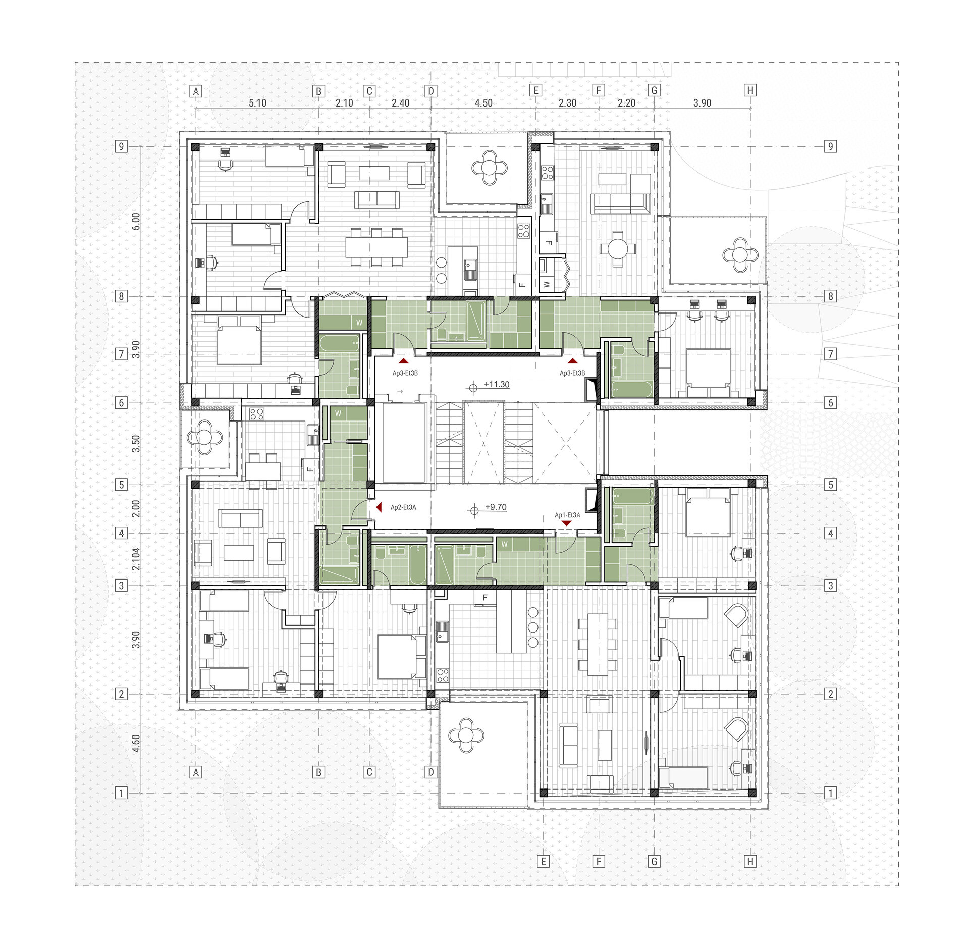
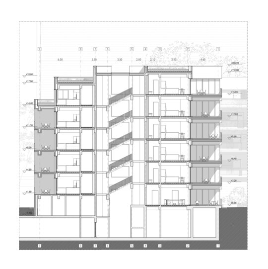
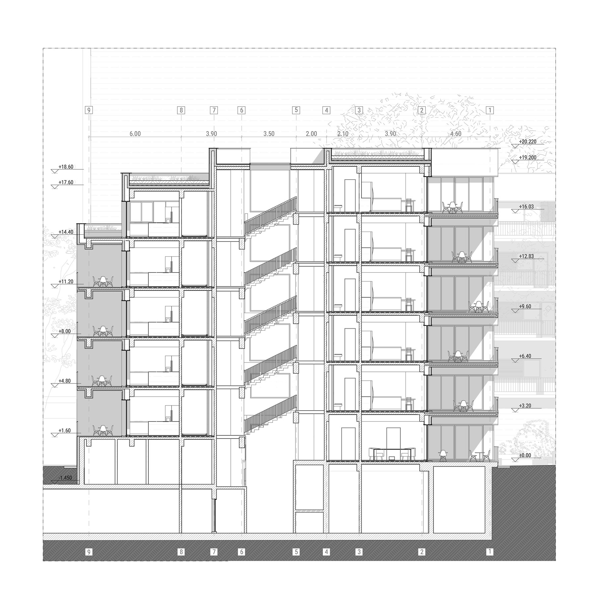
Arhitectura se organizează în jurul a trei nuclee de circulație, luminate zenital, care structurează clădirile asemenea unor turnuri reduse la scara locuirii. Apartamentele se așază în jurul acestora în sistem split-level, ceea ce generează nu doar o varietate tipologică, ci și un dialog vertical între niveluri. Circulația nu este un simplu traseu funcțional, ci devine un spațiu plăcut care invită la întâlnire: jumătatea de nivel dintre apartamente poate produce atât intimitate, cât și o deschidere spre comunitate. La bulevard, volumul dublu, alcătuit din două bare perpendiculare, delimitează o piațetă publică; către curtea interioară, aceeași clădire se deschide printr-o cursivă amplă, oferind o punte de legătură între interior și exterior.
Ansamblul cuprinde 79 de apartamente, distribuite echilibrat: locuințe de o cameră, locuințe de patru camere și o pondere consistentă de două și trei camere. Această varietate permite coabitarea unor familii diferite, creând o comunitate diversă, unită prin aceleași spații comune. Fiecare apartament dispune de logie sau balcon, ceea ce accentuează legătura cu exteriorul și cu vegetația ce se insinuează între volume. Gruparea băilor în jurul nucleului de circulație eliberează fațadele, astfel încât toate apartamentele beneficiază de lumină și deschidere pe două laturi.
Un element esențial al proiectului îl constituie modul de tratare al golurilor. În locul ferestrelor mici, fragmentate, s-a optat pentru fereastra orizontală continuă, inspirată din modernism, care nu doar sporește calitatea luminii naturale, ci creează o panoramă amplă asupra vegetației. Acest gest aparent simplu transformă experiența locuirii, oferind o perspectivă fluidă și o relație directă cu peisajul.
Curtea ansamblului, concepută ca un spațiu coborât, devine nucleul colectiv al locuirii. Aici, vegetația se dezvoltă abundent, ca într-o mică pădure urbană, iar volumele par să se piardă printre arbori. Demisolul, care înconjoară curtea, adăpostește spații comune pentru locatari: zone de întâlnire, de loisir, de activități partajate. Acestea se deschid generos către grădina coborâtă, dizolvând limita dintre interior și exterior. Prin această relație directă, curtea devine un loc de viață și nu doar un decor – un spațiu unde comunitatea se poate regăsi zilnic, în contrast cu agitația străzii. Accesul este liber, dar senzația este una de refugiu, o retragere în natură în mijlocul orașului.
Astfel, între stradă și grădină, între public și privat, se conturează o tipologie urbană care propune altfel de locuire. Într-o competiție a contrastelor, proiectul răspunde prin fuziune: între țesutul dens și deschiderea liberă, între intimitatea apartamentului și comunitatea nucleului, între oraș și natură. „Altfel” nu este aici o simplă diferență de formă, ci o altă calitate a locuirii – aceea de a aduce împreună, într-o structură coerentă, complexitatea și diversitatea vieții urbane.