
Comentariul autorului:
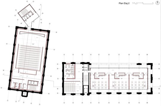
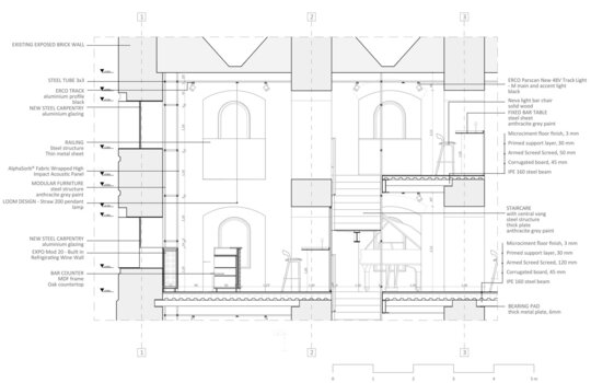
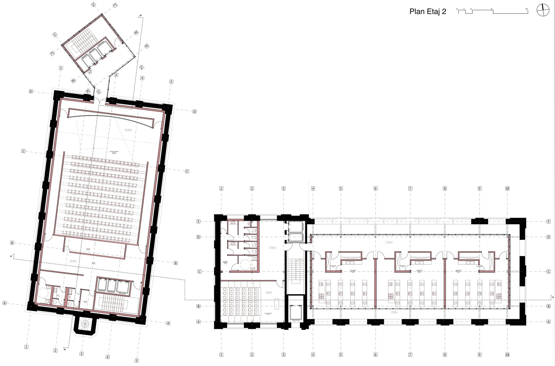
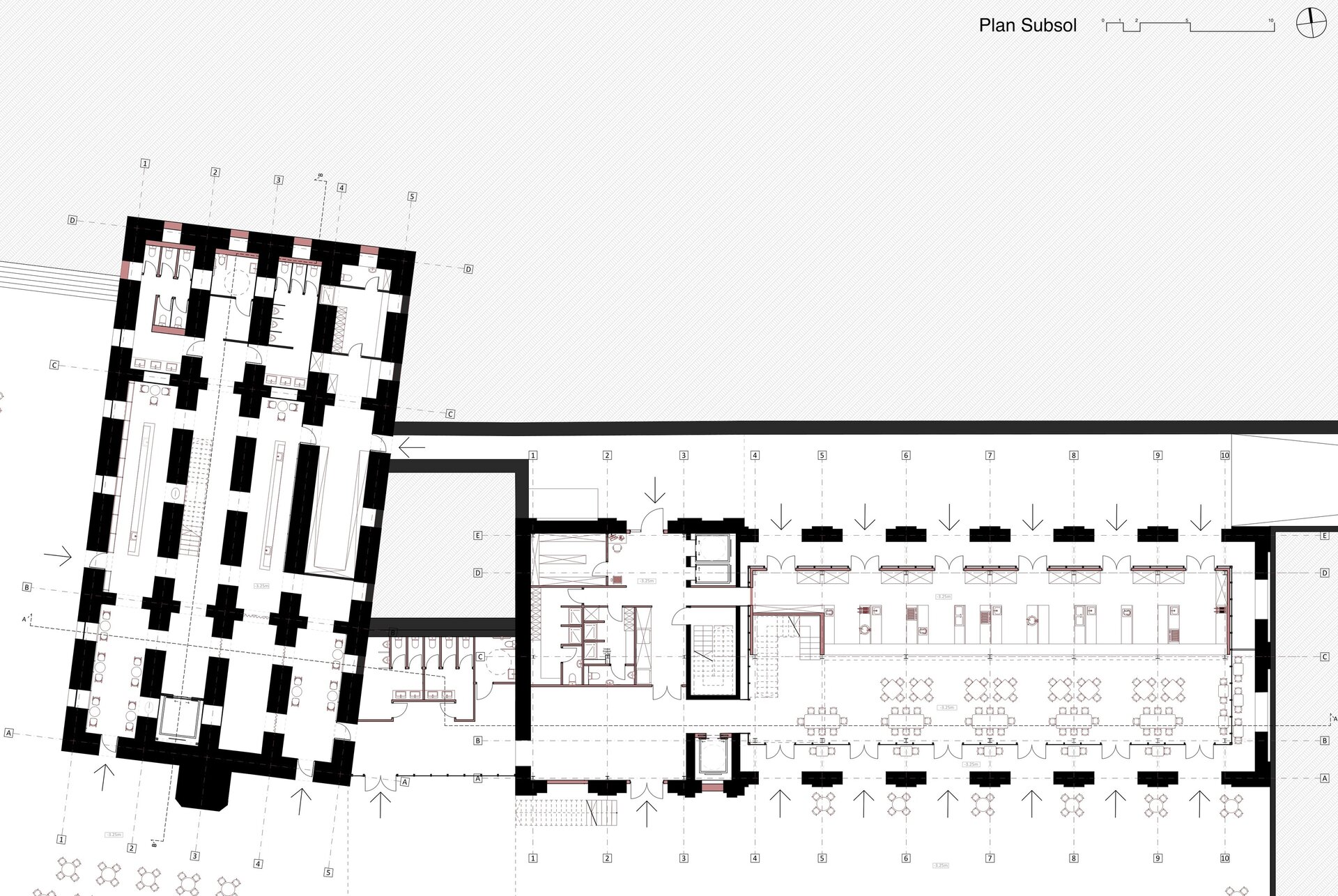
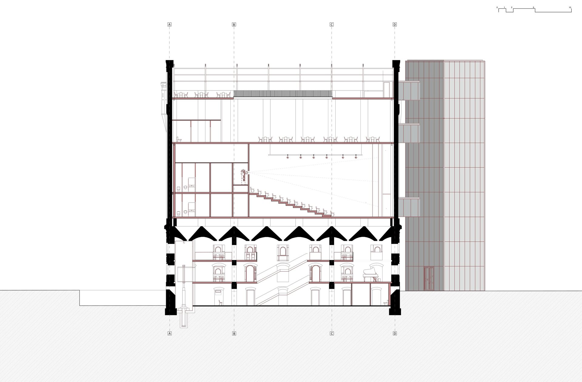
NODE – Centru de Gastronomie investighează cum arhitectura poate reintegra un sit degradat în viața comunității. Proiectul creează o rețea socială, atât fizică, cât și simbolică, care îl ghidează de la scara sitului până la detaliile mobilierului interior și reconectează locuitorii prin gastronomie, educație și cultură. Noul sistem structural metalic consolidează zidurile istorice și generează spații noi. Materialitatea combină panouri de sticlă Profilit, finisaje din microciment și elemente metalice modulare, păstrând expresivitatea industrială. Modularitatea spațiilor permite flexibilitate funcțională: școală de gastronomie, wine bar cultural, food market și cinema, adaptabile diverselor activități. Prin adaptarea clădirii, proiectul reduce impactul asupra mediului și susține sustenabilitatea. Conceptul propune un dialog activ între memorie, comunitate, identitate urbană și nevoia de spații de întâlnire contemporane.